查看完整案例

收藏

下载
项目背景 Project Background
邛崃筑城置县 2300 多年,是巴蜀四大古城之一,是四川省首批命名的历史文化古城。但是随着全国城市化的时代巨浪向着这个小城卷来,属于邛崃古城的气息正在一点点消散,最后一点点文化遗存也如同星星般散落在这个越来越现代化的城市中。
为了抓住邛崃城最后的一丝历史文化气息,我们参与并赢得由一筑一事主办的邛崃院子竞赛,并在这文脉巷北侧留下了一座追忆过去,展望未来的建筑。
邛酒博物馆坐落于文脉坊的东广场上,毗邻邛崃美术馆和新山书店,富有四川传统民居特色的青灰色建筑低调的隐藏在周围的建筑之间,但是大面积的玻璃又无时无刻展现着这个建筑的独一无二。
QiongLai city built more than 2300 years, is one of the four major ancient cities in Sichuan Province, also in the front of the list of historical and cultural city named in Sichuan Province. Unfortunately, with the national urbanization rolling towards this small city, the special atmosphere belonging to old QiongLai city is gradually dissipating, and the last bit of cultural heritage is scattered like stars in this increasingly modern city. In order to capture the last trace of Qionglai city’s history and culture, the Rel Architects designed a building which won the “Qionglai Courtyard Competition” at the north side of the Literature Vein Lane to memorialize the past and look forward to the future.
▼项目概览,Overall view © 存在建筑摄影
▼文脉巷鸟瞰,Aerial view of Wenmai Lane © 存在建筑摄影
▼项目鸟瞰,Aerial view © 存在建筑摄影
设计起源
Original Concept
我们一直对四川当地这种由当地居民在实际生活中发展、演变的街巷模式富有兴趣。其中最有趣的,就是它“小街巷,大茶馆”的公共社交模式。小街巷原本的诞生是因为四川多山地,居住用地非常紧张,为了保障每家每户都有足够的私人空间,不得以压缩整个镇的交通用地。但是,喜欢社交的四川人民无法割舍“摆龙门阵”的快乐,一个个空间宽阔的茶馆便散落在镇子中。最终,“小街巷 小社交”“大茶馆 大社交”的模式成了独属于四川的特色。
▼项目区位分析图,Site analysis of the project © 相对建筑
We has been studying the local dwellings of Sichuan in detail and fascinated by the street patterns developed and evolved by the native residents in their actual lives. The most interesting aspects of this pattern is its “small alley, big teahouse” mode of public socializing. Small alleys were originally born because of the mountainous terrain in Sichuan, where residential land is very limited, and to ensure that every family has enough private space, the transportation space of the whole town had to be compressed. However, people in Sichuan who love to socialize could not escape the joy of “Longmen Zheng”. One after another spacious teahouses were scattered in the town as a result. Eventually, the pattern of “small alleys, small socializing” and “big teahouses, big socializing” became a unique feature of traditional town in Sichuan.
▼建筑框景,Architectural frame © 存在建筑摄影
另一方面,由于邛崃县城周围多是山岭,云雾缭绕,远远看去像一幅山水画。我们希望建筑在某一方面能够与其呼应。同时,“交错”也是四川民居中很重要的概念,在传统四川古镇中,很难看到一条街两边的大门正向而对。四川人民虽然热情包容,但也通过这种建筑方式默契地保护每个人的隐私。
On the other hand, the other building, QiongLai Art Museum, is also designed by us. Therefore, there is a unity in the design of the roofs between the two, both of which are inspired by the cascading mountains around QiongLai. At the same time, “interlocking” is also an important concept in Sichuan dwellings. In traditional Sichuan towns, it is very difficult to see the doors on both sides of a street facing each other. Although the people in Sichuan are friendly and open-minded, they also implicitly protect the privacy of each individual through this type of pattern.
▼建筑顶部 交错的楼体,Top view of building, Staggered © 存在建筑摄影
形体生成
Form Generation
为了更好体现古镇气息,我们以“街巷肌理的延续,建筑风貌的重建,繁庶临邛的情景再现”为核心思想。首先将段段山墙置入,形成建筑骨骼,并确立基本朝向。接着,将四川传统城镇中的街、巷、径三种不同的道路尺寸穿插进建筑,将一个整体拆分成多个大小不同的个体,象征着四川民居住房的灵活性。之后,将富有传统民居特色的坡屋顶以及象征着现代建筑技术的玻璃幕墙置入建筑,既在功能性上通过视觉感知完成了与街巷、山墙在方向上的同一性,又从故事性中诉说传统与现代的互相扶持与包容。
In order to reflect the atmosphere of the ancient town, the Rel Architects takes “the continuation of the street texture, the reconstruction of the architectural style, and the Rehabilitation of QiongLai’s affluent scene” as the core idea. Firstly, the solid walls with the imagery of mountains are inserted as the skeleton of the building, which establishes the basic orientation of the building. Following this, three different types of road sizes, namely streets, alleys, and paths, in traditional Sichuan towns are interspersed in the building, splitting the whole into multiple individuals with different sizes. This represents the flexibility of Sichuan’s residential housing. Afterwards, the sloping roof, typical of traditional houses, and the glass curtain wall, symbolic of modern architectural technology, are integrated into the building, which not only completes the directional homogeneity with the street and the wall through visual perception, but also tells the story of the mutual support and tolerance between the tradition and the contemporary.
▼建筑形体生成,Form generation of building © 相对建筑
在大建筑下,小街巷被合理地表达出来,作为对比,小室内也需要营造出大茶馆的氛围来。茶馆在传统四川城镇中都有区域结点的作用,所有街、巷、径都应该汇聚或者穿过茶馆。而且,四川传统茶馆为了满足大量居民同处在同一空间下,往往只修盖了屋顶以及最外的围墙,满足广阔空间的同时也带来巨大的头顶空间,这让一个客观尺度不大的空间在体感上显得异常巨大。从建筑语言来说,一个由巷道划分的高挑高空间被安置在了室内。最后,一条贯穿四个建筑个体的游艺廊将被巷道拆分的整体又一次整合在一起。
As a contrast to the big building, the small alleys are expressed appropriately. On the other hand, the small interiors also need to create the atmosphere of a big teahouse. Teahouses in traditional Sichuan towns have the role of regional nodes, all streets, alleys, and trails should converge or pass through that building. Moreover, to satisfy the large number of inhabitants in the same space, traditional Sichuan teahouses usually build only the roof with the external walls. While maximizing the space, it also brings a huge overhead space, which makes an objectively small-scale space physically feel abnormally large. Architecturally speaking, a high ceiling space divided by alleys is installed in the interior. Finally, a corridor through the four individual buildings, which was divided by the alleyway at the very beginning, unites these four building, once again.
▼外观夜览,Exterior view © 存在建筑摄影
▼游艺廊,Amusement gallery © 存在建筑摄影
▼建筑局部,Partial building © 存在建筑摄影
在材料的选择上,建筑的外立面整体还是采用的现代建筑材料,比如水刷石、玻璃以及仿石涂料。尽管在形式上建筑是具有四川传统美感的,但是我们并不希望完全照搬传统建筑的做法。在传统之上,一些属于我们对中国现代建筑的思考,是建筑应该表达出来的。尤其是东西立面大面积玻璃的使用,使得建筑变得非常通透。这么做的目的,也是和建筑正处于东广场中有关,作为来往游客进出文脉坊的重要出入口之一,我们不希望建筑成为一个封闭的水泥块儿,阻碍人们或者其他建筑。一个若隐若现的存在反而是我们设计的目的,相对的隐藏自身的重要性并不是一种示弱,反而在中式美学中是一种有容乃大的自信。
In terms of material selection, the building’s façade as a whole is still using modern building materials, such as water brushed stone, glass, and faux stone paint. Although formally the building carries the traditional aesthetic of Sichuan, we do not want to replicate the traditional architectural practices exactly. Above the tradition, something belonging to our thinking about modern Chinese architecture is what this building should represent. In particular, the use of large areas of glass on the east and west elevations makes the building very transparent. The purpose of doing so is also related to the fact that the building is right in the middle of the East Plaza. As one of the key entrances for visitors coming and going to the Cultural Heritage Place, we don’t want the building to be a closed concrete block that prevents people or other buildings. The existence of a hidden rather than the purpose of our design, relative to the importance of hiding themselves is not a show of weakness, but in Chinese aesthetics is a kind of tolerance of self-confidence.
▼建筑楼梯,Building staircase © 存在建筑摄影
▼建筑光影,Architectural light and shadow © 存在建筑摄影
当然,这并不代表我们拒绝传统材料,它们以另一种,更亲近于人的方式展现。一部分经过岁月洗礼的老青砖被码在建筑之间的小巷中,来往游客不只是以视觉,更是以触觉甚至是嗅觉感受真正的四川特色。此时此刻,人们仿佛真的走在四川古镇四通八达的小巷子中,感受着阳光穿过建筑之间的缝隙,温暖三三两两的行人。
Of course, this does not mean that we reject traditional materials, instead, a different, more human-friendly way will be presented. A portion of the old bricks are placed along the alleys between the buildings, so that visitors can feel the real Sichuan characteristics not only by sight, but also by touch and even smell. At this moment, it seems like people are literally walking through the alleys in the ancient town of Sichuan, feeling the sunlight passing through the gaps between the buildings.
▼建筑西立面,West façade © 存在建筑摄影
▼玻璃、青砖、仿石材材料,Glass, green bricks, imitation stone materials © 存在建筑摄影
空间动线 Movement 建筑本身是一个带有博物馆性质的小型公共建筑,虽然由于场地的限制建筑形式显得比较封闭,但是它却提供了自由的动线选择,符合了四川传统小镇街巷错综复杂却便捷高效的道路模式。这么做的另一个目的,也是希望建筑真实的,从功能性上变得通透。来往游客可以直接穿过建筑进入文脉坊,而不是选择绕道主路上。我们希望建筑的存在,就像个牌坊一样,不争不抢不堵,但是不可或缺。而且,西立面还设置了两组户外的楼梯方便工作人员的出入,实现了工作人员与游客动线分流的同时,为游客提供了更多的路线选择,并且增加了消防的安全性。
The building itself is a small public building with the function of a museum. Although the form of the building is relatively closed due to the constraints of the site, it provides flexible choices of movement, which matches the intricate but convenient and efficient road pattern in traditional small towns in Sichuan. Another purpose of doing so was also to make the building authentic and functionally accessible. Visitors could directly go to Cultural Heritage Place by passing through the building, rather than choosing to detour onto the main road. We want this building to exist, like a plaque, uncontested and unclogged, but indispensable. Furthermore, two sets of outdoor stairs are set up on the west elevation to facilitate staff access, which realizes the diversion of staff and visitors’ movement while providing more route options for visitors, and, increasing safety while firing for sure.
▼楼宇之间的小巷,The alley between the Buildings © 存在建筑摄影
▼建筑内部的挑高空间,The lift space inside the Building © 存在建筑摄影
在室内空间的排布上,所有的动线都导向着建筑中心的高挑高空间,并且大部分热闹的公共空间也围绕这个挑高空间放置在一层,既符合游客的行动逻辑,也契合茶馆式的热闹氛围。随着楼层的增高,越往上就越静谧。二楼的空间因为一层的挑高空间无法做到连贯,所以被分割成一间间有表演性质的品酒室,专心品味邛崃地区独特风味的白酒。三层的空间做到了隔绝一切喧闹,可以让游客安静地体验邛崃古城文化的变迁。
In the layout of the interior space, all the flow lines are oriented to the high ceiling space in the center of the building. Most of the bustling public functions are placed on the first floor around this high ceiling space, which is in line with the logic of visitors’ movement and the bustling atmosphere of a teahouse. While the higher the floor increases the more quiet, the second floor space is discontinued because of the high ceiling, so it is divided into multiple tasting rooms, dedicated to taste QiongLai region’s unique flavor of white wine. The third floor isolates all the noise, can allow visitors experience the transition of QiongLai ancient city culture quietly.
▼邛酒体验厅,Qiongjiu Experience Hall © 存在建筑摄影
▼建筑背部的楼梯,The stairs in the back of building © 存在建筑摄影
随着项目的建成,建筑也因之后的实际使用正式更名为邛酒博物馆,但是参与设计的各位设计师更希望以设计特征称其为叠巷院。作为一个融合四川传统城镇街道肌理的公共空间,我们在设计之初就希望邛酒博物馆能够作为一个路标,引导文脉坊满足城市现代化需求的同时持续发展传统街巷的独特巧思,在新时代下沉淀出独属于邛崃的城市名片。
With the completion of this project, the building was officially renamed Qiong Wine Museum for its subsequent practical use, but the designers involved preferred to call it Stacked Alley Yard by its design features. As a public space that integrates the street texture of traditional Sichuan towns, it was our hope that the Qiong Wine Museum would serve as a signpost to guide Cultural Heritage Place to satisfy the modern needs of the city while continuing to develop the unique ingenuity of the traditional streets and alleys.
▼平面图,Site Plan © 相对建筑
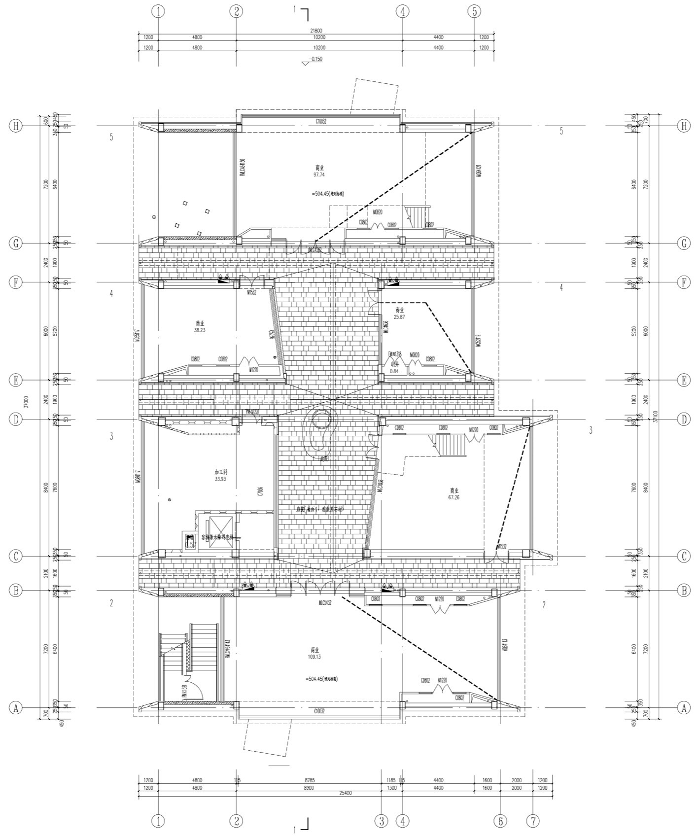
▼一层平面图,First floor plan © 相对建筑
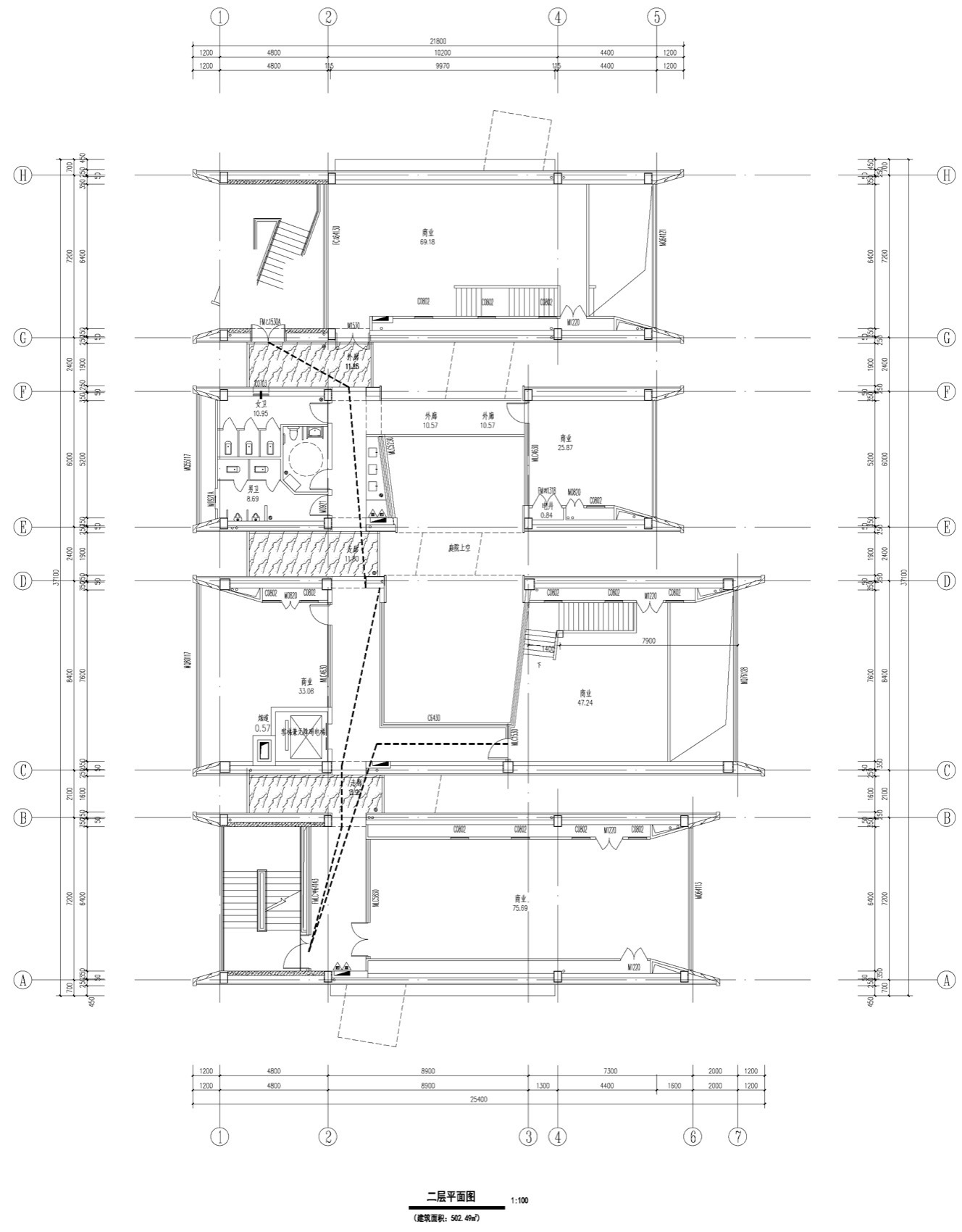
▼二层平面图,Second floor plan © 相对建筑
▼剖面图,Section © 相对建筑
▼立面和材料,Elevation and Material © 相对建筑
客服
消息
收藏
下载
最近






























