查看完整案例

收藏

下载
从古至今的甲骨、篆刻、竹简、缣帛和纸张,记录了悠久的历史,成为人类文明的瑰宝。如今,档案馆作为保存记录社会发展历史的重要场所,满足人们对“资治”、“存史”和“文化传承”的需要。
湖北省档案馆新馆坐落于武汉东湖新技术开发区花山生态园花山大道以东,总建筑面积 60053.2501349㎡。
▽项目鸟瞰© 赵奕龙
▽建筑外观© 赵奕龙
▽入口视角© 赵奕龙
荆楚风韵与档案特色的融会贯通
建筑整体配色采用荆楚建筑常用的红黑色调,裙楼流畅的曲面屋顶与古代青铜器的造型有异曲同工之妙,具有浓郁的浪漫神秘的荆楚风韵。
▽流畅的曲面屋顶© 赵奕龙
▽裙楼立面© 赵奕龙
▽建筑立面© 赵奕龙
裙楼连续完整地铺展开来,形似摆满卷宗的书案,空灵古朴。方正的档案库房犹如一枚精致的玉玺印章,采用层层垒叠的档案卷宗纹理,高度契合了档案行业特质。整体建筑将古朴的荆楚风韵用现代的手法进行演绎,与档案特色融会贯通。▽连续铺展的裙楼© 赵奕龙
▽裙楼夜景© 赵奕龙
外墙材料与立面设计的虚实结合
塔楼石材幕墙通过不同厚度的樱花红石材组合拼接,使得建筑立面神似“卷宗堆叠”的肌理感。对不同凹凸的石材组合成单元板块,并对单元进行编号排布,在实现随机效果的同时,又能便于施工控制。
▽石材幕墙© 赵奕龙
▽外观夜景© 赵奕龙
裙楼采用里层为铝合金中空玻璃,外层加一层仿石材穿孔铝板进行遮阳,既达到立面纹理的效果,又满足室内的采光通风需求,从外看与石材纹理浑然一体,从室内往室外看透如一层窗纱。▽立面细节© 赵奕龙
模糊空间与复合功能的灵活运用
裙房主入口前设置一个 17mx46m 的巨大灰空间,是传统建筑屋檐的抽象表达,具有模糊内外的空间属性。尺度巨大的灰空间,恢弘浪漫,大气磅礴。在平时是入口主大厅的前序过渡空间,完成了室外喧嚣环境到室内宁静文化氛围的自然转换,同时又是主大厅外部一个遮阴的大门廊,避免了阳光对主大厅的直晒。在举办活动时又可以成为一个半室外的活动场地,举办档案相关展览、展会、开幕式、学术报告、青少年演出和各类宣教讲演等活动。
▽裙房主入口前© 赵奕龙
▽大厅空间© 赵奕龙
▽室内空间© 赵奕龙
▽建筑夜景© 赵奕龙
▽夜间鸟瞰© 赵奕龙
▽总平面图© 中南建筑设计院
▽一层平面图© 中南建筑设计院
▽二层平面图© 中南建筑设计院
▽三层平面图© 中南建筑设计院▽五层平面图© 中南建筑设计院
▽六至十四层平面图© 中南建筑设计院
▽立面图 1© 中南建筑设计院
▽立面图 2© 中南建筑设计院
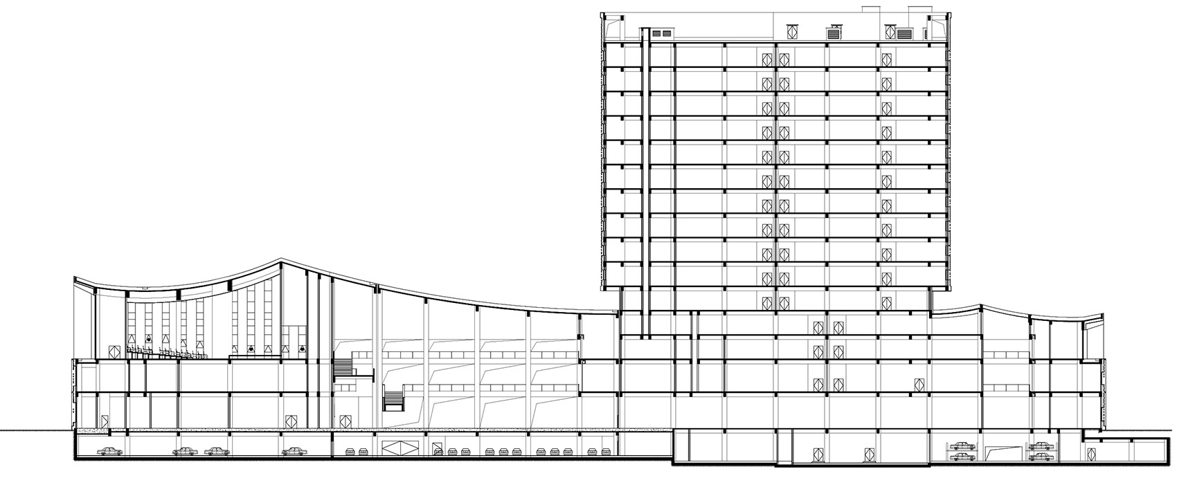
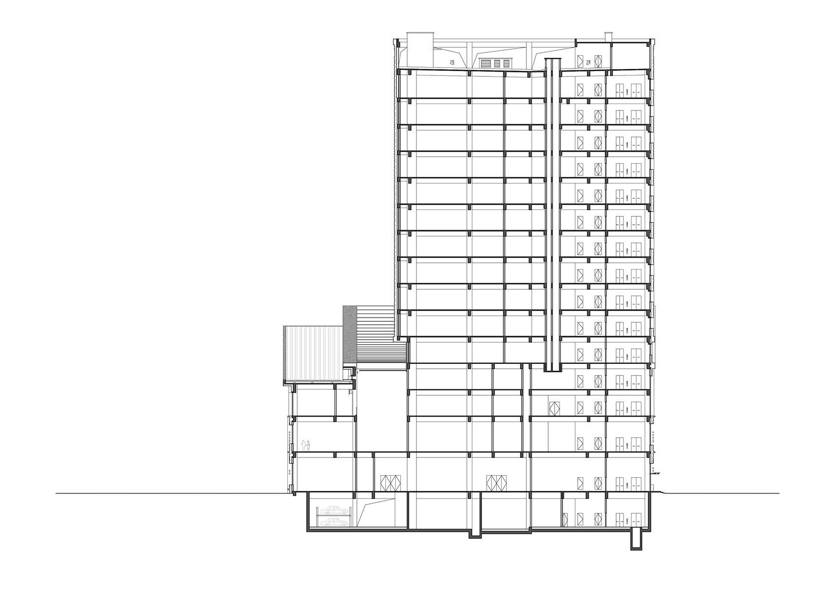
▽剖面图 1© 中南建筑设计院
▽剖面图 2© 中南建筑设计院
▽剖面图 3© 中南建筑设计院
▽幕墙节点© 中南建筑设计院
项目名称:湖北省档案馆新馆
项目类型:文化建筑
设计方:中南建筑设计院股份有限公司
项目设计:2015-2017
完成年份:2022
设计团队:
建筑设计:张颂民、杨江峰、吴柄江、万青、李黎、鲁举安
结构设计: 龚展宇、葛翔、舒晓玲、池碧波
给排水: 李冬梅、栗心国、余蔓蓉
暖通:叶欣、刘华斌、张迪
电气: 容浩、王彦、陈繁
概算:余祥文
幕墙设计:王书华、童超华
室内设计:李伟
景观设计:沈业豪
照明设计:邓世超
项目地址:武汉东湖新技术开发区花山生态新城花城大道
建筑面积:60053.2501349㎡
摄影版权:赵奕龙
合作方:施工单位中建三局集团有限公司
客户:湖北省档案馆
材料:金属屋面、铝板、玻璃
客服
消息
收藏
下载
最近





















































