查看完整案例

收藏

下载
2019 年,八作有机会设立自己的新办公室。项目位置在北京中轴线以西,国家大剧院直线距离 200 米的地方,西城区铜井大院 6 号。这是一个四合院,一群充满活力的建筑师聚集在这里,迸发着自己的灵感。▽庭院概览© 吕博
对于在这里工作的小伙伴来说,每日通勤到达公司之前,都会和国家大剧院擦肩而过,穿过充满市井气息的胡同,到达办公室。
——铜井大院 6 号
▽项目位置示意© 八作建筑设计事务所
▽旧院子© 八作建筑设计事务所
第二个北京
在胡同里,正常视线(1.7m)所看到的是市井气息;但到屋顶,视线也随之提高(4m),就可以欣赏完全不同的,连续屋顶的“第二个北京”。
▽俯瞰庭院© 吕博
▽坐在屋顶© 吕博
▽站在屋顶© 吕博
▽闲暇时© 吕博
一院多面
四合院,是中国的一种传统合院式建筑。八作新址也有这样一个院子。
▽庭院概览© 吕博
南 |South
功能:为通过性走廊,起到曲径通幽的作用,是正房的视觉背景,同时还可以是小朋友们的乐园。
形式:为可开可合的活动隔扇。既有山水背景的安静(合),也有打开的开放敞亮(开)。
▽庭院南面© 吕博
北和东 |North and East
功能:为主要办公区域,八作小伙伴们工作时抬头便能看到这里;
形式:为自动开闭的铝合金隔扇。想看风景时打开,不想被光照时关上;
▽庭院北面和东面© 吕博
西 |West
功能:为会议室,这里也是办公室向外展示的窗口;
形式:为电雾化玻璃,开启透明模式方便欣赏风景,开启雾化模式会议更有私密感;
▽庭院西面© 吕博
地面:人多时,可以在院子里面活动站立;人少时,小院儿也可以变成一个水院,反射周围景色。▽反射周围景色© 吕博
▽爆炸图© 八作建筑设计事务所
“旧”房子与新办公
“旧”房子:这是一个传统制式建筑。
新办公:这是一群现代人的办公(创造)场所。
▽“旧”门与新门:靠胡同的外门是传统的木门;进入木门有一道玻璃门预示着里面就是新办公室了© 吕博
▽“旧”屋顶与新院子:抬头往上看© 吕博
▽“旧”屋架与新家具:为了体现传统的魅力© 吕博
移步换景
人随心动,景随人动
每一个不同人来到八作,都会看到属于自己的景色。
▽视角© 吕博
▽庭院景色:院子与中心的大香椿树相得益彰© 吕博
▽会议景色:开会中© 吕博
▽座位景色:背对院子也能穿过房间墙上的框景欣赏后院竹子随风摆动© 吕博
▽茶水间景色:茶水间有专属框景© 吕博
▽翻新过程中的院子© 八作建筑设计事务所
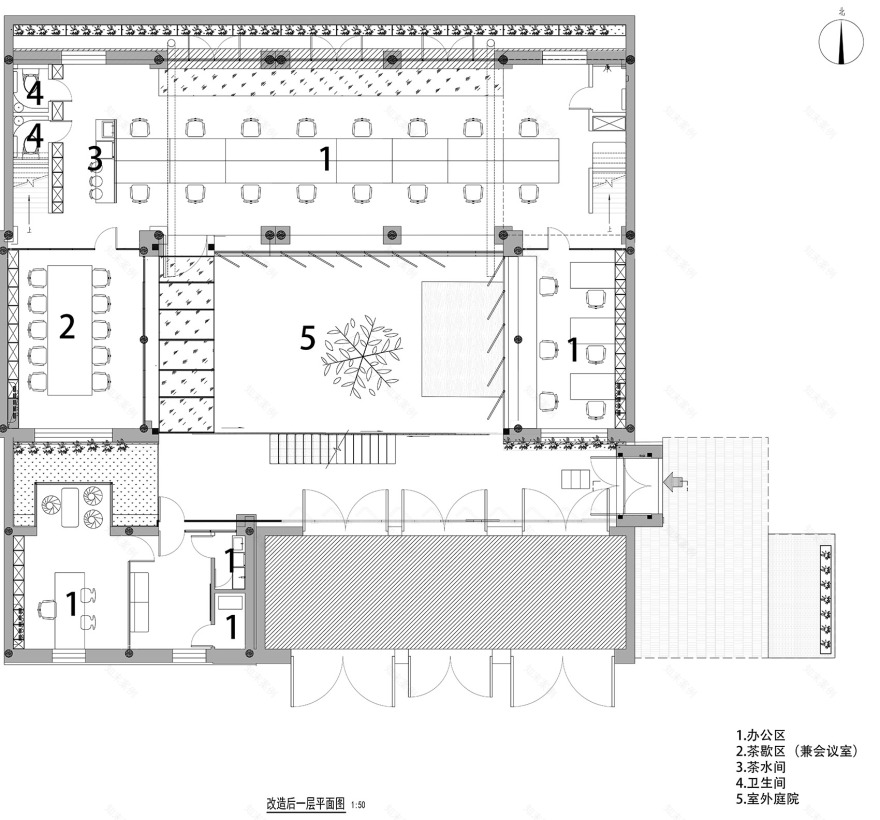
▽一层平面图© 八作建筑设计事务所
▽夹层平面图© 八作建筑设计事务所
▽屋顶平面图© 八作建筑设计事务所
▽立面图 1© 八作建筑设计事务所
▽立面图 2© 八作建筑设计事务所
▽立面图 3© 八作建筑设计事务所
项目名称:铜井大院 6 号院落改造项目
项目地址:中国北京市西城区铜井大院 6 号
建筑面积:170.2501349㎡ 院子面积:80.2501349㎡
项目设计&完成年份:2021
设计方:北京八作建筑设计事务所有限公司
主持建筑师:张曙辉、王淼
设计团队:郭旺龙、周亚茹、高楠、李怡然
施工单位:北京房修一建筑工程有限公司
业主:北京金御房地产开发有限公司
摄影版权:吕博
客服
消息
收藏
下载
最近











































