查看完整案例

收藏

下载
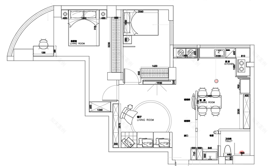
欧先生是幸福的三口之家,喜欢简洁明亮的生活环境;想要把主卧挪到有阳台的房间,厨房和卫生间分开。
1、客餐厅空间小,功能全挤在一起;
2、需要通过厨房才能进入卫生间;
3、有阳台的卧室太小。
设计师将极简和奶油风结合在一起,打造一个简约、纯净的生活空间。
1、将原厨房拆掉改餐厅,并使用玻璃隔断;
2、阳台改为半开放式厨房;
3、洗手台外置,做干湿分离;
4、扩大有阳台的卧室空间,改为主卧。
入户是一个简单的鞋柜设计,满足一家三口的鞋物收纳,中部的开放格不仅可以放钥匙,还可以安装灯带增添归家仪式感。
走进客厅,你就能感受到柔和与舒适的双重体验,奶白色墙漆配上哑光地砖,淡雅的色系如同梦幻般的氛围,让每一个瞬间都变得如此美好。
客厅在布局上比较注重简洁大方,因此天花不做吊顶,在四周安装线性灯,从视觉上拉伸了层高,空间也显得更为明亮。
沙发背景墙做一个带弧形线条的墙板,侧边也是连接入户空间,转角处磨平了棱角,更加连贯,设计内嵌灯带,烘托出精致唯美的氛围,背景层次感也更加丰富。
看着随意的布艺沙发,一坐下去,就感受到无与伦比的柔软细腻,让整个家中飘起一股温柔奶油风,静谧又疗愈。
侧边定制一整面奶咖色的收纳柜,承包整个客厅的物品储存功能,保持了整洁有序的空间状态。
电视柜做的是回字型,中间的位置刚好可以嵌入一台电视,视觉上看起来也会比较平整美观。
客厅与餐厅之间有一面隔断,它是墙体和玻璃砖的组合,在区分空间的同时,光源还可以互通,若隐若现的朦胧美,搭配一个岩板石柱装饰,显得时尚有质感。
餐厨之间有一根拆不掉的称重柱,便运用圆柱的设计手法,完美弱化它的存在感,让空间更加有层次,设计感也比较强。
餐厅在奶油色调的基础上,增添了许多原木纹理,给素雅的空间增添了一丝烟火气,让用餐氛围更加温馨。
餐边柜则是咖色和原木色的组合,充斥着朴质和自然的味道,中间留空的地方是用来放小家电的,给餐桌和厨房腾出空间。
弧形转角和拱门的搭配,增加了空间的流畅性和艺术感,使得整个空间更加精致、柔美。
厨房改到阳台之后做了半开放设计,外有一望无际的天空,内有通透宽敞的格局,给人带来了豁然开朗的视觉享受。
因为阳台的空间足够宽敞,设计完厨房后还可以放下洗衣机和烘干机,与厨房的排布线条简洁明了,共同揽入自然美景,充满随性慵懒的美感。
将阳台包进卧室之后,主卧拥有了更为舒适的尺度,整体的色彩搭配也是更为丰富的奶油色系,而头顶上的洗墙灯,营造了更为柔和静谧的睡眠空间。
卧室借取了儿童房和走廊的面积,定制一整墙的衣柜,入墙的设计,不但把收纳空间直线拉满,还灭掉了许多卫生死角,更整洁显大。
阳台地面抬高了8cm来划分区域,并铺设木地板,加入射灯,营造温馨浪漫的氛围,是在家的一处休闲小角落,随地躺平放松身心。
原本一体式卫生间将洗漱台外置,轻松实现干湿分离,悬空的设计手法和灯带光源的烘托,增加了视觉上的轻盈感。
整个屋子是做出了比较大的改变,拆了东墙,补了西墙,最后剩下的隔断也比较少,整个家也将自身的光线都发散出来。
水电是根据改造后的格局和业主一家目前的用电情况,重新规划的,也抛弃了老化的电线,让家的用电更为长久、安全。
客服
消息
收藏
下载
最近






















































