查看完整案例

收藏

下载
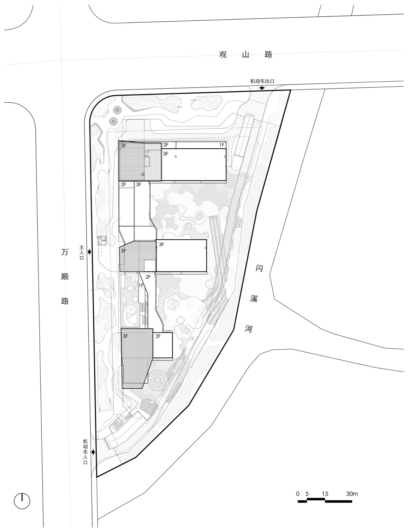
基地位于无锡市经开区,北临观山路,西面万顺路,地块呈三角形紧邻东南侧的闪溪河。根据地块形状,公共空间布置在临街一侧,教室单元位于东侧,两两相对围合出面向自然河道的活动场地。▽西南角鸟瞰©山间影像
▽西侧鸟瞰©山间影像
▽西北侧鸟瞰©山间影像
▽教室单元沿自然河道展开©山间影像
▽公共空间沿城市主干道展开©山间影像
内部流动空间
门厅中庭处的大台阶在半层分为两支导向东西向教室单元,再经由体块层叠向上,挑高门厅空间,以或凹或凸的平台交织出丰富的空间体验,通过层叠孔洞的假山意象创造出流动的空间感受。
▽轴侧图©STWD
▽门厅假山轴侧分析图©STWD
▽门厅中庭©山间影像
▽大台阶望向入口空间©山间影像
室外庭院空间则拟用山形,分隔以半透明穿孔网帘,使步道交叉并列,平台层级后退,模糊内与外,联系此处与他处,构建出错落有致的活动场所,从而引导出视线、感知和行为的交织,为孩子们创造自由交流的氛围。▽层叠平台©山间影像
▽室内公共活动空间©山间影像
自然环境
▽庭院假山轴侧分析图©STWD
▽庭院假山鸟瞰©山间影像
走廊必定会有一个室外活动场地与之相邻,而这个室外活动场地则通过平台或台阶的设置逐层引导人们进入室内空间。自然环境与室内空间的过渡和转换,使幼儿园内部形成了一个无边界的活动乐园。▽逐层跌落的活动平台©山间影像
▽庭院空间©山间影像
▽步道交叉并列©山间影像
▽内部庭院构筑出丰富的活动场景©山间影像
▽绿野仙踪©山间影像
朝西的屋顶平台和内部庭院通过半透明的材料围合出一个隐秘的儿童堡垒,减少了与自然环境的隔阂,增加了活动的乐趣。而针对场地南北向的狭长特性,设计上利用教学单元围合出多个面向河道的半开放庭院,供孩子们活动使用。▽教学单元围合出半开放庭院©STWD
▽孩子们在开阔的活动场地中玩耍©山间影像
空间的错动引入了自然光线的变化,从而形成了连续的却又不尽相同的空间印象,为孩子们带来专属的场景记忆。▽错动的中庭空间引入丰富光线©山间影像
▽街角处多功能活动室©山间影像
城市尺度
作为城市公共建筑的一部分,教育建筑应当成为一种更具普适文化意义的存在,影响到使用该建筑的人以及周边的居民。
▽校园与城市©山间影像
▽教学单元夜景©山间影像
▽教学单元夜景©山间影像
半透的穿孔网帘横亘在东西向立面之上,结合不同节点的开窗,串联起城市界面,并柔和了校园与城市之间的明显分割,为建筑附上公共与人文属性。▽放学场景©山间影像
▽透过穿孔网帘的柔和光影©山间影像
▽夜景©山间影像
▽嘈杂城市街道与安静建筑立面©山间影像
设计通过退让的城市空间创造了线性公园,提供家长等候区的同时,利用景观打造了宜人的漫游路径,创造出安全的儿童步行系统,提高了城市街道的舒适度和连续感。▽城市公共空间©山间影像
▽街角空间©山间影像
教育建筑具有其多重属性——从儿童角度出发,我们希望创造多样化的模糊空间;从城市尺度出发,我们希望教育建筑能够成为城市公共体系的一部分,发挥其社会功能,成为城市的文化现象。▽线性的城市界面©山间影像
▽鸟瞰©山间影像
▽夜景©山间影像
▽总平面图©STWD
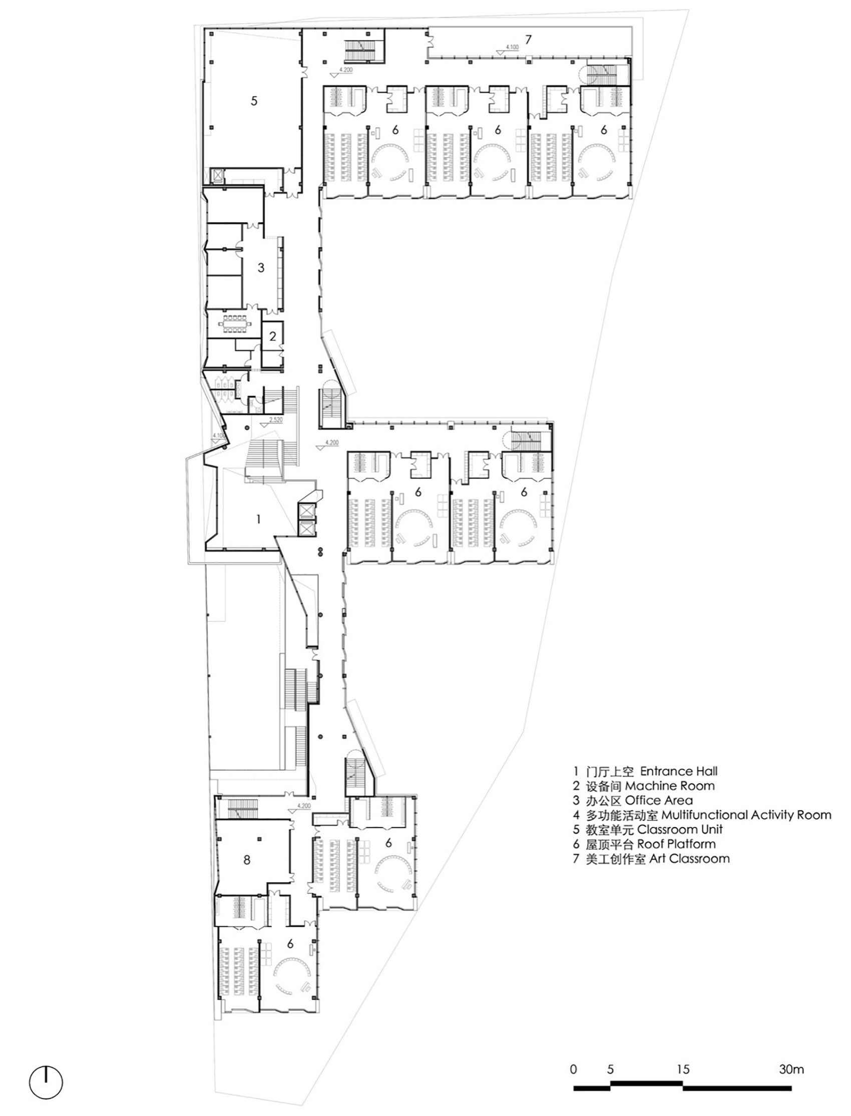
▽一层平面图©STWD
▽二层平面图©STWD
▽三层平面图©STWD
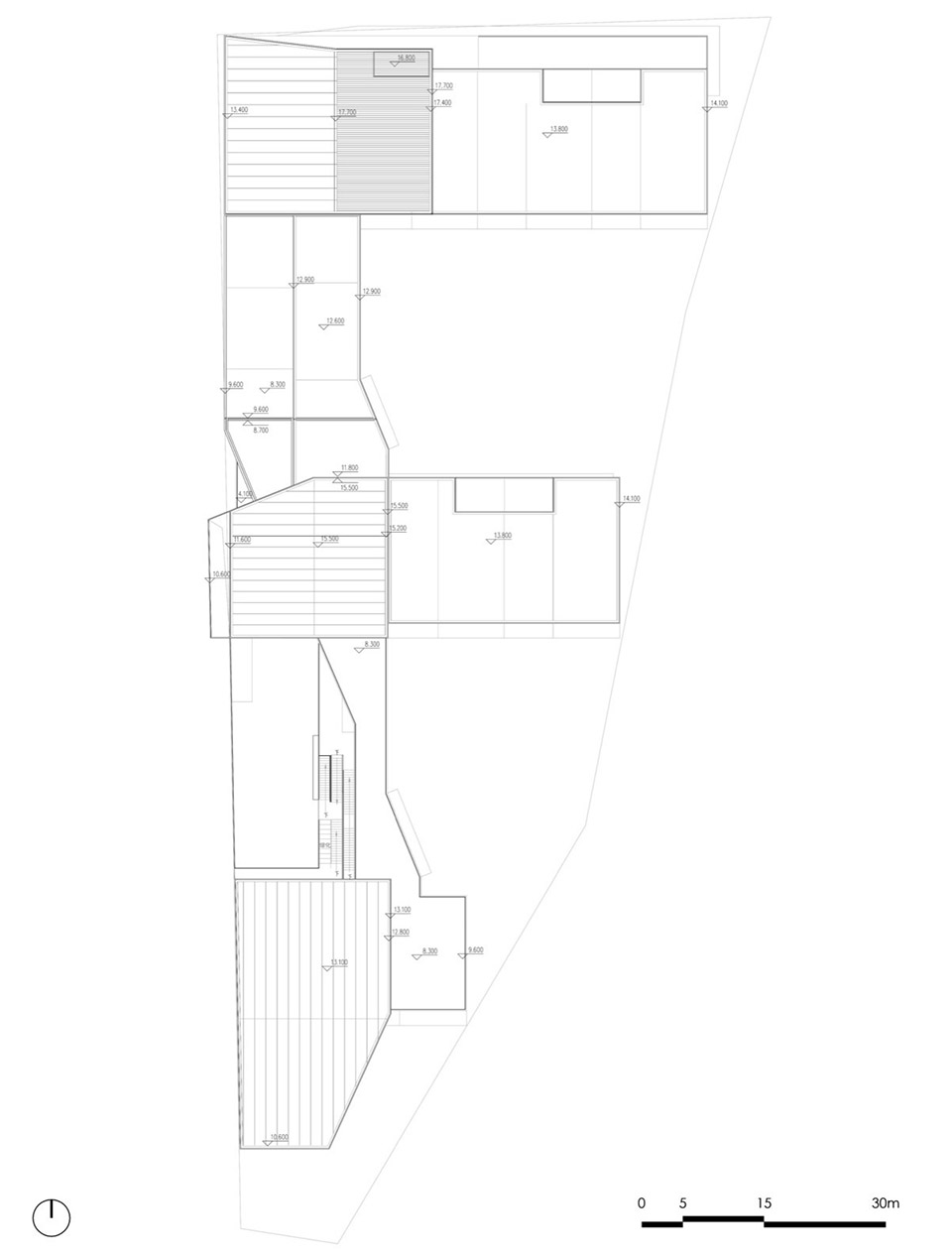
▽屋顶层平面图©STWD
▽西立面©STWD
▽东立面©STWD
▽北立面©STWD
▽南立面©STWD
▽1-1 剖面图©STWD
▽2-2 剖面图©STWD
项目名称:无锡和韵幼儿园设计
项目类型:教育建筑
设计方:STWD 十拓建筑
项目设计:2019-2020
完成年份:2022
设计团队:王纲,刘飞,李睿,周鹏飞,曹明明,王宁,张丽君,张姝,孙楠
项目地址:江苏省无锡市经开区观山路与万顺路交叉口
建筑面积:16,600.2501349㎡
摄影版权:山间影像,STWD
合作方:江苏博森建筑设计有限公司
结构设计: 江苏博森建筑设计有限公司
景观设计: 苏州致朗建筑景观设计有限公司
施工方: 江苏扬建集团有限公司
客户:无锡经开区建设局
客服
消息
收藏
下载
最近















































