查看完整案例

收藏

下载
位于深圳市中心区的福田中学是特区内规模最大的寄宿制高级中学之一。超高的建筑密度、紧张而复杂的都市环境,使其成为 2018 年福田新校园行动计划“8+1”建筑联展中最受瞩目的项目之一。颠覆传统校园与城市分隔而设的惯例,打破边界、城校共享,原址重建后的福田中学试图提供一种“城市中的城市”的校园新类型。
项目背景
1980 年,深圳设立“经济特区”之时,还只是一个人口仅 30 万的小渔村。漫长的海岸线和与香港毗邻的地理位置,使其具有重要战略意义。这座城市经历了人类历史上最快的城市化进程,仅 44 年后的今天,城市人口已接近 1800 万。
▽极致的场地环境:丰富城市与景观肌理中的校园© 胡康榆
这种前所未有的城市增长模式犹如一把双刃剑:一方面,它使深圳在社会和经济上成为中国创新的引擎;另一方面,深圳的土地稀缺和随人口扩张不断增长的公共配套设施需求之间的矛盾日益激化。深圳的人口与北京相近,但面积仅为北京的八分之一;公共配套,特别是教育用地严重短缺,学校数量远远无法跟上城市发展的脚步。深圳不仅在短时间内需要新建大量的中小学以迅速填补巨大的学位缺口,而且土地的稀缺迫使这批学校走向高密度校园的新类型。▽场地区位© reMIX
▽场地原状© reMIX
项目所在的福田区是特区的核心腹地,位于福田区中心的校园周边数公里内,可以看到这个年轻城市快速城市化产生的极为多样的城市肌理:东侧远方是香港米埔自然保护区湿地和连绵山脉,近处有拥挤的城中村(福田村,少数城中心存留的城中村之一);西侧则是开阔的都市绿轴中心公园,远方则是 CBD 天际线;北、东、南三面被百米高层紧贴环绕,仅有西侧与城市街道福田路接驳——福田中学的场地可以被视作补完这片超高密度城中心区中的最后一块用地。
▽极致的场地环境:丰富城市与景观肌理中的校园© 张超
城市对创新的追求在福田中学的设计竞赛中得到了回应。福田新校园行动计划“8+1”的一系列学校设计里,竞赛任务书要求建筑师从根本上重新思考“校园”的概念,探索新的学校建筑类型以应对前所未有的密度,适应新的教育模式改革;反思当代校园应担当的角色,提出新的校园空间范式以更好的与周边社区产生真实而紧密的共享关系。▽高密度城市包围的校园(日景)© 张超
城市策略
设计将教学塔楼和高层的宿舍体量沿着用地东侧和南侧布置,操场则布置于场地西侧,与周边已有的城市肌理共同形成东高西低的天际线,平稳地向西侧中心公园过渡。宿舍楼的庞大体量(长 120 米、高 50 米),经由一系列水平和竖向的体型“裂缝”,获得通透疏朗而尺度宜人的体形而融入周边环境,避免其产生对校园内外环境的压迫感。▽城市剖面© reMIX
▽多重地面© reMIX
▽从中心公园看向校园© 张超
不同于大部分中国的中小学中操场被作为校园中心焦点的方式,福田中学始终向外聚焦,平行交织与微折的教学楼体量创造多条东西向视觉通廊,最大限度的扩大朝向开阔的中心公园和远方起伏的 CBD 天际线。学生不再与城市隔绝,而是成为周边都市的积极观察者。▽设计生成© reMIX
▽顶视图© 张超
▽校园鸟瞰图© 张超
一座没有围墙的学校:真正的城校共享
在中国,中小学校园在城市中仿若孤岛存在,是一座座从周边社区分离出来的小城市。丰富的空间设施因安全、管理风险等原因难以对外开放,日常使用坪效却很低。
▽功能布局© reMIX
而福田中学的设计则对这种现状发出挑战:从规划布局策略到建筑动线设计,将最多的文体设施对社区开放,采用更加灵活的管理方案,减少公共设施的闲置和重复建设,这对于寸土寸金的高密度城区而言更为重要。
▽裙房轴测图© reMIX
▽剖透视图© reMIX
▽校园入口:还给城市的广场 (清晨)© 张超
▽通往架空操场的城市侧快捷入口© 张超
为了能够在用地紧张的场地上实现设计任务书中的所有功能需求,设计将操场抬升至 7.4 米的平台之上并靠西侧城市街道放置,如此布局造就了一个与众不同的城市界面:学校沿主干道的边界不再是围墙,而是一个透明而有吸引力的立面,市民可直接从街道进入社会门厅,进而通向操场平台下方的一系列文体设施。朝向城市和校园内部的双门厅设计,使得分时共享可以便捷的发生,却不会与校园内的学生活动相冲突。在周末或者举行特殊活动时,总面积达 13600 平方米的文体设施(篮球馆、风雨篮球场、排球场、羽毛球场、健身房、游泳池、展览空间以及一个可容纳 1000 人的报告厅)均能对外开放,使学校由封闭的孤岛转变成一个真正向公共开放的市民中心。▽宿舍立面© 胡康榆
▽B 栋公共讨论区立面© 袁小宜
▽教学楼与学生宿舍© 胡康榆
▽跳高比赛:宿舍作为背景© 袁小宜
为应对地块的不规则形状和局促的入口空间,设计将原本南北方向布置的操场逆时针旋转 15 度,不但可以吸纳不规则用地红线所造成的一系列边角空间,还在场地西南侧形成放大的入口广场和更加宜人开放的公共共享城市界面。操场的旋转使我们还给城市一个近千平方米的入口广场,一经落地即成为周边市民休闲、儿童玩耍运动的活力街区公园。▽入口架空广场© 张超
▽风雨篮球场© 胡康榆
▽连接裙房上下运动空间的楼梯© 胡康榆
▽羽毛球场(非空调区)© 张超
占据近一半场地面积的 400 米田径场,是具有田径特色的福田中学体育教育的核心设施,也是周边 2 公里范围内唯一的标准田径场。它与真草足球场、可容纳超过 3000 名观众的看台一同,让福田中学的操场成为区级体育设施:除周末及寒暑假为周边市民提供专业的运动场地外,也为周边中小学一年一度的校园运动会提供场地。我们在面向福田路的校园西侧界面通过一系列楼梯、坡道,将空中操场与地面街道顺滑连接,空中平台还预留立体交通网络接口:在不久的未来这里将接驳一座通向对面中心公园的步行天桥,让城市中的公共资源实现彼此之间真正的互联互通。
▽雨棚立面© 张超
▽雨棚模型© reMIX
▽田径场© 袁小宜
▽看台雨棚© 胡康榆
▽田径场© 张超
▽运动场雨棚:天花© 胡康榆
超高密度校园的空间应对
福田中学在占地约 41000 平方米的原校址通过重新的校园设计,升级成为一所拥有 60 个行政班 3000 名高中生的寄宿制高中。超大的目标总建筑量使得除去田径场外建筑用地上的容积率达到 3.87,是普通中学的 2-3 倍,因此被称为“8+1”福田新校园行动计划九所学校中的“高密度之王”。
在如此极端的高密度状况下,设计要满足日照条件、自然通风、消防安全以及其他严格的规范要求,已然是一项巨大的挑战。但最为挑战性的是,如何才能减少如此高密度校园所产生的压抑感?为此,我们提出“多孔校园”和“多层地面”两个空间策略。
▽峡谷自然博物馆© 张超
▽峡谷:多孔性© 张超
多孔校园的策略在水平和竖向两个维度上展开。水平向度上,一半以上的建筑体量置于抬升的操场层以下,在操场层(高密度校园的真正“人工地面”)感受到的校园空间则呈现出一种出人意料的松弛和疏朗,但抬升操场下超大进深裙房的空间品质也必须被周全的考虑。于是,我们见缝插针的植入大大小小的下沉庭院,激活空间深处的自然采光与通风,“板下空间”不仅完全避免了如地下室般的逼仄观感,且提供了大量遮风避雨、不需空调的运动与休闲空间。在垂直向度上,宿舍及教学楼各层的架空活动空间,将东南风引入稠密的校园空间深处。这些精心设计的“空”,不仅创造出适宜亚热带气候条件的可呼吸空间聚落,同时也在庞大的校园中,带来与人亲近的尺度空间。▽学生食堂© reMIX
▽运动场© reMIX
▽裙房运动设施的学生门厅© 张超
▽羽毛球场(非空调区)© 张超
▽健身房© 张超
▽篮球馆© 张超
▽直接面向城市街道的报告厅社会门厅© 张超
▽直接面向城市街道的报告厅社会门厅© 张超
▽学生食堂© 张超
多层地面是在高强度开发的情况下保证校园空间品质的重要策略。我们以立体多层的户外空间格局,在高密度的校园中最大限度的引入自然,强化建筑与景观、室内与室外的融合:高效利用下沉庭院、裙房顶面、建筑物屋面,最大化室外和半室外活动空间,通过一系列空中连廊、架空层、屋面花园构成丰富多元又尺度宜人的校园空间体验。
▽多层地面:望向 CBD 天际线© 胡康榆
THE LOOP | 空中社交圈:不仅仅是一个交通体系
“THE LOOP”的出发点是解决一个高密度高层校园中这个极具挑战性的问题:3000 名学生在高达 13 层的宿舍楼和数栋高层教学楼中穿梭,瞬时竖向人流压力如何能得以缓解?电梯自然无法完全解决这个问题。我们提出了空中社交圈的概念:它由串联教学区各建筑的 400 米环路和宿舍楼 200 米的架空层共同组成。它不仅在 20-30 米的高空塑造了一个视野极佳的第二地面,也成为宿舍与教学楼之间的“捷径”。它提供了一种新的交通方式,同时将高层建筑的宿舍楼以中央架空层划分成上下两个多层建筑,形成一个适合垂直校园体系的交通系统。
▽空中社交圈© 张超 / 胡康榆
▽从宿舍架空层走向空中社交圈© 胡康榆
▽从宿舍架空层走向空中社交圈© 张超
▽教学楼间的视线通廊© 张超
▽空中社交圈:空间节点© 胡康榆
▽空中社交圈:从教学楼走向宿舍楼© 张超
▽空中社交圈:通透的实验室展示界面© 张超
▽空中社交圈:教学楼连桥© 张超
▽空中社交圈:露天阶梯教室© 张超
▽空中社交圈:自由讨论区© 张超
▽空中社交圈:露天阶梯教室© 胡康榆
当然,空中社交圈远不只是一个高效的交通体系,在规划上不是出于最短路径原则,设计上也不是一个简单的连廊系统,而是一个在教学楼 6-7 层间上下起伏,由楼梯、坡道、架空层、露天剧场、屋面花园等串联起来的连贯社交空间体系。它连接了校园高区中一系列最为公共的使用功能——教学区灵活教室、露天阶梯教室、宿舍共享学习及健身区等——这一系列非正式社交空间和创新启发式的学习空间,鼓励师生之间的交流、共享与碰撞随时随地自然发生。空中社交圈营造了 20 余处尺度、高低、视野、围合感各不相同的户外和半户外空间,成为学生日常的发现与惊喜的来源——它在超高效的空间体系中提供了适度低效的可能,在超级集体生活中提供了极为必要的个人体验空间。
▽教学楼立面© 胡康榆
▽教学楼© 胡康榆
▽教学楼© 胡康榆
▽空中社交圈与教学楼的交接© 胡康榆
▽教学楼立面:金属立面与混凝土立面的对照© 胡康榆
生态校园
福田中学紧邻深圳一条极为重要的候鸟迁徙通道。改造前的福田中学,每到候鸟迁徙季节,学生们便能看到成群的鸟在运动场的草地上休憩;改造后的福田中学维持东高西低的校园布局,种植真草的足球场与原福田中学操场草坪一样,继续与中心公园实现生态联动,成为一个对鸟类友好的生态校园,延续福田中学独特的空间记忆。
▽峡谷区© reMIX
▽候鸟迁徙路径© 胡康榆
▽生态剖面© reMIX
▽教学楼西立面© 袁小宜
在校园景观层面,我们希望福田中学成为一个促进物种多样性的海绵校园。操场、裙房屋面、空中活动圈和塔楼屋面布置有丰富的景观绿化,构建一个立体的生态和雨洪管理系统。教学楼的屋顶绿化设计各不相同,除屋顶农场、天台花园外,我们还为鸟类的栖居和觅食专门预留了一个非上人绿化屋面。
▽通透的城市界面© 胡康榆
▽宿舍架空层:望向 CBD 天际线© 胡康榆
校园中立体多层的景观空间共同形成相互连接的生态基础设施,除了雨洪管理、鸟类保育等功能外,我们还在裙房中设置了一个峡谷自然博物馆,这个空间是设计师与各学科老师共创的结果,融入地理、自然、生态等学科的教学内容,为学生提供宝贵的教育素材和户外课堂,让教育与建筑真实的互动,让校园真正成为一本教科书。
▽校园夜景鸟瞰© 张超
▽校园入口:还给城市的广场 (傍晚)© 张超
▽位于三层的教学裙房屋面广场© 胡康榆
▽田径场与教学楼© 胡康榆
▽新旧对比:教学楼走廊© 胡康榆
▽新旧对比:校园入口© 张超
▽新旧对比:城市界面© 张超
▽操场:安静的日常与沸腾的运动会© 胡康榆
▽首层平面图© reMIX
▽三层平面图© reMIX
▽六层平面图© reMIX
▽七层平面图© reMIX▽南北向剖面图© reMIX
▽东西向剖面图© reMIX
▽雨棚节点图© reMIX
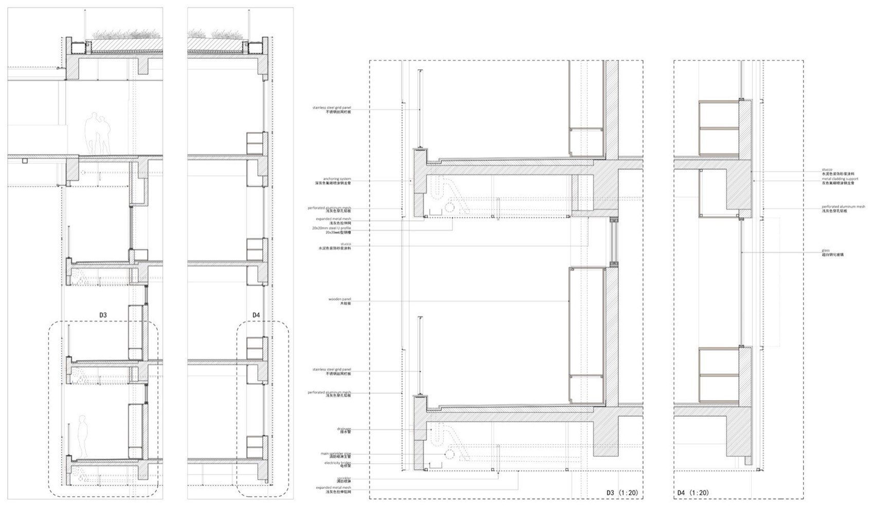
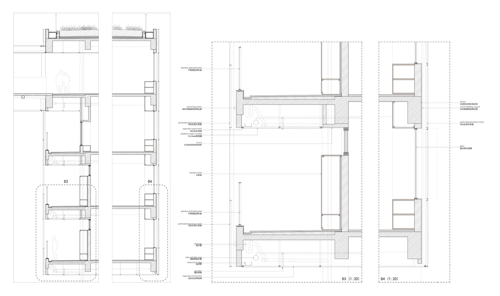
▽宿舍节点图© reMIX
▽教学楼节点图© reMIX
年份:2018 – 2023
面积:120,774 m2
类型:教育建筑
状态:已建成
地点:中国,广东省深圳市
业主:深圳市福田区教育局、深圳市福田区工务署
主持建筑师:陈忱、Nicola Saladino、吕守拓、Federico Ruberto
项目建筑师:张佳佳
设计团队:陈牧之、段锦童、王翊人、刘杨洋、徐冰凌、陈思、陈宇轩、谭露(竞赛阶段)
Alexandre Braleret、王翊人、Marco Navarro、聂鹏、Javier Pelaez、许诺凡、陈思、黄佳鸿、王瑞婷、姚杰奇(深化阶段)
代建单位:深圳市万科城市建设管理有限公司
合作设计院:深圳市华阳国际工程设计股份有限公司
景观设计:深圳派尔景观规划设计咨询有限公司
室内设计:深圳市艾斯蒂设计有限公司
照明顾问:北京宁之境照明设计有限责任公司
摄影:张超,胡康榆,袁小宜
客服
消息
收藏
下载
最近



































































































