查看完整案例

收藏

下载
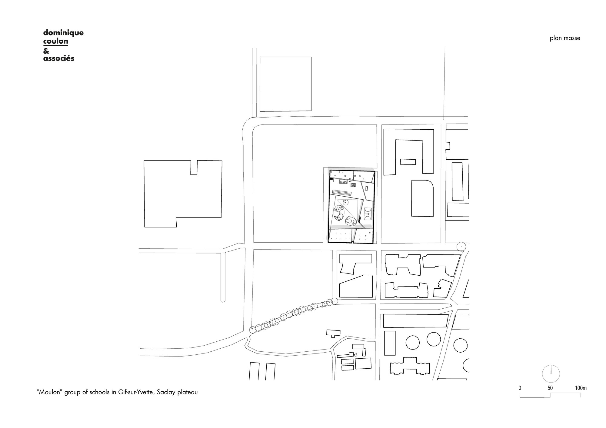
由 XDGA 机构和景观设计师 Michel Desvignes 起草的总体规划,在这种具有强烈识别性的城市更新的动态中,为我们提供了一个极其刺激的体验机会。
该项目完全符合该镇规划师提出的建筑比例计划。这组学校在西面有很大的孔隙,而其他三面的建筑在操场周围形成了一个保护性的围墙。不同的入口(幼儿园、小学、休闲区)都位于 Moulon 的步行路线上。因此,这组学校与公共空间建立了密切的关系。
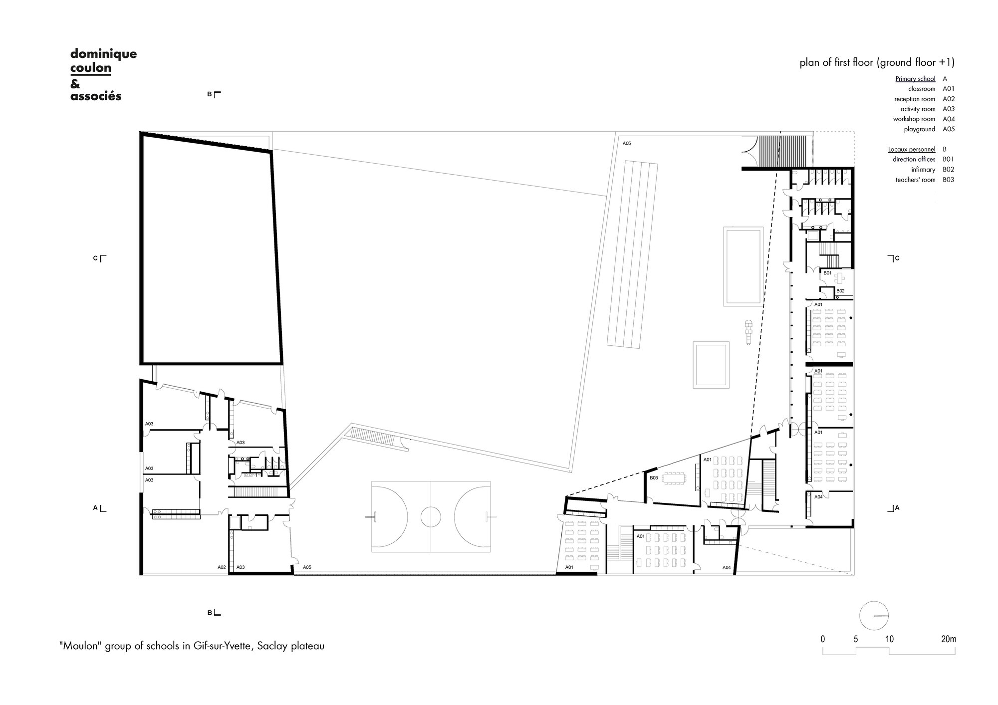
这组学校所在的街区由非常浅色的建筑组成,主要是白色和浅灰色,并采用四方形设计。我们的项目通过色彩的使用,将其与这一背景形成直接对比,从而肯定了其作为公共设施的地位。地块边缘的外墙提供了从白色到黑色的砖块颜色的像素化渐变,不仅与周围环境形成对比,也与建筑的核心部分形成对比。这反过来又是高度彩色的,蓝色和鲜明的橙色,通过明确的对角线游戏赋予了额外的个性,对于建筑的平面图和横截面,以及外部和内部,我们已经尽力摆脱了正交系统。
然后,幼儿园及其操场、校外接待区、食堂和体育馆都在一楼。小学则分布在其余两层。它的操场在屋顶上,给两个阶段的孩子们提供了明显不同的位置。
通过这种方式,我们为这组学校的各个部分提供了他们自己的独立身份,创造了特定的场所和对比,形成孩子们的专属。这使得这个设施,尽管它的外观很宏伟,但其也有符合其年轻用户的空间,而且更有亲和力。
文字描述由建筑师提供
译者:韩雨欣
建筑师: Dominique Coulon & associés
面积: 7400.2501349m²
项目年份:2022
摄影师:Eugeni Pons
主创建筑师:Dominique Coulon, Ali Ozku, Olivier Nicollas, Hannes Libis, Olivier Poulat, Lukas Unbekandt, Hugo Maurice
场地监督:Ali Ozku
厨房顾问:ES Énergie
核心和外壳以及机械管道:COLAS
完工阶段:ART MANIAC
金属工作:ALKIMIA
室内木质细工:LA FRATERNELLE
室外规划和绿色空间:EUROVIA
厨房:LE CLOAREC
抹灰工:SOGEFI
结构工程师:Batiserf Ingénierie
电气工程师:BET G. Jost
环境保护:SOLARES BAUEN
成本估算:E3 Économie
声学顾问:Euro Sound Project
景观建筑师:BRUNO KUBLER
项目城市:Saclay
项目国家:法国
设计师:Dominique Coulon \u0026 associés
客服
消息
收藏
下载
最近
































