查看完整案例

收藏

下载
探讨城市与建筑的图底关系,不仅仅要研究肌理、边界、空间的组织形式,同时更要关注人的活动路径及行为模式,即行为与空间的交互作用。▽北向鸟瞰:“创坊聚落”与城市©许昊皓
城市与建筑的主客一体,让我们不禁好奇,是否在互为图底这种二维单一的关系之外,存在双层的图底关系:第一层是建筑与城市之间的图底关系;第二层是建筑单元要素与建筑整体之间的图底关系。▽架空空间:“创坊聚落”单元要素与整体©许昊皓
调研与背景
芒果马栏山广场位于长沙马栏山视频文创产业园(又名 V 谷,以下均以此简称)。通过调研,作为使用人群的媒体人,其办公时间、地点、人员都具有明显的不确定性;并且媒体的生产需要与社会无缝对接的,而封闭、容器式的空间某种程度上,难以与之匹配。
▽媒体人的行为与空间模式分析©地方工作室
▽开放的城市界面©许昊皓
设计试图构建一种“创坊聚落”的空间体系,与作为“底”的城市进行耦合,使其空间生产模式契合媒体的真实行为与模式。▽开放的城市界面©许昊皓
模糊的图底关系
一般意义上的城市与建筑,图底关系是清晰的,界定是明确的,这亦是其清晰权属关系使然;同时也是我们习惯于建立硬化、刚性的边界,来围合出各自的使用空间。
而该项目旨在通过研究聚落组合关系、聚落与城市之间的融贯互通,以及聚落内部的单体构成,来消解和弱化清晰的图底关系,使建筑与城市的图底关系趋于模糊。使两者之间存在图底对位、互换、模糊的可能性,使模糊性的、不可预期的社交生活成为可能。
▽清晰的图底关系 VS 模糊的图底关系(鲁宾杯)©地方工作室
“创坊聚落”由 12 个混凝土盒子构成,它们以散点透视般的错、动、扭、转,随机自由、互成角度的散落于场地。盒子之外的首层架空处理,“空”于城市,还与市民。区别于传统沿街界面的图底鲜明,它们之间的边界取消、图底模糊。建筑首层也成为了城市公共空间的一部分,而城市公共空间是社交生活的“容器”,社交生活是城市公共空间的内核。
▽模糊的图底与不确定的交往空间©地方工作室
▽“图-底”图式的构成©许昊皓
盒子与盒子又形成“间”的关系:夹着隆起的“浅丘”,形成商业功能的“间”;相隔较近的形成狭缝的“间”,如传统民居中的一线天;伴随着下沉台阶、坡道的,又形成了路径的“间”。“间”的关系反哺着建筑的“空”,它丰富着公共空间的社交体验。
▽模型©地方工作室
▽东南角:盒子、吊桥、“浅丘”©孔锦权
▽“浅丘”之下©孔锦权
“空”与“间”的关系处理,回应的是建筑如同聚落般与自然之间边界的融通,“创坊聚落”也与城市相互渗透,彼此共融。▽互成角度的盒子©孔锦权
▽互成角度的盒子©许昊皓
多维的图底关系
“创坊聚落”本身也存在着“图—底”关系,它不局限于二维的常规平面化操作,而是立体多维的,同时更强化了时间维度在空间体验中的感知。
▽建筑底部“空”于城市©孔锦权
▽建筑底部“空”于城市©许昊皓
架空之上,盒子单元之间的错动,看似随机,实则受制于承载结构、悬挑距离等力的制衡法则。真实的室内围护立面内退,留出了非实用功能的室外平台、景观庭院、空中游廊,与疏密有间的结构柱等共同构建了属于该项目的界面。
通透的内退幕墙,与实体的清水墙面构建了属于界面的“图-底”图式,它不仅形成了视觉的形式,更重要的是提供了活动展开的场所,游廊之上,平台之间,催生着各种未可预知的事件。游廊本身是功能性的,它可联系上下层;亦是漫游式的,它与景观庭院、室外平台一起,成为人们的休憩之所。在此一切的使用都与办公无关,它与低效的得房率一起,抵抗着常规的“效率”,呈现一种熟悉又陌生的“怪诞”。
架空之上亦存在一个诺大的空中共享大堂,旨在提供咖啡、书吧、展览、路演等非办公、非实用的“功能”。我们希望这些非实用的“功能”与办公功能,在有限的容积率内异化重组、彼此交融,或许对应着提供创意的场所,而不是常规的那样崇尚“效率”、单一、机器般的功能空间。
▽空间层次轴测分析图, axonometric©地方工作室
▽空中共享大堂©孔锦权
游廊、庭院、平台、大堂等要素自此形成了属于建筑的“图”,但当行径其间,又感觉它属于城市,因为此刻明显身处室外,犹如微缩的“广场”与“街道”,应该是城市的“底”?或许属于谁的“图”或“底”都已不再重要,在此驻留行径时,光、风、视野与感受才重要。
▽外围廊道与路径©孔锦权
▽天井、廊桥©孔锦权
▽柱、墙、人©孔锦权
结语
该项目实现了图底的“活化”理解,通过“创坊聚落”的形式,构建了双层图底关系。模糊了建筑与城市的边界,强调了城市公共空间的社交功能,使实体公共空间更具活力。同时,聚焦建筑自身的多维图底,探讨了“创坊聚落”单元要素与整体、城市及人的行为之间,多向、立体的图底关系。这种双层图底关系,呈现出一种自组织状态的空间结构,以离散结构取代了单一结构的组织特征。
在当下信息媒介时代,人与公共空间的关系已经重构,旧的、基于空间远近的社交逐渐被虚拟的、无视远近的社交媒介取代,实体空间似乎逐步消解,而“创坊聚落”正是对此的一次温柔的抵抗,揭示出建筑与城市空间的“矛盾性”与“复杂性”。
如同保罗·克利(Paul Klee)的“湍流中的鱼”一样:鱼的线条逐渐演化为水纹的线条,二者融合在一起。我们希冀“创坊聚落”、城市与人三者“鱼水交融”,催生着各种“非正式”、“非正规”、“非理性”、多维可能性的交往空间。
▽湍流中的鱼, Fishes in the Torrent©保罗·克利(Paul Klee)
▽夜景鸟瞰图:天井、廊桥、平台与“浅丘”©许昊皓
▽场地区位, site map©地方工作室
▽首层平面图, ground floor plan©地方工作室
▽二层平面图, first floor plan©地方工作室
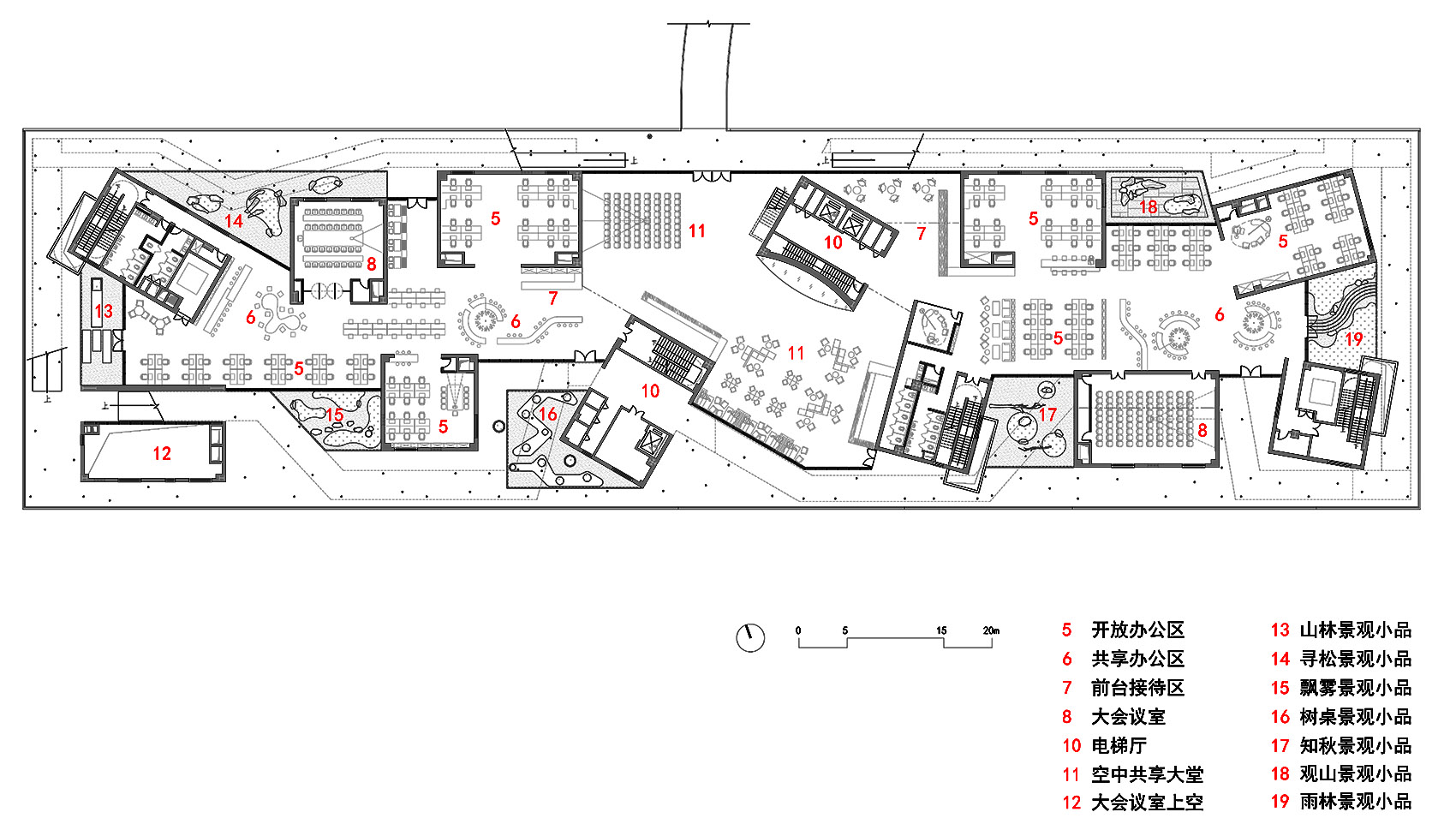
▽三层平面图, second floor plan©地方工作室
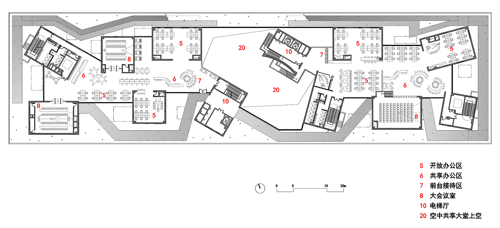
▽四层平面图, third floor plan©地方工作室
▽剖面图 1, section 1©地方工作室
▽剖面图 2, section 2©地方工作室
▽剖透视分析图, section-perspective analysis©地方工作室
▽墙身大样, wall detail©地方工作室
项目名称:湖南广电芒果马栏山广场
项目类型:建筑
项目地点:湖南省马栏山视频文创产业园
建成状态:建成
设计时间:2019 年
建设时间:2020-2023 年
用地面积:55358.03.2501349㎡(总净用地面积);14258.2501349㎡(一期净用地面积)
建筑面积:55016.45.2501349㎡
设计单位(中英文):地方工作室/Regional Studio 湖南大学设计研究院有限公司/Hunan University Design and Research Institute Co. Ltd.
主创建筑师:魏春雨
设计团队(项目参与人员):
地方工作室: 刘尔希、蒋康宁、李毅飞、肖倩、欧阳胜、曹开元、裴伟华、任蓉、吉瑞瑞、丁自力、蔡晟霖、刘思雨、刘骞、周欢、张劲草、杨汝艳、曹广、刘星宇、王瑞、陈行、蔡肇奇、张懿、游佑萱、叶宇琦、侯帅东、谢孜菲、雷磊、白喆、任雅倩、马薇茜
湖南大学设计研究院有限公司:罗学农、王欣、朱建华、邓远、刘剑、张宁、罗轶伦、周宏杨、李成、钟鸣、刘付华
结构设计:湖南大学设计研究院有限公司
机电设计:湖南大学设计研究院有限公司设备所
室内设计:长沙视码空间设计有限公司、HMD 空间设计工作室
景观设计:湖南水立方建筑与景观设计有限公司
幕墙设计:湖南大学设计研究院有限公司复杂性结构与幕墙设计研究中心
夜景照明:湖南兰德马克照明设计有限公司
建设单位:湖南马栏山芒果实业有限公司
施工单位:中建五局总承包公司
摄影师:许昊皓、孔锦权
客服
消息
收藏
下载
最近









































