查看完整案例

收藏

下载
在2019年的清迈设计周,设计师Sher Maker和家具品牌Moonler进行了首次合作。此后,前者又为该品牌的家具工厂打造了一个新的展览空间,用于呈现他们更多的作品。
▽展馆内部一瞥©Ratthee Phaisanchotsiri
为了将Chamchuri木材等原材料的品质通过家具的制造工艺充分体现出来,展馆采用了精简的方盒子设计,并且只突出展示了一张用Chamchuri木材打造的长椅,从而将参观者的视线引向屋顶上方窗洞中的树木。这种理想化的场景与今天的展示空间建立了直接的联系。
▽展馆外观©Ratthee Phaisanchotsiri
▽建筑外观细节©Ratthee Phaisanchotsiri
▽场地周边环境©Ratthee Phaisanchotsiri
▽稻田与树木©Ratthee Phaisanchotsiri
泰国北部汇集了众多技艺精湛的木工工匠,而Moonler也是专注于设计和生产Chamchuri木质家具的品牌。这种材料的价值往往被低估,并常常用于制作短期使用的家具。为此Moonler花费了大量时间和资源来研究并开发材料的管理方法,以凸显隐藏在其中的精髓和价值。整个制作过程都是在清迈当地的Doi saket区域内进行。
▽入口庭院©Ratthee Phaisanchotsiri
▽庭院景观©Ratthee Phaisanchotsiri
▽Chamchuri长椅将观众的目光引向天窗中的树木© Chaiyaporn Sodabunlu
▽窗景© Chaiyaporn Sodabunlu
▽长椅细节© Chaiyaporn Sodabunlu
展馆的设计有两个主要思路,其一是将建筑氛围与环绕工厂的乡村景观结合起来。简单的屋檐形式和长条形的展厅直接与入口庭院相连,并与朝向稻田的露台贯通。入口庭院的部分使用了亭子的设计语言来重新融入空间。建筑整体均以常见的材料和容易掌握的技术建造。
▽家具展厅©Ratthee Phaisanchotsiri
▽室内细节©Ratthee Phaisanchotsiri
▽光影©Ratthee Phaisanchotsiri
▽材料和纹理©Ratthee Phaisanchotsiri
另一个思路是创造一个能够彰显工匠技艺的核心元素。展馆中的木制立柱和横梁彼此交织在一起,在定义空间的同时,也凸显了工匠的技术以及对Chamchuri木材的重视。所有的木工制品和饰面均是基于Moonler的家具制作方法而完成的。简洁而基本的建筑元素呼应了Moonler的品牌哲学:展现静谧的力量。
▽木制柱梁©Ratthee Phaisanchotsiri
▽家具展厅概览© Patcharada Inplang
▽结构细部©Ratthee Phaisanchotsiri
▽展馆夜间外观©Ratthee Phaisanchotsiri
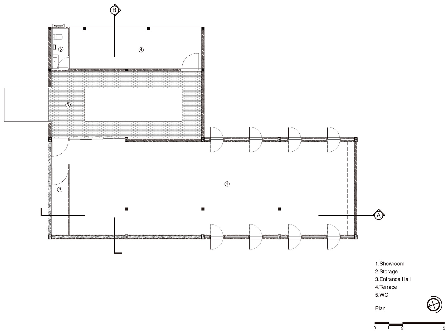
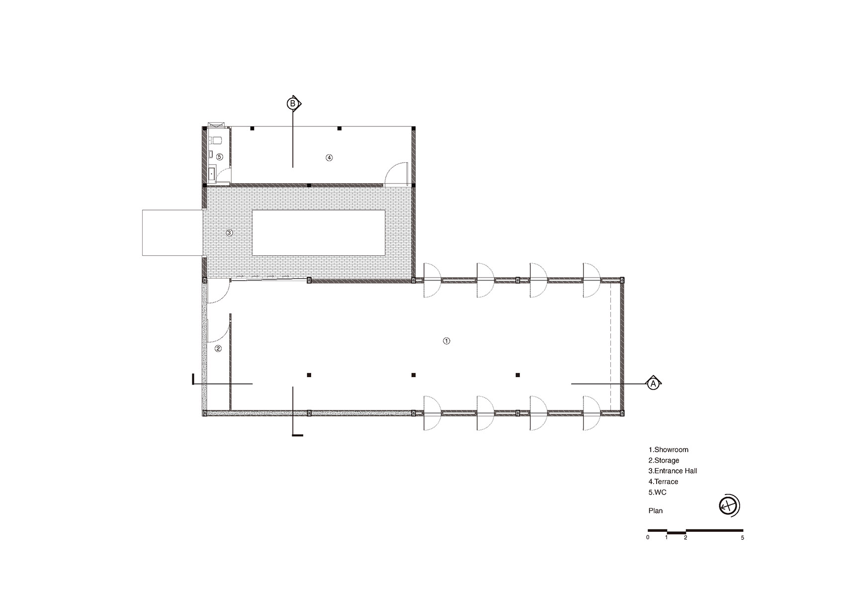
▽平面图© Sher Maker
▽立面图© Sher Maker
▽剖面图© Sher Maker
客服
消息
收藏
下载
最近











































































