查看完整案例

收藏

下载
SAVA 公布了其 Thavi Cosmetic Showroom 的计划,这是一个位于越南 Vinh 市中心的改建和翻新项目。 通常情况下,荣市的建筑往往是仓促建造的,没有太多考虑福祉,或者只是简单地复制了欧洲殖民地风格。 然而,SAVA 的提议是对热带建筑的现代诠释,仔细考虑了当地的文化和气候。
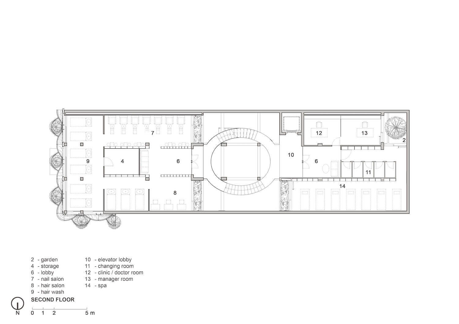
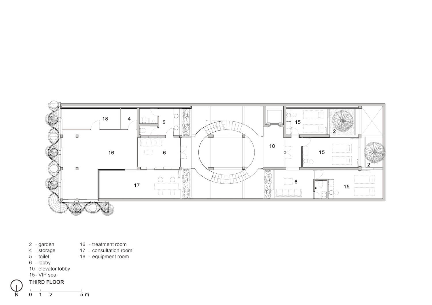
现有的三层零售大楼建于 2000 年代初期,目的是销售电器和家用电器。 客户找到 SAVA,希望将其翻新并改造成一个健康和美容水疗中心。 简介是创建一个既吸引人又吸引人的外观。 客户还要求每个空间内都有充足的自然光和绿色植物,这些空间目前是黑暗和发霉的。
SAVA 的解决方案是使用纤维增强混凝土 (FRP) 花槽作为建筑立面。 这些花盆采用模块设计,以提高质量和加快制造速度,并且它们的尺寸经过优化,便于使用越南现有的标准卡车运输。
为了将自然采光引入建筑,提案建议拆除建筑中心现有的楼梯和部分楼板,以创建一个带有天窗的中庭。 这将照亮建筑物最暗的角落。 此外,建议在中庭使用弧形金属楼梯取代现有楼梯,并巧妙地围绕中央绿色庭院布置。 此外,同样的策略也应用于建筑的背面,让自然光从前后立面以及屋顶进入。
最后,现有的波纹屋顶将被替换,以容纳一个明亮、通风的咖啡馆和屋顶用餐空间,周围环绕着种植本地灌木和植物的混凝土花盆。
项目名称:Thavi Cosmetic Showroom
建筑公司:SAVA
项目地点:Vinh, Nghe An, Vietnam
设计团队:To Quang Cam, Aron Beh Kawai, Pham Le Ai Quyen
设计年份:2023
项目可视化:SAVA
业主甲方:Private
项目状态:Concept - Design
项目类型:Commercial › Cosmetic Showroom
客服
消息
收藏
下载
最近























