查看完整案例

收藏

下载
项目区位
太平河城市片区位于河北省石家庄市体育北大街以西、古城东路以北、胜利北街以东、滹沱河南岸以南,片区紧邻城市主干道和地铁 2 号线,交通便利,总用地面积约 5.53 平方公里(8300 亩)。片区北望正定古城,南接东垣古城遗址公园,太平河在这里和石家庄的母亲河滹沱河相交汇,生态环境优越。片区现状多为小规模工业及商贸物流用地,城市形象无序,土地利用效率较低,可利用土地资源较为丰富。
▽展示中心南面© 侯博文
近年来石家庄确立了在二环内做“减法”、二环外做“乘法”的城市建设新理念,强化容积率刚性管控,深入推进以人为核心的新型城镇化,按照“缺什么补什么”的原则,不断完善城市功能。《石家庄市国土空间总体规划(2021-2035 年)》提出应充分实施拥河发展战略,拉开框架,引导城市新兴功能向滹沱河生态经济带聚集,最大限度释放两岸用地,在滹沱河两岸重点布置城市公共服务空间,依托滨水资源,塑造城市“亲水”活力岸线,构件“山、水、园、廊”互联互通蓝绿开敞空间体系,建设高颜值、高品质的山水城市。
▽展示中心区位© 侯博文
作为太平河城市片区首开工程,展示中心主要功能为片区规划愿景和文化展示,是片区对外宣传和形象展示的重要窗口。
位于胜利大街和太平河交界处东南角的展示中心项目位置非常特别,它的前方就是石家庄的母亲河滹沱河及其支流太平河交汇之处,滹沱河北岸是正定古城。正定古城已有 1600 多年历史,东晋时土筑,北周时石砌,唐代扩建为土城,明朝扩建后改为周长 24 华里的砖城。现存正定城墙是明代遗存,城垣残存 8106 米。
▽正定古城与展示中心空间肌理的关联性© azLa
开放性与封闭性
展示中心面对太平河滹沱河阔远明亮的优美自然景观,在处理建筑与自然及周边环境的关系时,会更加重视空间的开放性、关注建筑与自然的融合。在开放与封闭之间动态平衡关系的探索基础上,定义建筑和自然的关系,是传统带给我们的启发。从华夏文明最初完全开放的村落,到龙山文化时期夯实的围墙出现,再到春秋时期国与国之间建立城墙区分边界,在人类聚居历史的发展长河中,围墙的建立和打开一直贯穿其中,开放与封闭之间存在着一种空间冲突中的动态平衡。城墙和院墙是非常中国的形式要素,对外封闭对内开放是一种空间对抗冲突的建筑学表达,建筑借其实现的,是一种有明确边界的风景。
▽西北角晨曦© 侯博文
▽入口广场© 侯博文
开放性与封闭性关系的探索是这一设计思考的焦点,在整体空间关系上展示中心很明显被划分成为上下两个部分:下部强烈的封闭感沿袭于正定古城城墙及其街区的肌理,展示中心封闭混凝土清水实墙形成的基座立意于重构古城遗迹,表达并延续时间的痕迹,来自正定古城对外封闭的空间文脉和体量围合定义了展示中心主要功能群组的院落式布局,建筑底部采用错落的体量和大地联系在一起,形成对场地的“锚固”,强化特定的场所记忆。▽概念草图© 小熊
展示中心上部是一个飞碟般“悬浮”的“梦舞台”,面对天空、自然、滹沱河、正定古城完全开放。也只有在这个高度,才能感受周边的城市环境,见证太平河城市片区未来几年的快速发展,感受对这个基地来说最重要的太平河、滹沱河自然景观,并远眺正定古城,连接城市的过去与未来。▽顶视图© 侯博文
展示中心开放性的表达是在垂直维度上的,封闭性和开放性的关系在空间形态上直观的表现为“悬浮”与“锚固”的对立,通过“锚固”完成对场所与文脉的再定义,通过“悬浮”对封闭内观所积聚的能量进行释放,转化为垂直向开放的城市公共空间,表现建筑及城市未来发展的无限可能性。展示中心项目在空间重构上希望探索的一个重点,是如何走进真实的自然和城市,作为地标性的规划展示体验场所和片区城市客厅,无疑希望建筑对周边环境有足够的开放性和公共性,而展示中心底部水平向采用了连续的混凝土实墙,看起来封闭内向,其实是用一种独特的方式重塑自然的边界、引导大家走向真实的自然。▽新与旧© 侯博文
情绪空间
展示中心外在形态上最显著的特质是连续的边界,悬浮的“飞碟”,以及场地、建筑、室内角角落落散落的“情绪空间”构件。这些空间构件打破了这座建筑纪念性特质的几何关系,是空间秩序建立过程中的意外,也是建筑从封闭性走向真实的自然的触媒。
▽情绪空间构件© azLa
这些矮墙、座凳、景框等空间构件像是建筑之外的建筑,精心营造的情绪场景能够激发建筑与环境、内和外、开敞与封闭之间的关联性,把建筑、自然、室外景观、内部空间、屋顶场所这些分散的部分集合在一起,因此形成“梦之源”、“梦之初”、“梦之门”、“梦之窗”、“梦舞台”等故事线完整的空间漫游叙事动线。▽入口景观© 侯博文
▽南立面局部© 侯博文
▽屋顶“梦舞台”© 侯博文
想象在冬季大雪天气,我们舒适地呆在温暖的房间内,不会想出去。无论玻璃窗有多大,我们看到的雪花和在明信片或屏幕上一样,是一种间接的经验,人和自然之间被一道无形的墙所隔离。当我们在建筑的某个角落,意外的看到这些座凳、景框被雪花覆盖,像可爱的雪人,可能会有走向户外“那就堆个雪人吧”的冲动,被“情绪空间”引导走进真实的自然、感受来自阳光、空气、微风和四季变幻的自然气息。▽东面局部© 杨泽宇
▽局部光影© 杨泽宇
功能与动线
太平河城市片区展示中心总建筑面积 5000 平方米,其中地上 4400 平方米,建筑底层是主要的功能区域,设置了前厅、序厅、展厅等主要对外展示空间,以及贵宾接待、会议、办公等辅助功能,四个内向封闭的体量围绕中心庭院布局,形成简明的环形参观体验流线。
▽南立面人视© 侯博文
▽景观场景© 侯博文
▽景观游园© 侯博文
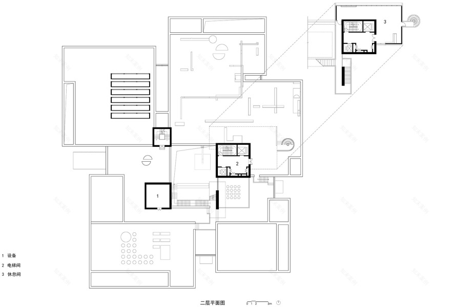
建筑二层东北角布置了小型图书咖啡吧,面对北侧的太平河完全开放,这里的大面积落地玻璃窗和底层封闭的建筑体量形成强烈的反差。建筑顶部为悬浮的飞碟型市民休憩观景平台,提供了在更大维度上亲近滨河自然环境,体验城市片区快速发展的仪式场所。展示中心 600 平方米的地下层布置变配电间及消防泵房等辅助设备用房。
▽面向太平河观景空间© 侯博文
作为对市民开放的城市公共场所,城市片区展示中心公众参观动线的主入口位于用地西侧城市主干道胜利大街。通过景墙和场地上“情绪空间”小品的引导,参观者在经历丰富的城市公共景观区域和建筑周边纯净的景观之后,穿过建筑主入口廊架,进入展示中心门厅。展示中心门厅正对面是中心庭院,庭院以水和细竹为对景。透过庭院上空观景平台上大大小小的洞口和室外楼梯的空隙,中心庭院空间简明光影丰富。▽主入口© 侯博文
▽主入口局部© 杨泽宇
▽中庭一角© 杨泽宇
参观者可以通过庭院的台阶和户外楼梯直接到达屋顶平台,也可以参观体验完整个规划展览动线后通过电梯直达。贵宾流线从建筑南侧入口进入,到达贵宾接待区域后,可选择体验整个参观流线或到达重点展示区域。▽屋顶游园© 侯博文
▽左:窄院;右:屋顶游园© 侯博文
展示中心的门厅通过两片圆弧形天窗和光带的引导连接中心庭院,同时,展览主动线从门厅左侧进入展厅前厅,门厅和展厅前厅的衔接采用了精心搭建的空间场景,供参观者休憩、漫游、拍照,这一“情绪空间”场景和前厅的类似场景通过彩色玻璃窗在视觉上连通,“房子外面是房子,房子里面也有房子”。▽概念草图© 小熊
▽门厅全景© azLa
▽门厅一角© 侯博文
前厅的屋顶采用了大面积北向风帆形天窗,均匀而富有节奏的自然光渲染了前厅的场景感及展厅入口的氛围,成为进入相对封闭的展览空间的前奏。展厅主要采用多媒体的方式介绍太平河城市片区的规划愿景,其中也包含有不少互动内容,吸引市民前来参观体验。参观完规划展览后,观众可乘坐电梯到达二层的图书咖啡室小憩,在此欣赏太平河滨河风光,继续向上到达屋顶观景平台,在空间起承转合中感受封闭与开放性相互交织所带来的丰富节奏。▽前厅全景© azLa
▽前厅一角© 侯博文
结构与材料
建筑底层展厅和辅助部分采用钢筋混凝土框架结构,顶部悬浮的观景平台为空间钢桁架结构,由三个核心筒以及一处剪力墙支撑。三个核心筒除了结构支撑的作用之外,分别布置有两部疏散楼梯和一处设备用房,剪力墙同时也是室外楼梯的支撑构件。
底层连续封闭的墙面采用清水混凝土,选择了长 800-1200mm、宽 150mm 的芬兰木作为现浇混凝土的模板。顶部观景平台外侧采用浅灰色 GRC 挂板饰面,工厂预制后现场安装。为了降低开模成本,GRC 挂板分缝设计在底部内侧按照洞口方向进行正交划分,外圈开模采用扇形划分。
▽屋顶楼梯© 侯博文
▽通向屋顶的室外楼梯局部© 杨泽宇
▽左:室外楼梯局部;右:屋顶一角;Left: stairs; Right: rooftop view© 杨泽宇
城市空间是一种被符号和象征意义所构建的环境© 杨泽宇
▽模型照片© azLa
▽总平面图© azLa
▽ 一层平面图© azLa
▽二层平面图© azLa
▽屋顶层平面图© azLa
▽立面图© azLa
▽剖面图© azLa
项目名称:石家庄太平河城市片区展示中心
项目业主:石家庄国控城市发展投资集团有限责任公司、石家庄城市建设发展集团有限公司
业主团队:郭飞、罗俊新、靳宪庄、姜海彬、马辉、谷峰、李悦、李建涛
设计单位:张·雷设计研究 azLa、南京长江都市建筑设计股份有限公司
设计时间:2021 年
建成时间:2022 年
项目地点:河北石家庄
主持建筑师:雷晓华、张雷
项目负责人:范新我、姜磊
设计团队:范新我,赵济宁,梁佳斌,余柳青青(建筑);杜月 车苏婧(室内);赵敏 刘志磊 连浩 姜志远(景观)
施工图团队:姜磊 陈艮林 殷文灿 李均 唐俊华 朱榴燕 姚永生 刘彩琴 张工作 谷加雷 邱月
基地面积:8400 平方米
建筑面积:5000 平方米
结构形式:钢筋混凝土框架结构,钢结构
摄影:侯博文、杨泽宇
客服
消息
收藏
下载
最近






























































