查看完整案例

收藏

下载
位于Karlsruhe的软件制造商的新办公大楼的设计理念遵循了透明软件工厂的原则。HENN的设计从建筑外观开始,并且持续运用到建筑的结构,内部组织和室内设计中。
The design idea behind the new office building for a software manufacturer based in Karlsruhe follows the principle of a transparent software factory. HENN’s design starts from the appearance of the façade and is consistently applied to the building structure, internal organization, and interior design.
▼项目概览,Overall view ©HGEsch
新建筑由三个相互连结的体量组成,体量之间微微错位来容纳宽敞的露台,一层北侧的悬挑天篷则强调了主入口。朝北面的玻璃立面微微倾斜,像扇子一样包裹着几何体量。这一细节使建筑增添了微妙的层次感,同时将外墙表面转化为吸引人的浮雕式结构。深色金属带在水平方向上分割了建筑体量。不透明和透明的元素营造出光影交错的效果。
The new building consists of three interlocking volumes that are slightly offset to include several spacious terraces and a cantilevered canopy that emphasizes the main entrance on the north side of the first floor. The large windows of the north-facing façade are slanted and wrap around the geometric volume like a fan. This detail lends a subtle depth to the building while transforming the façade surface into an intriguing relief-like structure. Dark metal bands divide the volumes in the horizontal direction. The opaque and transparent elements create an interplay of light and shadow.
▼玻璃立面微微倾斜,the north-facing façade are slanted©HGEsch
▼深色金属带,dark metal bands©HGEsch
在透明的软件工厂内部,开放透明的空间结构可以容纳多种办公室种类,将交流空间和需要专注工作的封闭空间组合起来。它们一起为工作人员和到访者提供了明亮,自由和多元化的办公环境。
Inside the Glazed Software Factory, open, transparent spatial structures allow for a variety of office typologies that combine areas for communication with enclosed spaces designed for focused work. They provide a bright, flexible, and varied working environment to employees and visitors alike.
▼裸露混凝土构成的墙面,exposed concrete wall©HGEsch
▼开放透明的空间结构,open, transparent spatial structures©HGEsch
地板,天花和墙面由裸露混凝土构成,而建筑设备都藏在地板下的空腔中。深色的窗框和玻璃,黑色办公家具和亮色的混凝土墙面形成对比,与外墙的深色金属建立联系。
Floors, ceilings, and walls largely consist of exposed concrete while building services are concealed in cavity floors. Dark window frames and glass cubes, as well as black office furniture, contrast with the bright concrete surfaces and establish a link to the dark metal aspect of the façade.
▼办公空间,office space©HGEsch
设计最大化的实现了空间的灵活性,建筑内部空间可以被划分为可以被租赁的小单元。宽敞透明的楼梯井和开放的连廊使使用者很容易在内部穿行,也在室内和室外创造了一系列多样化的视觉连结。
Designed for maximum flexibility, the building can be divided into smaller units that can be rented out if required. Spacious, transparent stairwells and open connecting bridges make it easy for users to find their way through the building while creating a wide variety of visual links both inwardly and outwardly.
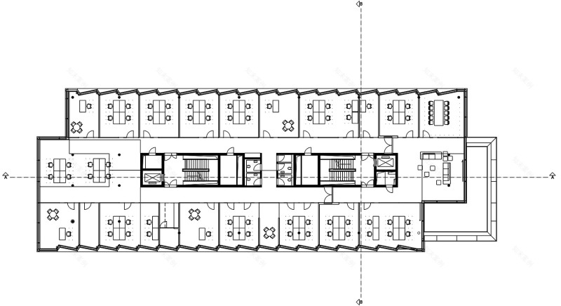
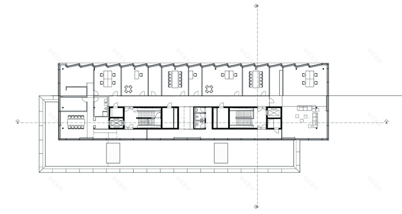
▼四层平面,fourth floor plan©HENN
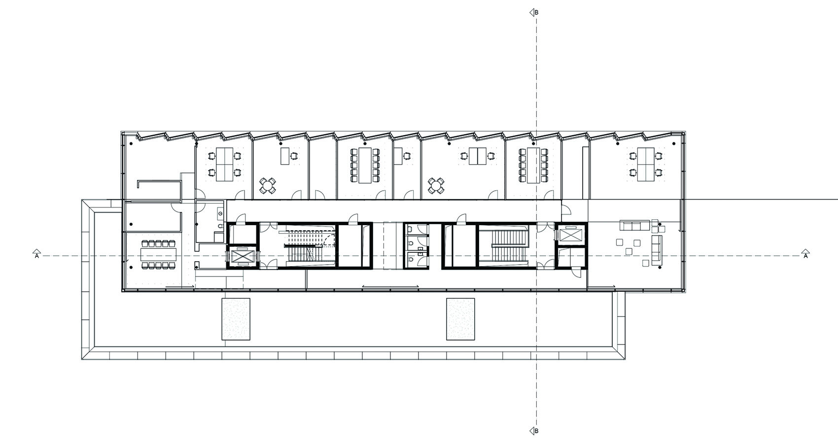
▼五层平面,fifth floor plan©HENN
Competition:2013, 1st prize
Construction start:2018
Completion:2020
Scope of work:LP1 to LP8 HOAI, general and object planning
Typology:New build
Client:STI Immobilienmanagement GmbH
Address:Brauerstraße 76135 Karlsruhe Germany
Site area:2,850 m²
Gross floor area:3,350 m²
Height x width x length:23 x 58 x 21 m
Floors:6 above ground, 1 below ground
Workstations:180
Program:Offices Meeting rooms
Sustainability certificate:DGNB Silber
Architecture:HENN
Project team
Partner: Christian Bechtle Project director: Dirk Bathelt, Benedikt Glampe, (Façade),Marc Teufel Giovanni Betti, Theresa Brandes, Dirk Breuer, Martin Erdinger, Ralph Hempel, Anne Henkel, Niels Henning, Attila Horvath, Paul Kappeler, Georg Pichler, Christian Rassmann, Anatolii Romanov, Michael Sadomskyj
Competition team
Partner: Fredrik Werner, Martin Henn, Katrin Jacobs, Alejandro Konrad
Consultants
Nowak Partner (Landscape architecture),
Elka Ing. – Gesellschaft für Tragwerksplanung (Structural engineer),
Reese Ingenieure (Building services),
PMI (Building physics), TÜV Süd (Fire protection), Ingenieurbüro – Planung – Blei (Façade),
Stageled GmbH (Lighting design)
客服
消息
收藏
下载
最近













