查看完整案例

收藏

下载
2022年11月,第14届中国金鹰电视艺术节在湖南长沙成功举办。首次投入使用的湖南广播电视台节目生产基地作为举办场所成为其中一道靓丽的风景线。该项目由HPP于2014年在国际竞赛中获胜,并在2016年6月开工建设,历时近7年正式落成。作为国内最大的演播室集群,湖南广播电视台节目生产基地不仅是马栏山视频文化创意产业园的龙头项目,更成为了湖南省的城市新地标。
一轴多心
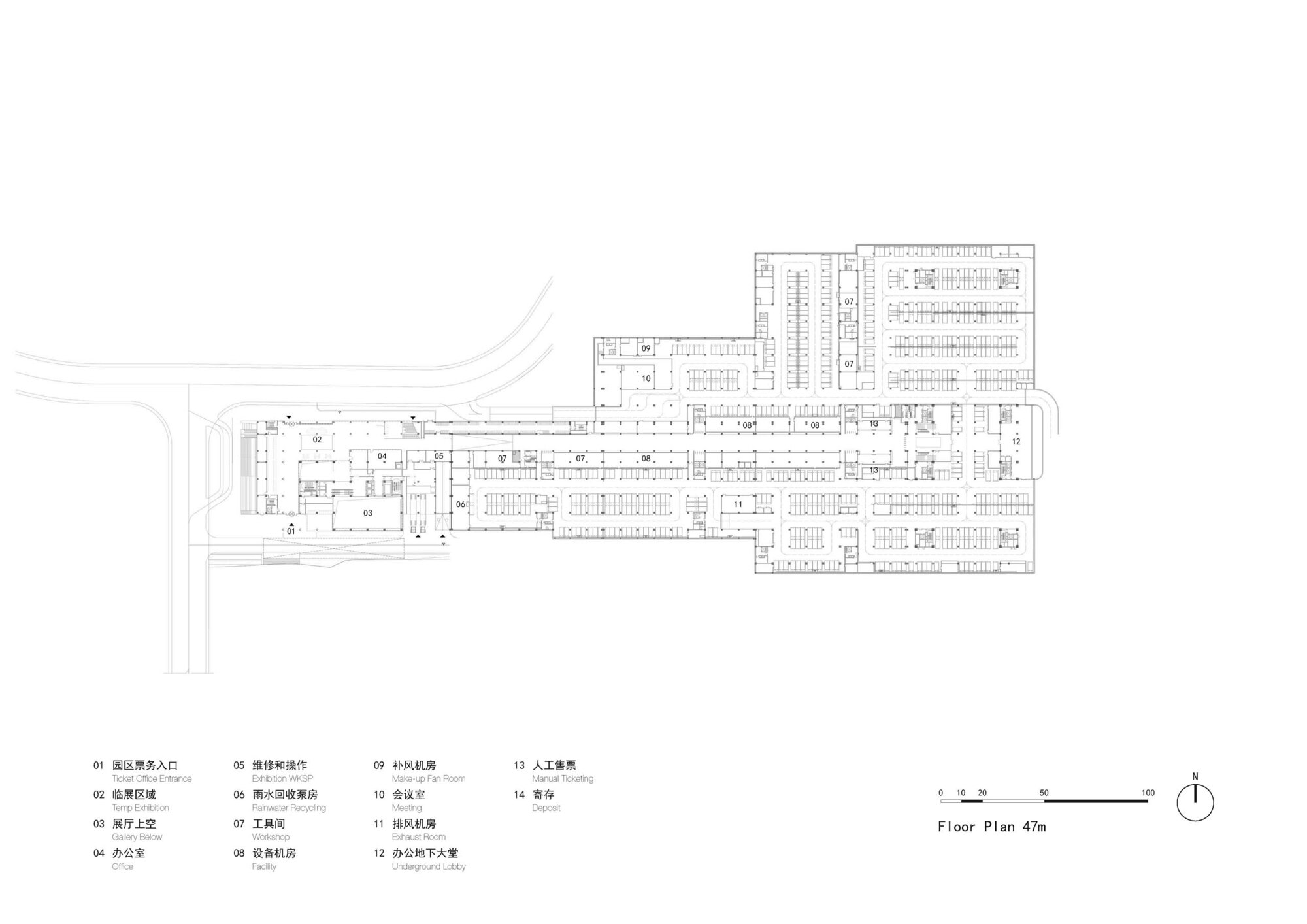
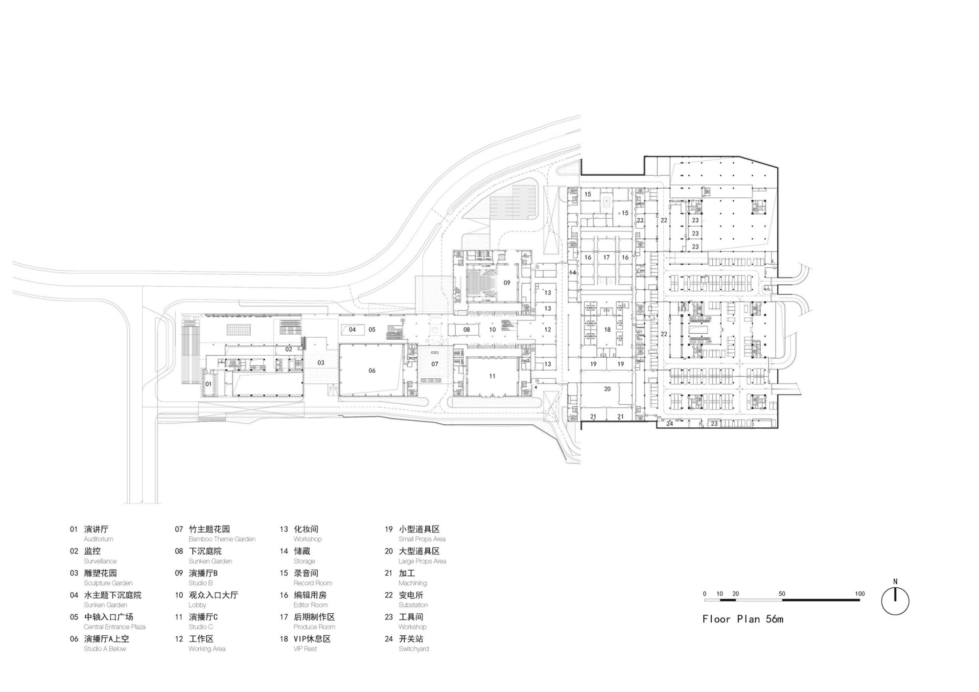
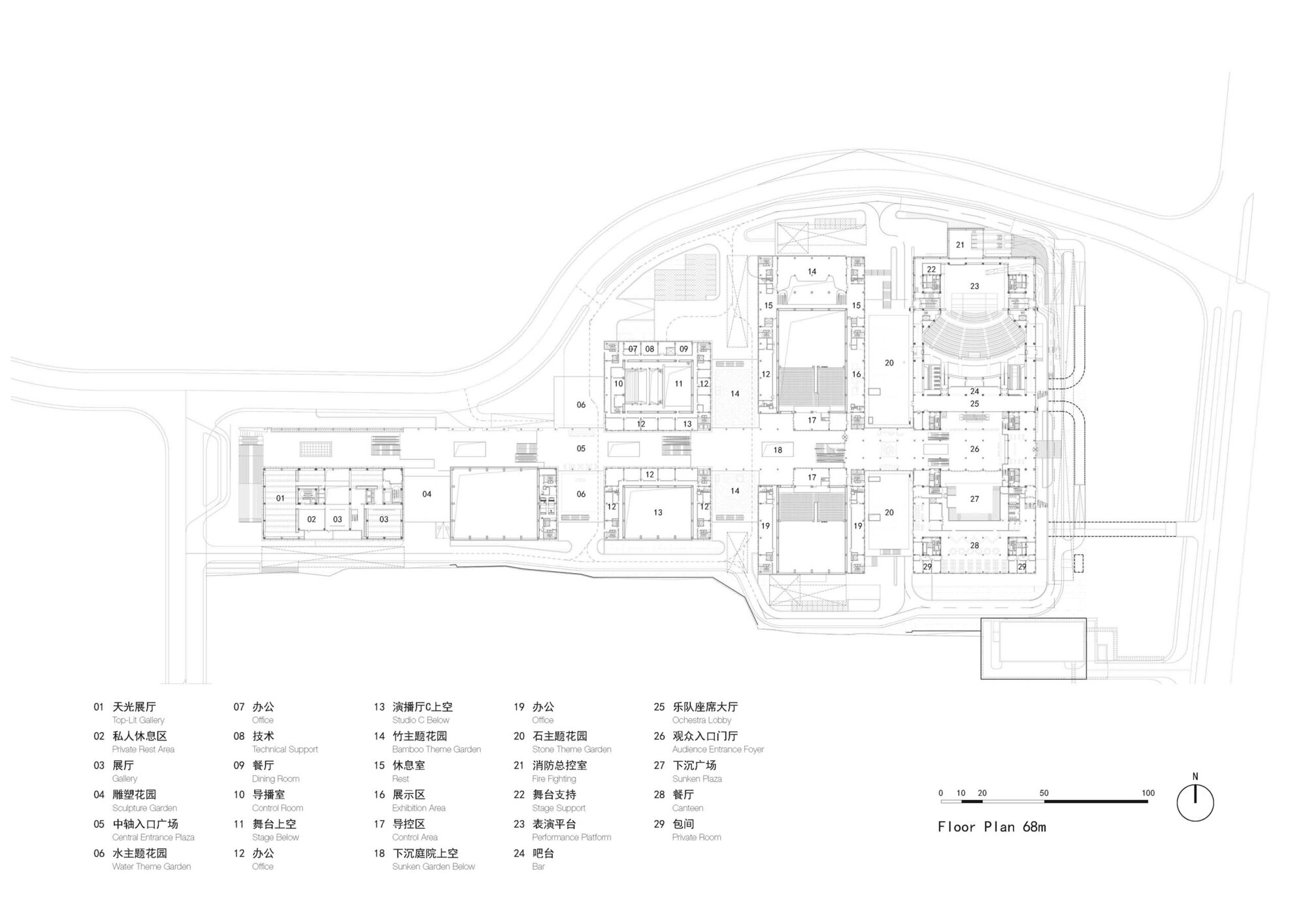
湖南广播电视台节目生产基地位于湖南国际会展中心东侧,世界之窗以南,总用地面积约120亩,总建筑面积约23万平方米,是一个集大型演艺活动、影视节目生产、艺术展览、创意工坊、观众参观等功能于一体的现代化“环球梦工厂”式的、非新闻类节目生产基地。项目基地呈东高西低走势,整体规划遵循地形,采用台阶状布局将场地切割成四个大台阶,并采用“一轴多心”的设计理念,以一条三维立体的主轴贯穿基地东西,所有演播厅及其它附属功能均沿中轴南北展开。基地的交通组织遵循着流线清晰合理,方便易达,互不干扰的原则,内部道路沿基地外围环绕布置,向内延伸穿插进相邻演播厅间的空隙,保证了功能高效运行。
建筑设计方案以“七彩盒子”为概念,在台阶状的地形上形成五排绚丽的芒果盒子,组成了目前国内最大的演播厅集群,其中位于东面顶端的盒子也是国内最大的剧院式演播厅,此外项目还包括一个剧场、一个美术馆、一个漂浮办公区,以及技术大楼、云数据中心等各类空间。七个盒子既可独立使用也可串联使用,形成了5+1+1>7的功能性演播厅矩阵。
星光大道
场地内的中央主轴也被称为星光大道,总长400米,南北宽20米,从西侧入口广场开始一直延伸至东侧的办公入口。作为连接不同演播厅的骨架,它是贯通整个节目生产基地的室外通廊,也是公共活动的主要场所。主轴空间整体被巨大屋顶覆盖。并借助南北两侧的演播厅外圈柱子作为支撑结构,为室外录制提供了完整的无柱空间,同时公众的视野和活动范围可以更加开阔。大屋顶的屋面采用了双层表皮,顶层采用透明玻璃,下层悬挂角度可调遮阳板,为公众的室外活动提供了良好的光线条件。
七彩盒子
作为整个建筑群的起点,第一个盒子是对外开放的多媒体艺术中心,这里将收藏和展览影像、绘画、雕塑等多种艺术品,为公众参观艺术展览提供了绝佳去处,同时也打造了该项目的门户形象,引导人们进入星光大道。紧跟着艺术中心的的五个盒子是演播厅空间群。湖南电视台王牌娱乐节目以及优质偶像剧将集中在这里录制拍摄。演播厅主体立面色彩取自湖南电视台的芒果logo,由明亮的黄色逐渐过渡到鲜艳的红色,彰显湖南广播电视台年轻充满活力的整体形象。
设计师在演播厅内部独创性的布局了广播电视工艺公众参观通道,参观者将在这里领略到国内最先进的电视节目制作全流程,最大化享受电视工业带来的震撼。室内的规划布局在实现对公众开放的同时规避了演播人员活动流线,达到了空间共享与功能高效运行共存的平衡。参观者沿着中央主轴拾阶而上,最终达到建筑最高点:山顶的露天广场和芒果电视体验馆。这里不仅是一个大型户外演出场地,更是芒果粉丝的狂欢之地,未来在这里公众可以参与各种室外活动,感受自由欢乐的氛围。
漂浮办公
节目制作中心的新办公区高悬在基地东侧最高处的芒果电视体验馆和下沉广场之上,其设计延续了竖向多层重叠的理念。巨大的环状办公空间利用八个核心筒支撑,仿佛皇冠漂浮在山顶,整个办公区离地挑高50米,工作人员可从宽敞的屋顶花园望见所有 “盒子” ,并360度领略基地周边的优美风景,同时巨大的悬空体量也成为了长沙东部门户形象的一部分。湖南广播电视台节目生产基地作为国内最先进的节目录制与生产场所,以开放、创新、包容的姿态打破传统隔绝观众与节目制作的厂区模式,并通过理性高效的建筑形态与强大的科技创新驱动,成为一个观众和演播人员之间互动的公共交流平台,年轻芒果造梦者们的灵感创意基地,和具有深远意义的国际文化地标。
建筑师: HPP
项目年份:2022
摄影师:AST Studio
主管合伙人:Jens Kump、余炜
设计团队:冯子鹏、薛燕、李天翔、崔皓、Myriam Hamdi、陈曦、陈俊成、Baldur Steimle、 Maria Kohl、王丹、杨柳、周君华、李孝姓、柯君清、Julianne Cassidy、Monon Bin Yunus、Sascha Gössinger、Julian Puchmüller、Karolina Maria Ozimek
委托方:湖南广播电视台
本地设计院:同济大学建筑设计研究院(集团)有限公司
项目城市:长沙
项目国家:中国
设计师:HPP
客服
消息
收藏
下载
最近

















































