查看完整案例

收藏

下载
自从疫情爆发以来,人们的工作方式已发生了巨大的变化。在日本,许多公司决定将办公室搬到大城市外,以寻求更健康的工作方式。
▽项目概览© Ikunori Yamamoto, Kei Kawakubo
the design labo受邀在淡路岛为客户设计新的办公室和自助餐厅。客户希望能够享受美丽的风景,并通过大窗户引入充足的阳光。在自助餐厅中,员工和居民可以同时享用当地美食。
▽屋顶鸟瞰© Ikunori Yamamoto, Kei Kawakubo
▽鸟瞰庭院© Ikunori Yamamoto, Kei Kawakubo
由于办公空间坐落于四周没有其他建筑的场地上,设计师必须思考一种以自然方式适应环境的结构,以顺应场地自然宁静的氛围。
▽入口立面© Ikunori Yamamoto, Kei Kawakubo
▽从庭院看建筑© Ikunori Yamamoto, Kei Kawakubo
▽庭院一侧的建筑立面© Ikunori Yamamoto, Kei Kawakubo
在日本神话传说中,淡路岛是由神创造的第一个岛屿。因此,团队从寺庙建筑中汲取灵感进行构思,在方案中布置了一系列优雅的拱门,并通过入口处的大楼梯呼应了“天堂之路”的隐喻。
▽室内开放空间© Ikunori Yamamoto, Kei Kawakubo
▽木材与玻璃制成的隔断© Ikunori Yamamoto, Kei Kawakubo
▽天花板彩绘© Ikunori Yamamoto, Kei Kawakubo
▽通高的餐厅空间© Ikunori Yamamoto, Kei Kawakubo
▽食物档口© Ikunori Yamamoto, Kei Kawakubo
▽用餐区© Ikunori Yamamoto, Kei Kawakubo
▽灯笼细部© Ikunori Yamamoto, Kei Kawakubo
设计旨在将自然的祝福融入安全舒适的工作环境,并与当地居民建立起联系。
▽夜景© Ikunori Yamamoto, Kei Kawakubo
▽夜间鸟瞰© Ikunori Yamamoto, Kei Kawakubo
▽通往屋顶的楼梯© Ikunori Yamamoto, Kei Kawakubo
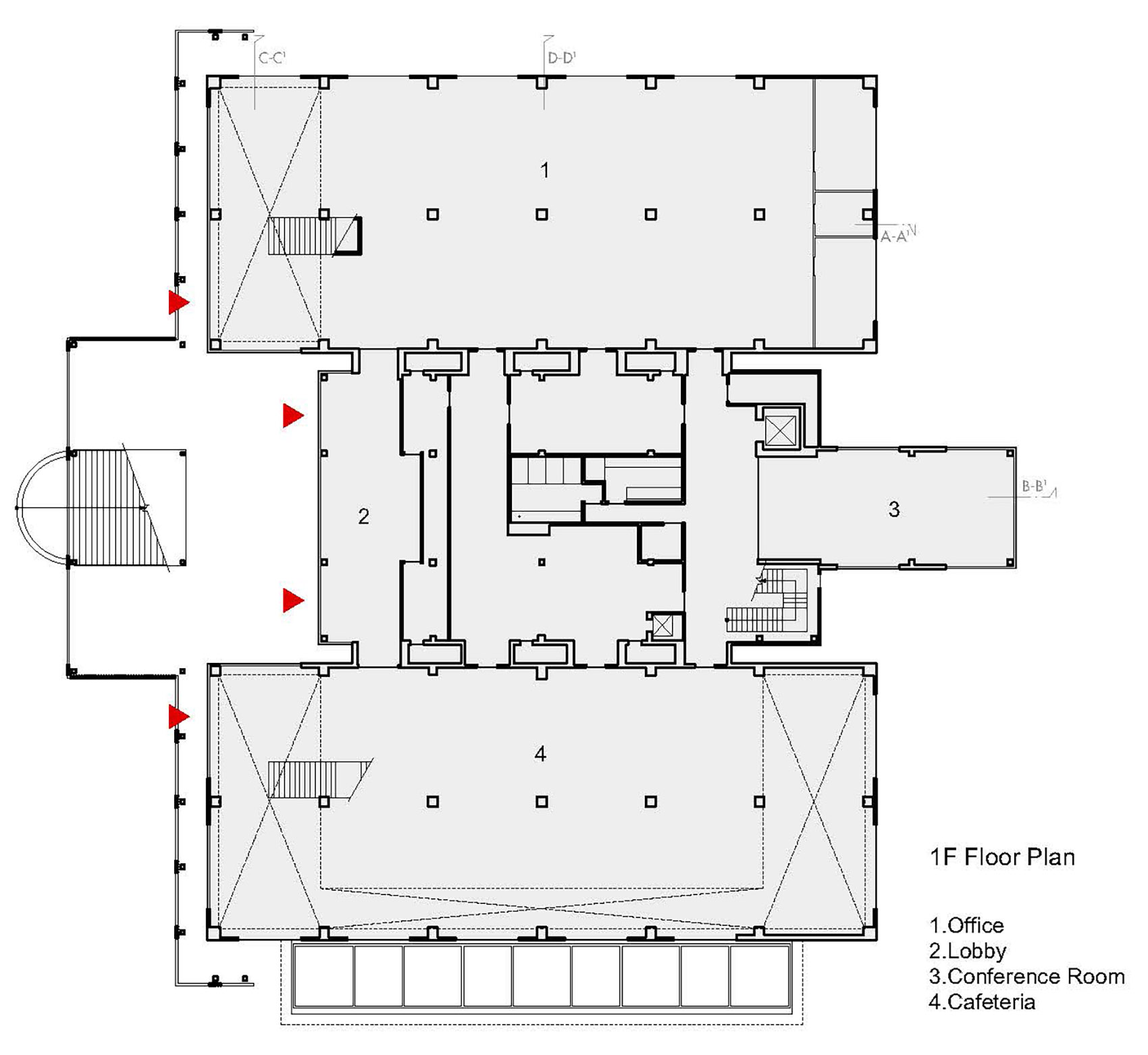
▽首层平面©the design labo inc.
▽二层平面©the design labo inc.
▽屋顶平面©the design labo inc.
▽立面图©the design labo inc.
▽剖面图©the design labo inc.
项目名称:Global Hub Square
项目设计:the design labo inc.
项目客户:Pasona Group, Inc.
项目摄影:Ikunori Yamamoto, Kei Kawakubo
客服
消息
收藏
下载
最近

































