查看完整案例

收藏

下载
混合用途建筑, 文化建筑, 商业建筑, Lyon, 法国
建筑设计:Jakob + Macfarlane Architects
面积:6300 .2501349m²
项目年份:2011
摄影师: Maria Gonzalez, Roland Halbe, Nicolás Borel
厂家:Axalta, Ecophon, Otis, RMIG, Soliver, Wicona
由VNF和CaissedesDépôts和Sem Lyon Confluence合作开发的旧港口区城市规划项目的目标是重新投资里昂的码头及其工业遗产,整合建筑、文化和商业项目。这些码头最初由仓库(laSucrière,les Douanes,les Salins,la Capitainerie)、起重机、与河水紧密相关的功能组成,后来演变成一块试验田,以创造一个朝向河流和群山的新景观。
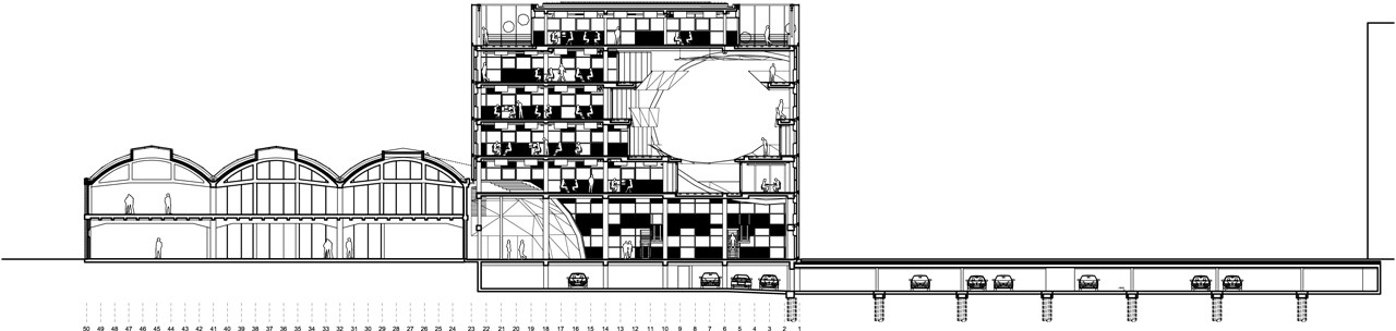
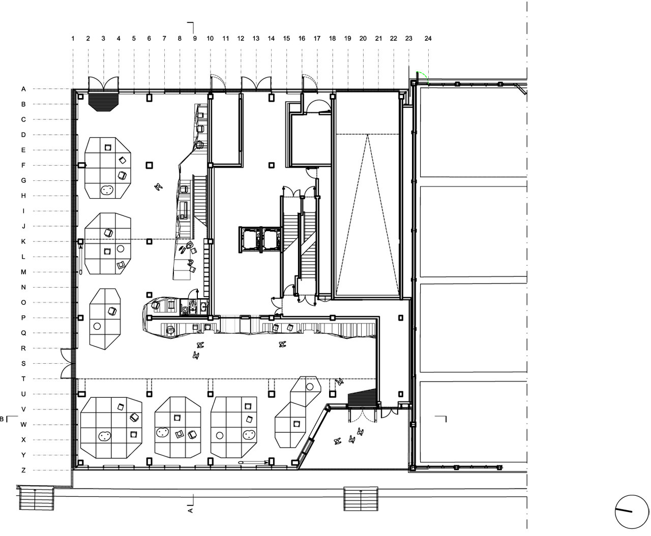
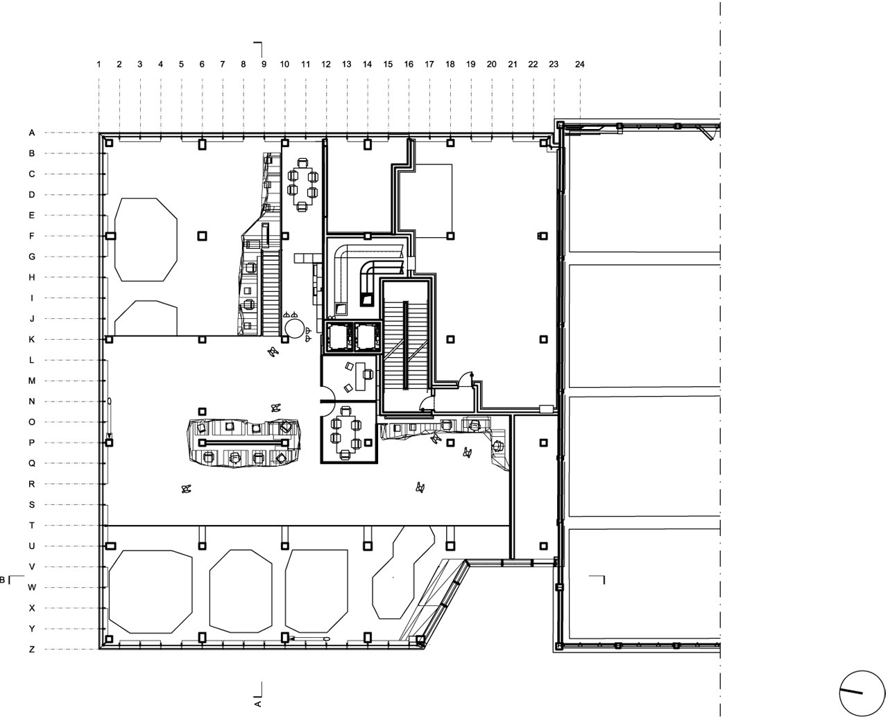
项目设计为一个简单的正交“立方体”,并掏空有一个巨大的洞,以适应光线、空气流动和景观的需求。这个洞形成一个空隙,从河边向内并向上穿过屋顶露台,穿透整个建筑。位于现有音乐厅旁边的“立方体”突出了其自身的特点。它是按常规框架(29 x 33m)设计的,由5层混凝土支柱制成。轻盈的立面上有看似随机的开口,随着河水水流的流动呈现像素化的图案。表皮选取橙色,代表着常用于港口区域的工业色:含铅涂料的颜色。
为了创建空隙,Jakob + MacFarlane创建了一系列体块处理,将主要体块减去三个“圆锥形”体块:分别位于立面的转角,屋顶和建筑入口。这些减去的部分会是这座办公功能建筑的空间之间、使用者之间、场所之间和光源之间的联系。第一个体块挖空的部分是基于大厅的拱形结构,其邻近程度和支撑形式的直接视觉关系。它连接了两个建筑元素,并创建了一个双层有覆盖的空间。
第二个椭圆形的高四层的挖空部分在面向河流一侧的立面拐角处破坏了杆梁结构的结构规则性。该穿孔由两条曲线构成,在建筑的一角建立了对角关系。体块的内部是一个巨大的中庭,周围是办公室平台的一系列走廊。立面朝内部转移,从内部到外部都建立了与光线和视野的新关系,与建筑物产生了动态的关系,该关系会根据观看者的位置和视角而改变其几何形状。
第三个体块构成是是由从位于每层的露台领略到不同的光线和视野构成的许多平台。每个平台都可通过阳台创建了美丽的景色,为相遇和非正式交流创造了空间。对平台透明性和最佳透光率的研究有助于使工作空间更加优雅和轻巧。顶层设有一个大露台,在这里可以欣赏里昂、富维耶山和里昂河水的全景。该项目是城市可持续发展的一部分,并遵循以下原则:
立面概念的优化兼顾热性能和观赏美景的视角:Ubat <0,7 W / m2 K;几乎所有办公室都有2%的日光系数;通过在水位上使用热泵进行热力补给生产,并用回收的高效热量回收的空气代替新鲜空气。该建筑与将来巨大的漂浮露台相连,与河岸/码头相连。
译者:涂匡仪
项目完工照片 | Finished Photos
设计师:Jakob + Macfarlane Architects
分类:混合用途建筑
语言:简体中文
客服
消息
收藏
下载
最近

































































































