查看完整案例

收藏

下载
Pharmacy, Kashan, Iran
设计师:Aleshtar Architectural Office
面积: 300 .2501349m²
年份:2020
摄影:Farshid Nasrabadi
负责建筑师:Hamed Moradi Aleshtar
设计团队:Sara Eskandary, Azaam Ghasemi
Client: Dr. Parvaneh Najafizadeh, DR. Ehsan Zare
工程师:Ali Kulivand, Saeed Jafari
合作者:Hosein Jahangiri, Milad Sotani, Alireza Khosravi, Ali Ahmadi
平面设计:Amin Mohammad Hoseini, Tanaz Moghtaderi
City:Kashan
Country:Iran
设计师描述 | Designer description:
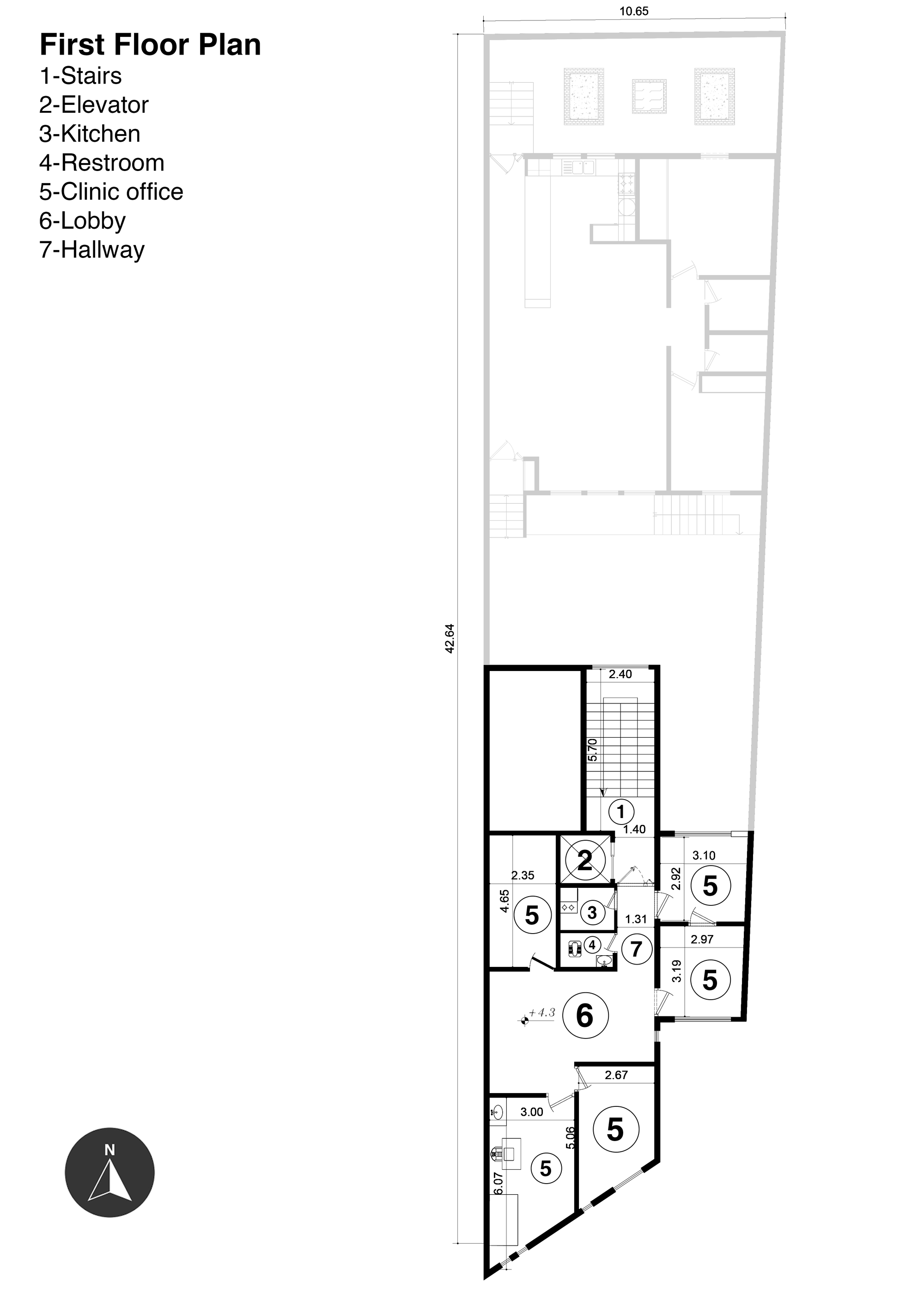
The design process started with the diagram and it was based on the staining of the requested spaces based on appropriate spatial relationships with emphasis on the architectural identity of the site bed and the climate of the region. There was an empty space in the center of the site to divide the space based on residential-private space from other general-use spaces; in addition, the making of an empty space had other achievements such as providing light to the north of the project and creating a private yard for the residential area.
In this diagram, the connection with the empty space was done by creating an alley from the eastern front of the site. Due to this connection and the need for medical spaces in one more floor, a part of the upper floor was placed on the alley in the form of a Sabat (awning).In the design stages, for the ways of lighting the spaces and selecting the materials, the climate of the region was taken into consideration and by creating frames inferred from the appearance of the windows of the site according to the climate of the region, direct lighting inside the spaces was prevented by the use of more modern materials. In addition, in using the material, an attempt was made to match the climate and architecture of the context, there was used a brick layout belonging to the present time, which is considered a more modern layout.
The implementation of the project and the completion of the space and the implementation of the facade stages were in progress and they were in the final stages, and now, Feb. 29, 2020 was the beginning of a widespread crisis. It was a shock to the humanity and everything has been affected by this shock! The site was one step away from the pandemic outbreak – the city of Qom- and a new experience of the impact of pandemics on the performance of spaces and thus became manipulation of spaces by users to stay safe from pandemics!
The shock of this pandemic and its impact on social behaviors created a new responsibility for designers based on these behaviors, and by accepting this new responsibility, we also changed the design of this pharmacy diagram and applied health protocols for social behaviors and take into account its impact on the architecture of this medical space, which was the critical point of virus transmission between clients and service providers.
This change, from converting the conventional linear diagram, the receipt of prescription to the delivery of the medication, to a network diagram affected by the shape of the windows on the south side of the street and the east side of the alley, by creating counters with the potential to observe social distance and cover these counters with glass, we tried to minimize the transmission of the virus to individuals. This change was made by observing the process of providing optimal services to clients based on the principles of pharmacy design and what was affected by the Covid-19 pandemic.
项目完工照片 | Finished Photos
设计师:Aleshtar Architectural Office
分类:Pharmacy
语言:英语
客服
消息
收藏
下载
最近





















