查看完整案例

收藏

下载
GORAYIVKA VILLAGE
REHABILITATION COMPLEX CONCEPT
location: Kamianets-Podilskyi district, Khmelnitsky region, Ukraine
function: country rehabilitation and recreation complex
area: 5750 m2
status: preliminary design (2023)
architect / visualization: Evgeniy Kolesnikov
partners: CCG Development
休闲康复中心坐落在德涅斯特河的高岸上。 该复杂地块位于戈拉耶夫卡村的南侧,呈矩形,向河流倾斜 30 度。 在东部,地块较为温和,为体育和儿童游乐场的布置提供了机会。所采用的风格和结构解决方案的一个关键要素是倾斜的屋顶,与地形的自然轮廓相协调。
与保护区内场地位置相关的一系列约束使设计任务变得复杂。 现场不允许建造大型基础结构; 只允许使用轻型结构。 这就是为什么我们设计了整个综合体,其基础由轻质结构系统组成,在视觉上增加了整体结构的复杂性,同时促进了各种主题区块的建造。
唯一的基础建筑影响了建筑群的内部街道,它是主轴线之一。 由于动态的地形,街道被设计成不对称的转变,使游客在建筑群内的行人活动稍微复杂化和多样化。 从内部看,该建筑群就像一个植物园,可以欣赏到德涅斯特河的壮丽全景。
建筑群的内部空间围绕着游泳池和露台。 它周围环绕着长廊画廊和公共建筑,并向自然景观开放。 餐厅的阳台和露台以及多功能厅均面向其,而住宅建筑则形成了建筑群的南立面。 综合体的直接北立面将综合体区域与定居点区域屏蔽开来。 通过它,创造了一条宽阔的通道,旨在达到展现私密区域和美丽景观的效果。
周围建筑形态
康复综合体项目相当多样化。 我们把这个综合体分成了几个街区。 在基地的底部,有住宅区,可以欣赏德涅斯特河的壮丽景色。 住宅区系统被设计为一个小社区,有一个舒适的庭院,内有花园和游泳池,还有适合较大团体的独立两层平房。 四分之一住宅区提供适合 1、2、3、4 和 5 名访客的房间布局,为参观康复中心的各种规模的团体提供了灵活性。
一个独立的大型康复和娱乐区位于场地顶部,还可以欣赏德涅斯特河的壮丽景色。 该街区包括所有必要的医疗和娱乐设施,供需要在综合体进行康复课程的游客使用。
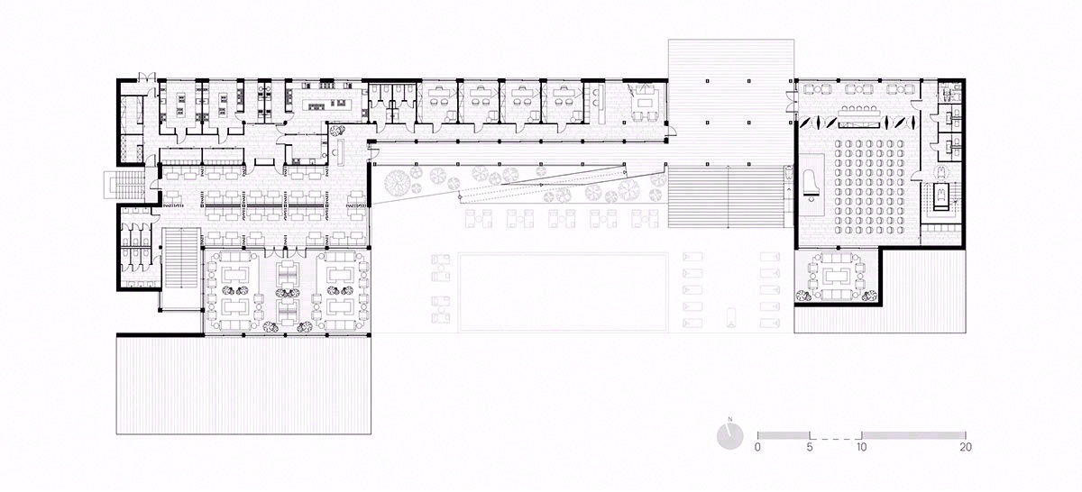
总体规划
1 - 行政区 6 - 两层住宅 2 - 公共餐厅区 7 - 残疾人住房
3 - 环球馆 8 - 运动区
4 - 1 号住宅区 9 - 儿童区
5 - 2 号住宅区 10 - 带烧烤区的凉亭
• 康复和娱乐区•
修复块沿着活动斜坡呈梯田状,屋顶倾斜角与缓坡角相匹配。 该设计将复杂的风格与周围的原始自然完美融合。 康复区的每一层都容纳了一系列逻辑功能,游客可以依次体验这些功能,类似于在画廊中导航。 整个街区由一个开放式画廊连接,游客可以在那里欣赏绿色斜坡和德涅斯特河的壮丽景色。
整个康复区和整个综合体一样,都是为行动不便的人设计的。 对于这群游客,主露台层和游泳池旁设计了独立的平房。 这极大地简化了行动不便的人在整个建筑群中的行动,从而可以不受阻碍地使用医疗和康复设施。
3rd floor plan
建筑群的主入口在坚固的立面上突出显示,当游客穿过它时,他们立即会看到绿色斜坡和德涅斯特河的壮丽景色。 在大楼的入口区楼层,有一个宽敞的大堂,设有信息台接待处和等候区。 建筑群的左侧有一个独立的区块,内有一个多功能大厅,可用于举办各种活动,从讲座、培训课程到宴会和婚礼。 右侧是公共餐饮区,设有100个座位的餐厅和大型开放露台。
2nd floor plan
二楼设有一套医疗和康复设施,从按摩和诊断室到游泳池和单独的瑜伽课程区域。 整个楼层由一个大而宽敞的开放露台连接,作为步行大道。 这个露台吸引了复杂游客的注意力,并计划成为社交、会议和放松的主要聚集场所。
该楼层还设有一个大型酒吧,既可作为厨房酒吧,又可作为泳池酒吧。
1st floor plan
下层设有运动和休闲区,包括健身房和水疗中心。 体育中心靠近公共餐饮区和带游泳池的开放露台,为行动不便的游客提供便利。 与所有其他街区一样,体育街区设有一个大露台,可欣赏德涅斯特河和绿色斜坡景观的壮丽景色。
section 1-1
section 2-2
section 3-3
section 4-4
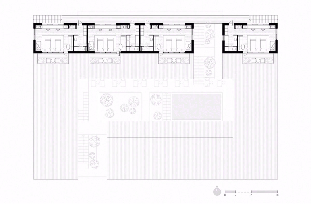
• 住宅区•
该住宅区由一个小社区组成,内部有私密空间,设有带休闲区和游泳池的花园。 每个单元的景观都具有最大程度的私密性,向下延伸至德涅斯特河和绿色斜坡。 住宅区内的单位布局多样,方便容纳不同群体的游客。 房间布局专为 1 名访客、2 名访客、3 名访客、4 名访客和 5 名带儿童的访客而设计。 此外,每个住宅区还可以设置一个小酒吧,既作为居住区的厨房酒吧,又作为泳池酒吧。
1st floor plan
2nd floor plan
3rd floor plan
4th floor plan
5th floor plan
从建筑群到德涅斯特河的通道计划使用类似的轻型结构建造,并在梯田中逐渐下降到水线。 沿着德涅斯特河岸,将设计一条木制长廊,供夜间散步,还有一个小码头,设有停泊船只和游艇的码头。
餐厅主厨房附近设有一个带烧烤区的独立凉亭。 在这里,就像在餐厅一样,游客可以直接到户外凉亭点餐。 带有观景台的主凉亭位于建筑群入口附近,强调游客对自然和德涅斯特河的看法。
作者:原文作者
图片@原文作者
语言:英语
客服
消息
收藏
下载
最近






























