查看完整案例

收藏

下载
项目背景
项目位于重庆市涪陵区马鞍、李渡、义和三个街道交汇处的慧谷湖科创小镇。慧谷湖科创小镇是涪陵区科技创新体系中的重要一环,其总体定位为“山水慧谷、科创小镇”,产业定位聚焦于绿色低碳、生命健康、智能科技,未来这里将成为涪陵经济发展、产业升级、产业创新的集聚地。
▽视频© PrismImage
▽建筑与环境的整体关系© PrismImage
慧谷湖科创小镇白鹭湾示范区,利用三栋既有废弃建筑进行改造或重建,旨在为科创人员办公、会议、休闲提供场所,同时为市民、游客提供规划展示及休闲配套服务等功能。此外,慧谷湖科创小镇的首开区正在规划设计集会展、办公、教育为一体,产学研相融合的科创办公集群。白鹭湾示范区与未来的首开区项目隔湖相望。▽示范区夜景© PrismImage
解读 | 环山抱水的自然本底
慧谷湖(原名水磨滩水库)位于涪陵西北部,距中心城区约五十公里,向北是延绵不绝的黄草山脉,向南是水系众多的义和村落。其拥有原始且生态的自然景观:远山翠绿绵延,湖面泛起波澜,林海轻舞生姿,每一个自然元素都恰到好处。深入慧谷湖内部,设计场地地形随山势向湖面跌落,湖岸呈三叉分支指向湖心。
▽游船、树林、屋顶相得益彰© PrismImage
▽建筑半隐半显于山林© PrismImage
在这景观视野极佳的自然生态环境之中© PrismImage
研判 | 优劣并存的原生建筑
在山林湖泊景观不断变换之间,人工痕迹明显的原生场地显露于此:三处未完工呈现烂尾状态的建筑,不加修饰地立在湖岸,与环境格格不入。设计团队根据建筑离湖的距离,从近到远依次将其命名为 1、2、3 号楼。
▽场地原状© PrismImage
▽场地现状:由湖岸到山边依次为 1、2、3 号楼© PrismImage
1 号楼原有的四坡屋顶使得整体形态显得呆板,立面造型也缺乏层次,但其为框架结构,整体质量较好,因此采取保留原有结构进行加固处理并依托主体结构进行改造更新的策略。为打破呆板的建筑形式,塑造立面层次,弱化建筑体量,置入了相互错落的木制坡屋顶;增设了入口雨篷;临湖两侧嵌入了楼梯和亲水平台。改造后,一层作为展厅展示慧谷湖科创小镇的规划和发展概况,二层主要用作会议办公。▽回应自然的弹性边界和室外路径© PrismImage
▽多层级的漫步体系© PrismImage
2 号楼为砖混结构,房间开间小,层数较多且体量庞大,环境融入度差,既不利于改造,也无法满足功能使用要求。经过综合效益价值评判,结合慧谷湖科创小镇的规划愿景,团队决定采取原址重建的策略,以开放共享的公共空间和智慧传教的新功能回应场地环境与科创背景。▽2 号楼的折形屋面© PrismImage
新建建筑为一个三层的体量,咖啡厅局部高起,坡屋顶得以脱离断开,形成退台效果顺应山势,折叠的屋顶让建筑保持一种上扬的姿态,底层做了凹入处理,整个建筑既隐于山林,又显露于山林。
一层作为咖啡厅使用,利用高差分别在负一、负二层安排会议、食堂等功能。
▽从湖对岸看 3 栋建筑© PrismImage
3 号楼为砖混结构,现状保存完好且立面节奏协调。因此采用最小的介入手段:为原有立面附上材质。凹入部分采用了较深的颜色,以更好地塑造建筑的立体感。改造后将作为办公楼使用。▽3 号楼的形体节奏和立面处理© PrismImage
边界| 回应自然的关键线索
无论是建筑摄影表现出的“氛围感”,还是北宋画家郭熙对山水画中“高”与“远”的经营:“山欲高,尽画出则不高,烟霞锁其腰,则高矣。水欲远,尽出之则不远,掩映断其脉,则远矣。”都是在形容与环境动态或静态的关系。自然中的物体无法脱离周遭事物而单独出现,一切美的前提皆是基于关系的存在。在山水俱佳的自然环境中进行建筑实践时,有两组关系需要重点考虑,一是建筑的内外关系,二是建筑与自然的关系。而边界恰好可以阐述这两种关系。
▽建筑的柔性边界© PrismImage
▽晨曦下的远山、湖岸和游船© PrismImage
对于 1 号楼的改造©PrismImage
为更好地契合地形、融于自然,2 号楼采用了化整为零的策略:一层咖啡厅局部高起,屋顶随地势跌落,一分为二,纳入更多景观视线的同时带来更轻灵的建筑形态;一层和负一层的交界处被高侧窗和悬挑平台打断,形成视觉上的脱离;建筑底层内凹处理,一方面回应传统民居,另一方面达到消解体量的目的。建筑因此拥有更多阴翳,更加透气。▽鸟瞰场地:两栋指向湖心© PrismImage
团队认为,在如此优渥的自然环境面前,限定的景观更有价值。因此立面处理并未全部采用玻璃窗,而是有所克制:负二层会客厅的方窗、负一层报告厅的镂空墙体与高侧条窗、一层的大面积玻璃窗,营造虚实关系的同时,每个窗口都作为独特的取景器,带来多样化的框景效果。此外,将观景平台和交通楼梯安排在建筑外侧,创造更多与自然对话的空间。
▽多样化的立面处理带来不同的框景效果© PrismImage
▽建筑生长在坡地之上© PrismImage
路径 | 梳山理水的空间内核
北宋画家郭熙在《山水训》篇中谈及山水的品级,“可行,可望,可游,可居者,皆是妙品”。“行、望、游、居”简单理解就是有路可走,有景可望,有地方可以休息,并且三者形成一个体系。将其分解来看,2 号楼的夹层楼梯、环一层而绕的廊道、交错而立的外部楼梯,是为“行”;屋顶缝隙之间的露台、端部放大与逐级而设的平台,是为“望”;夹层的休息厅、一层的咖啡厅、负二层的接待室都有对景的休息空间,是为“居”;山水等各种自然要素与人的动态行为形成一个有机整体,展现为一段完整的景观序列,是为“游”。由此,居者得以凭栏远望、抚琴对饮,游者得以微风拂面、婉转幽径。
▽交错、叠合的室外路径© PrismImage
▽多维的楼梯与平台绕竹而设© PrismImage
中国古代传统画论通过“行望游居”来实现深远的空间意境,这与柯布的“建筑漫步”理论不谋而合。沿着场地地势,梳理标高变化,构建漫步空间:2 号楼一层平接道路,进入咖啡厅,视线定格在远山和湖面形成的框景上;从一层通高处上到夹层休息空间,窗户将山、水和一层坡屋顶同时纳入视野;环一层而绕的廊道端部放大,成为了观景视野最佳的地方,在这里能够看到场地全貌;负一层报告厅入口处内凹,室内外过度更加自然;逐级跌落的平台共同串联起外部观览路径,几方竹子塑造了内部的风景。自然与建筑在行进中被欣赏,移步换位之间,显隐、内外、明暗不断交织,营造出一个有机复合、多层级的漫步体系。▽2 号楼主入口视角© PrismImage
▽楼梯转换处的风景© PrismImage
▽建筑边界处的风景© PrismImage
为增加 1 号楼的空间层次和景观层次,在入口处设置了雨篷,树木从中长出来,与二层平台的灰空间形成对景。从室外楼梯到达二层平台,远望是屋顶、湖面、远山连成一片,回望是由屋架形成的山、林、木框景。临湖一侧的屋顶特意做得矮了些,使得视线能够跃过屋顶,到达远处的景观。建筑一层内外两条流线组织分明,在临湖一角交汇,这里的大面积角窗能够最大程度容纳自然景观。▽1 号楼入口雨篷与二层灰空间© PrismImage
▽1 号楼半室外空间© PrismImage
细节 | 整体到局部的有机统一
自然面前,团队希望其“隐”一点,但作为公共服务设施,团队又希望其有一些标识性,“显”一点。1 号楼屋顶交错,界面腾退,消解原有形态,是隐;主体色调深浅对比,吸引人群,是显。2 号楼屋顶断开、底层凹入、界面渗透,是隐;屋面折断,虚实对比,是显。所以,整个设计过程其实是在“显”和“隐”之间寻求一种微妙的平衡。
▽2 号楼室内屋顶转折处细部© PrismImage
在材料的选择上© PrismImage
▽浅色镂空砖墙体© PrismImage
▽楼梯细部© PrismImage
▽3 号楼入口处加建电梯© PrismImage
▽夜幕下的咖啡厅似原野中的灯塔© PrismImage
▽建筑的掩映关系© PrismImage
希冀 | 身体和精神的双重诉求
在整个场地环境中,景观团队始终坚持低干预的原则,没有进行大规模的改动,而是根据现状进行微调和优化:对原有硬质场地进行生态修复,改造近岸的植物配比,依据场地的自然驳岸,规划了绕湖步道,提升场地的景观品质和生态属性。
设计伊始,团队将目光聚焦于在有限的场所尽可能多地制造空间体验、与自然产生更多对话上。界面的操作辅以路径的组织使得内外相互转化,空间得以延伸,建筑真正“内可观景,外为景观”。回应气候与环境的形式转译也让传统和现代在这片场地之间回响。
▽景观设计:绕湖步道、生态草地、丰富的植物配比© PrismImage
慧谷湖科创小镇示范区提供了咖啡厅、办公、展厅等基础服务功能,然而设计团队更期望的是其能够超越这些基本功能设施,成为引发人们与自然产生共鸣的地方,人们在其中漫步、休憩、欣赏湖景,重新建立都市生活中人与自然的链接。这里的每一次驻足凝望,都能够捕捉风景,放大身心感受。希望人们能够从繁忙的工作中抽出身来,在这个与自然交融的环境中,找到内心的宁静和平衡,感受水的流动与变化,洞察湖光的变幻和远山的静谧,实现“梦栖诗画里,心泊山水间”的生活理想。
▽2 号楼沿湖路入口© PrismImage
▽1 号楼一层平面图© 悦集建筑
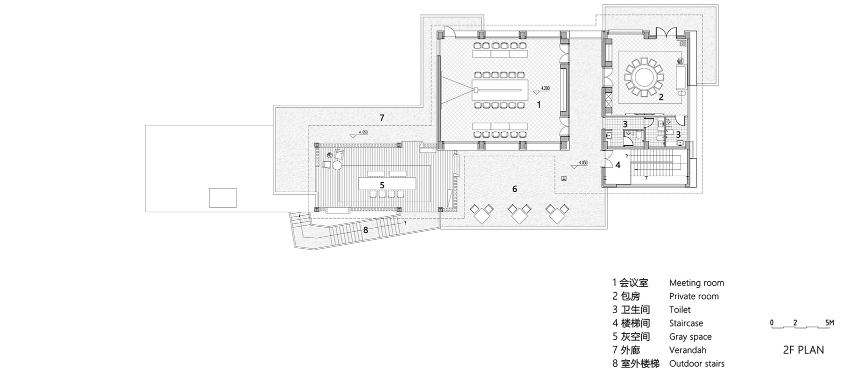
▽1 号楼二层平面图© 悦集建筑
▽1 号楼西立面图© 悦集建筑
▽1 号楼轴测图© 悦集建筑
▽1 号楼轴测爆炸图© 悦集建筑
▽2 号楼一层平面图© 悦集建筑
▽2 号楼二层平面图© 悦集建筑
▽2 号楼负一层平面图© 悦集建筑
▽2 号楼负二层平面图© 悦集建筑
▽2 号楼剖面图© 悦集建筑
▽2 号楼北立面图© 悦集建筑
▽2 号楼轴测爆炸图© 悦集建筑
▽2 号楼轴测图© 悦集建筑
项目名称:涪陵慧谷湖科创小镇白鹭湾示范区
项目类型:既有建筑改造与更新
项目地址:重庆涪陵区慧谷湖
主要材料:铝镁锰板、瓷态板、钢、木纹铝板、质感涂料、碳纤维(结构加固)
建筑面积:1700.2501349㎡(1 号楼 900.2501349㎡、2 号楼 800.2501349㎡)
设计时间:2021.09-2022.03
完成年份:2022.12
建筑设计:重庆悦集建筑设计事务所
施工图单位:重庆何方城市规划设计有限公司
主创设计:田琦、何飙、李骏
设计团队:王杜龙、揭定桥、郭剑、李凯锐、但承虎、刘贤哲、郭超、杨会强、王立伟、姜鹏(结构)、王月冬(水)、吴猛(暖)、陈卫(电)、翁钰展(实习)
业主方:重庆涪陵慧谷科创产业发展有限公司
建设单位:重庆市涪陵交通旅游建设投资集团有限公司
施工单位:重庆市涪陵区宏伟公路工程有限公司
摄影版权:PrismImage
客服
消息
收藏
下载
最近




















































