查看完整案例

收藏

下载
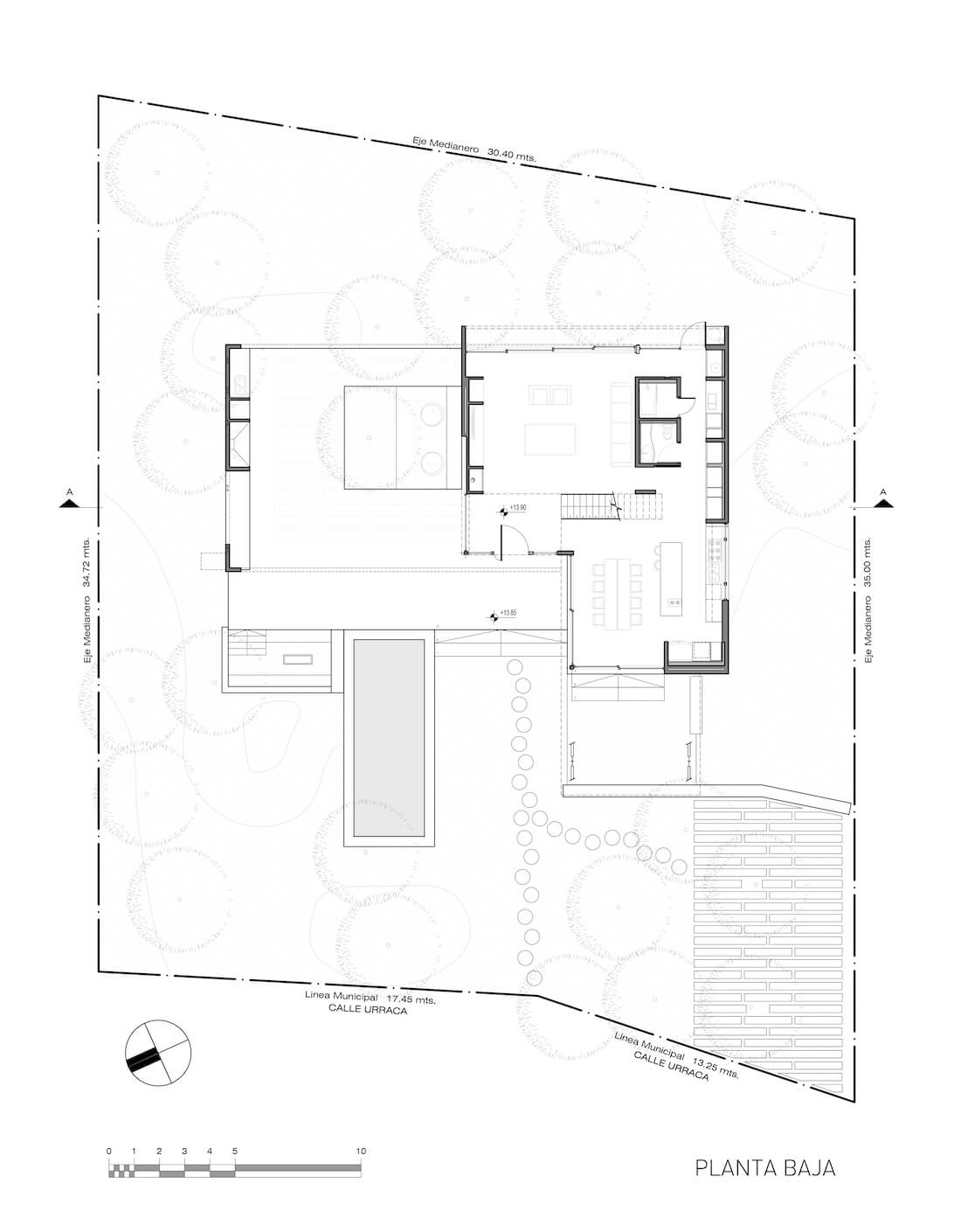
Estudio Galera:Kairos 住宅坐落在皮纳马尔县最南端,位于一个由四个街区组成的新小型城市化区域,周围环绕着森林,仅通过一条林荫大道与城市相连。大面积的地块和严格的建筑规范确保了人类存在与当地动植物之间的平衡。当 Kairos 被委托时,该工作室已经在该地区建造了一些住宅,例如其邻近的 Jaima 住宅。朝北和朝西的休闲空间是两座住宅之间的第一个接触点,它们有着相似的印记,因为使用了相同的材料、承包商、方法和用品。
屋顶的倾斜度与 Jaima 的相似,但不是格子板,而是由大三角形墙壁制成的“混凝土楔子”覆盖房屋。烧烤区由横跨露台的细长横梁支撑,扩大了房屋的视觉面积,并赋予该区域规模,使其成为“房屋的心脏”,“聚会场所”,高于专门为此目的设计的其他空间。直射阳光只在中午洒在露台上,横梁形成阴影游戏,在一天的其余时间保护空间。在这里,现有的松树被保留下来,在它的中心形成一个“天然岛”:一个阴凉、新鲜空气冷却的空间,供人逗留,也有助于冷却房屋内部,而无需额外的强制通风系统。
干净的底层似乎扩大了凉亭包围的自由空间。在上层,休息区向前扩展,作为瞭望台,靠近附近的森林。在地块层面,室外空间被设计成一个平台,可供休息和沉思,被自然环境穿透。混凝土凉亭具有明确的直线,在一天中产生不断变化的阴影和光线图案,而位于中心的松树成为整体中唯一的垂直元素。Kairos House 可能被认为是一种“观察装置”:一个观察邻近建筑和景观的地方,同时也是其中的一部分。
项目名称:Kairos House
建筑公司:Estudio Galera
项目地点:Pinamar, Argentina
项目摄影:Diego Medina
主笔建筑师:
设计团队:Ariel Galera, Cesar Amarante, Francisco Villamil, Luisina Noya, Micol Rodriguez
项目合作:Soledad Van Schaik, Juan Cruz Ance, Facundo Casales. Project supervisor: Pablo Ahumada. Administration management: Verónica Coleman. Translation and text editing: Soledad Pereyra
完成年份:2024
土木工程:Surveyor: Ariel Triana
结构工程:Javier Mendía
Environmental & MEP:Electricity: Gabriel Jaimón; Sanitation: Christian Carrizo; Ducts and sheet metal: Rubén Calvo; Custom metal working: Marcelo Herrero.
项目建造:Audine Constructora
主要材料:Concrete, Wood, Glass
业主甲方:Private
项目状态:Built
项目类型:Residential › House
客服
消息
收藏
下载
最近





























