查看完整案例

收藏

下载

翻译
MODERN LIFESTYLE IN NATURE!!
A residence designed and presented by our team at RAXA STUDIO, exploring and highlighting the possibility of living in tune with nature without compromising modern life needs.
We used recyclable materials and ensured that the building merges with its environment in color and design approach.
We used solar energy to fulfill the residence's power needs to a large extent.We used a biological pool that cleans itself using microorganisms, with a separate clean area for swimming.
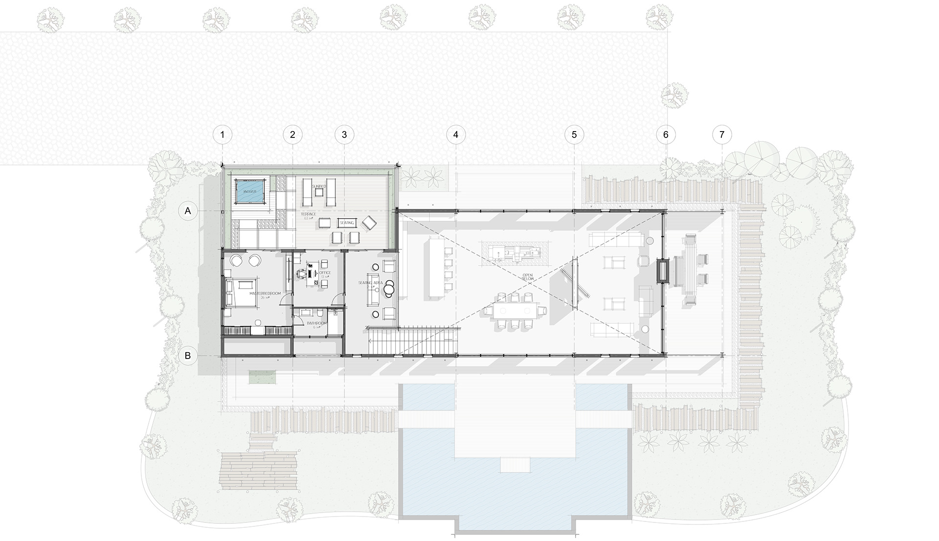
In the plans, we also highlighted the benefits of an open-space design approach to evoke a sense of vastness and excellence.
The landscape design was a blend of natural and modern elements that evoke feelings of exclusivity and excellence as well.
I intended to share all these details about the project to be helpful and insightful for architects, students, and landowners to better shape their minds on how a residence could look and on their design approach to be more in tune with nature. Additionally, it aims to set an example of a lifestyle that can be accessible to individuals in the modern world who seek the ease of what modern life has to offer but prefer to be away from crowded cities.
Credits:Idea, Concept, and Design Development: Arch. Ahmet Aksoy
Plans, 3D Modeling of the Residence, and Design Development: Arch. Bassel Mzayek
3D rendering: Arch. Ahmet Aksoy
3D Modeling of the environment and visualization assistant: Arch. Ahmad Abosaleh
We all contributed to every stage of the project, but the roles mentioned above represent our primary responsibilities.
客服
消息
收藏
下载
最近















