查看完整案例

收藏

下载
V. COAST THREEarchitectural project by ZROBIM architects
| ARCHITECTS: Evgeniy Zvarich, Mark Hurda, Vadim Avdeiko| EXTERIOR VISUALISATION: Vadim Avdeiko
| LOCATION: Russia | AREA: 173 sq.m.| YEAR: 2023 ABOUT | CONCEPT | ARCHITECTURE
ABOUT
One of the typical houses of a large village called "Volzhsky Bereg".
Both the architectural appearance of the houses and the elements of the project improvement were built around the river and ship theme, emphasizing the proximity and enhancing the connection with the Volga.
The great Volga is the main idea - forming factor for the township. The river in our context sets a powerful conceptual landmark, it depends on both the general stylistics of architecture, and the planning framework, elements of improvement, and all positioning, including the name and logo of the village, is built around the river identity.
Один из типовых домов большого посёлка с названием "Волжский берег"
Архитектурный облик домов, и элементы благоустройства проекта выстраивались вокруг речной и корабельной тематики, подчеркивая близость и усиливая взаимосвязь с Волгой.
Волга великая — главный идеяобразующий фактор для поселка. Река в нашем контексте задает мощный концептуальный ориентир, от нее зависит как общая стилистика архитектуры, так и планировочный каркас, элементы благоустройства, и все позиционирование, включая название и лого поселка, строится вокруг речной айдентики.
CONCEPTThe house looks compact in layout, but is distinguished by unusual interior spaces for such architecture. Thanks to the pitched roofs and differences in levels, we managed to escape the feeling of a typical one-story modern house. Tactilely pleasant wood material, exits from all rooms to your own courtyard and a cozy terrace, closed from the winds, make the house a place to which you would like to return.
С виду компактный в планировке дом, отличается необычными для такой архитектуры внутренними пространствами. Благодаря скатным кровлям и перепаду уровней нам удалось уйти от ощущения типичного одноэтажного современного дома. Тактильно приятный материал дерева, выходы из всех комнат в собственный двор и уютная, закрытая от ветров, терраса делают дом местом в которое хотелось бы возвращаться.
ARCHITECTURE
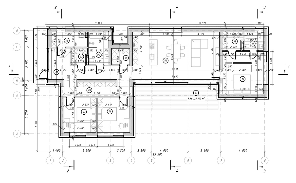
The house includes a full-fledged master block, a large kitchen-living room space with panoramic windows to the courtyard, two additional bedrooms and all the necessary premises for a complete comfortable stay.
Most of the facade consists of glazing on aluminum profiles. Glazing height measures in at 3.0 m.
Дом включает в себя полноценный мастер-блок, большое пространство кухни-гостиной с панорамными окнами во двор, две дополнительные спальни и все необходимые помещения для полноценного комфортного проживания. Большая часть фасада состоит из остекления на алюминиевых профилях. Высота остекления составляет 3,0 м.
作者:原文作者
图片@原文作者
语言:英语
客服
消息
收藏
下载
最近


















