查看完整案例

收藏

下载
项目简介 -
Horizon House 坐落在帕斯科谷 (Pascoe Vale) 的一个陡峭场地上,重新构想了典型的郊区住宅,创建了与其广阔的环境形成鲜明对比的平面图。 这座战略性布局的建筑使业主能够与景观亲密接触,同时提供远处的动态全景。
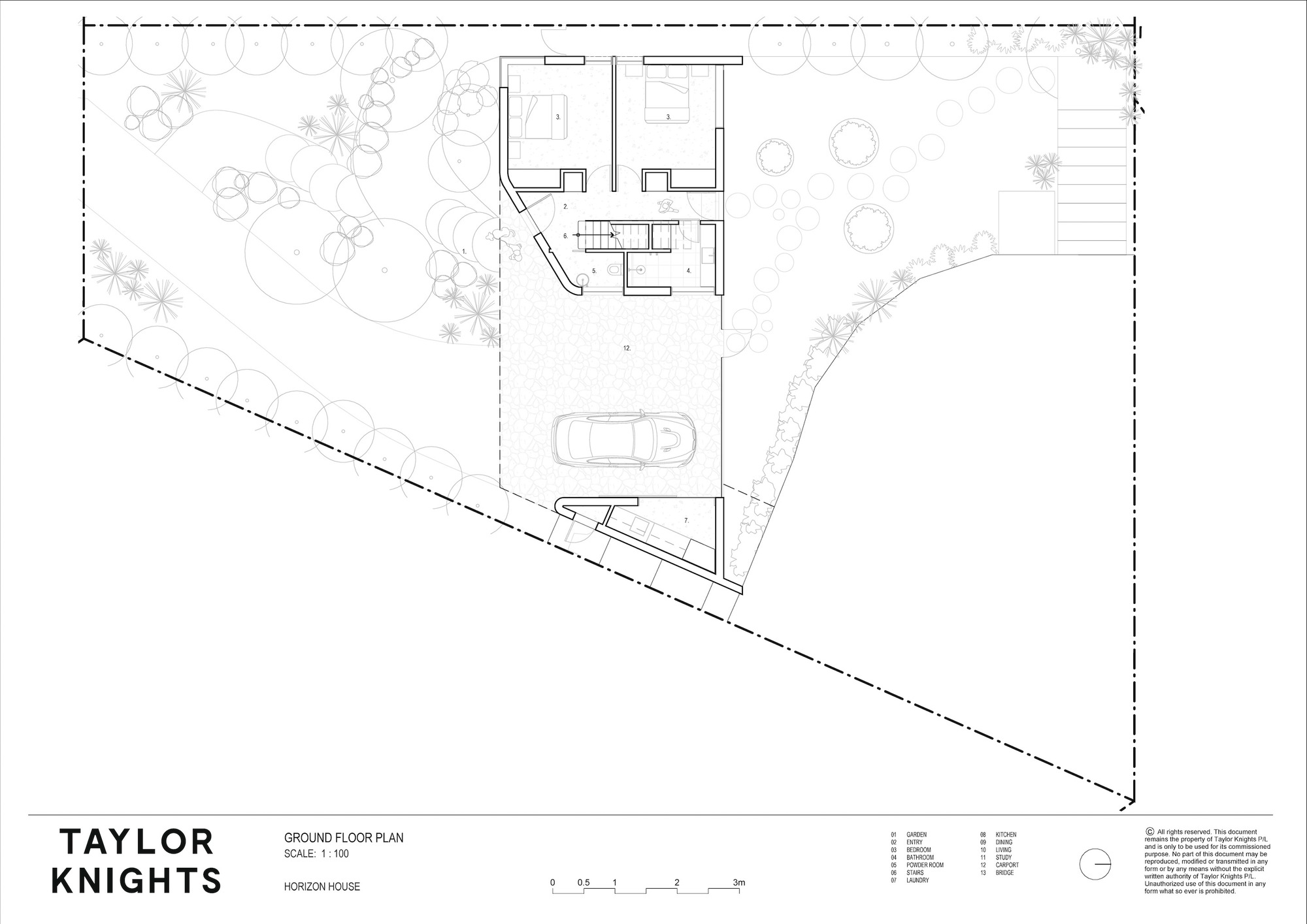
该项目的概念框架 -
住宅由两个可以分区的项目组成。 我们的意图是两个层次之间的光、影和亲密感的质量会有所不同。 底层空间坚固且私密,包含两间卧室、一间浴室和一间洗衣房。 较低的整体形式象征性地支撑着上方漂浮的一楼起居空间,负空间在下方提供了一个双车库。
该项目的概念框架 -
住宅由两个可以分区的项目组成。 我们的意图是两个层次之间的光、影和亲密感的质量会有所不同。 底层空间坚固且私密,包含两间卧室、一间浴室和一间洗衣房。 较低的整体形式象征性地支撑着上方漂浮的一楼起居空间,负空间在下方提供了一个双车库。
鼓励业主通过一座连接一楼起居空间和上层花园平台的桥梁与景观互动。 在南侧,细节刻意清晰而简约,捕捉并勾勒出远处城市的天际线。 长凳贯穿建筑物的整个长度,充当基准线来屏蔽下面的街道并在内部创造隐私。
项目设计:Taylor Knights
项目面积: 145.2501349m²
项目年份:2023
项目摄影:Tom Ross
Landscape Designers:Amanda Oliver Gardens
Builders: Dome Building Projects
项目设计:Taylor Knights
项目成市: Pascoe Vale South
项目国家: Australia
设计师:Taylor Knights
语言:英语
客服
消息
收藏
下载
最近





















