查看完整案例

收藏

下载
Fun-hey 泰餐厅是一家迎合当下年轻消费群体对餐饮需求的餐饮店。造型概念来源于快餐饮的消费流程,即等位-短暂停留-带走的模式。希望能提供给乘客短暂停留的景观巴士站,整个泰餐厅作为一个美食小站,食客们能在轻松氛围大快朵颐。
Fun-hey Thai Restaurant caters to the dining needs of today’s young consumer demographic. The design concept is inspired by the fast-casual dining experience, focusing on a model of waiting, brief stay, and take-out. The restaurant aims to provide passengers with a scenic bus stop for brief stays, with the entire Thai restaurant serving as a culinary station where diners can enjoy a relaxed atmosphere and indulge in delicious food.
▼室内概览,overview © 韦苡珊
整体风格上,品牌希望空间带有一些东南亚的联想,但同时有简洁的现代风格,适配泰餐场景以及轻松下午茶时光。
The restaurant brand aims to integrate some Southeast Asian elements into the overall style, while maintaining a clean and modern aesthetic. The space should cater to Thai dining scenes as well as provide a relaxing atmosphere for casual afternoon tea and light meals.
▼大桌餐区,large table space ©韦苡珊
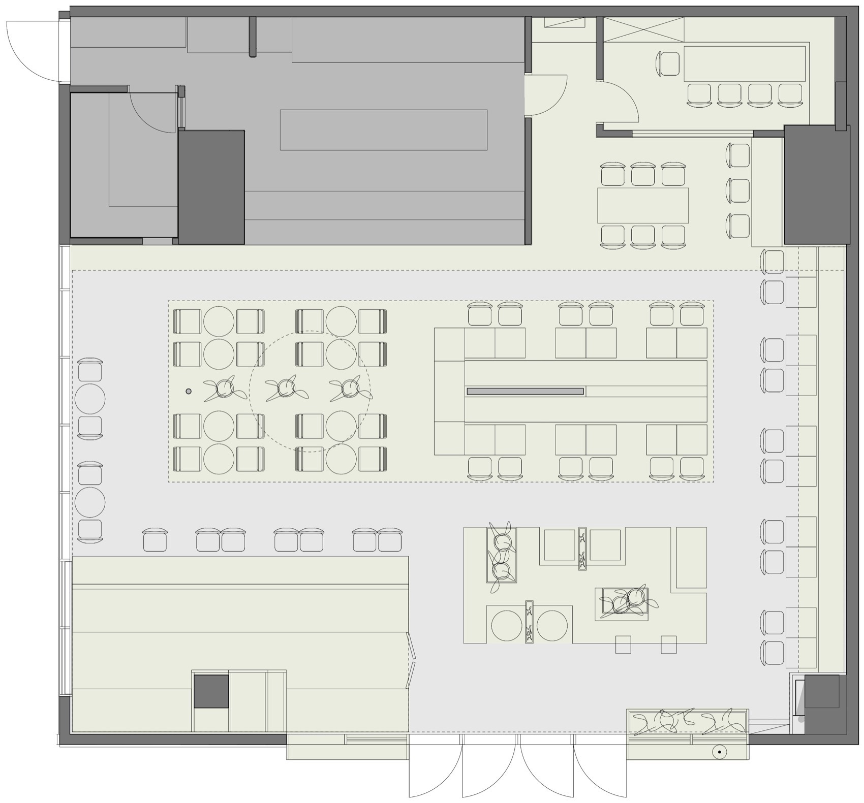
餐厅布局按照小站功能布局成几个模块:展示小亭——入口展示亭及外卖拿取亭;站前景观——饮品等位区;等车小亭——卡座就餐区;上下客候车区——散座餐区;售卖小亭——吧台;售票站台——半开放厨房。
The restaurant layout is designed into several modules based on the concept of a small station: Display Pavilion – entrance display pavilion and takeaway collection pavilion; Front Landscape – beverage waiting area; Waiting Pavilion – booth dining area; Boarding and Alighting Waiting Area – casual seating dining area; Sales Pavilion – bar counter; Ticket Sales Platform – semi-open kitchen.
▼轴测分解图,axon exploded © 另外建筑
场地中主色调采用灰绿色,辅以木色,粗糙质感漆和亮面瓷砖产生质感对比,灰色墙面搭配低调的黑色金属,绿色墙面点缀少量黄铜金属,打造生机盎然的场景。大量热带绿植的运用,模糊了室内外界限,打造多层次空间,注入东南亚的美食烟火气。
In the interior design, the primary color scheme features gray-green tones complemented by wood accents. The contrast between rough-textured paint and glossy tiles creates a tactile contrast. Gray walls are paired with subtle black metal accents, while green walls are embellished with touches of brass metal, creating a lively scene. Extensive use of tropical green plants blurs the boundaries between indoor and outdoor spaces, creating multi-layered spaces that evoke the essence of Southeast Asia.
▼包房前大桌餐区,Dining Area in Front of the Private Room ©韦苡珊
入口店面采用对称的布局,左右两个小箱亭分别为外卖出货口和与灯箱展示临时等位功能,小灯箱造型契合站牌设计,引入主题。大门正对等车小亭的 slogan 背景墙,“泰欢喜,尽余欢”,“Funhey”谐音粤语“欢喜”,突出品牌性格。The entrance storefront features a symmetrical layout. Two small pavilions on either side serve as the takeaway pickup point and a temporary waiting area with a lightbox display. The design of the small lightboxes aligns with the bus stop theme, reinforcing the concept. The main entrance faces the slogan background wall of the waiting pavilion, with the slogan “泰欢喜,尽余欢” (which translates to “Thai Joy, Relish the Joy”) and the brand name “Funhey,” which sounds like the Cantonese word for “joy,” highlighting the brand’s personality.▼入口门头设计, entrance façade ©韦苡珊
▼景观小亭,Landscape display window ©韦苡珊
▼外卖小亭,Takeout Window ©韦苡珊
等车小亭分为两个区域,一个是靠墙的卡座区域,展示了品牌 logo 用作打卡墙和品牌宣传背景板;一个是中心就餐区,由独立的小亭子卡座构成,旁边是散座餐区,代表流动的散客,就像车站中来往的人群组合灵活,在这个区域有一根支撑小亭子的杆件,上面错落的小灯箱标记指向各个方位的信息,就像车站的指示牌,引导来宾去到正确的地方。
The waiting pavilion is divided into two areas. One area features wall-side booths displaying the brand logo, serving as a photo wall and promotional backdrop. The other area is the central dining zone, consisting of individual pavilion-style booths. Adjacent to this is the open seating area, representing the flow of passengers, much like the flexible gatherings of people at a bus station. In this area, there is a pole supporting the pavilion, adorned with staggered lightboxes providing directional information, akin to station signboards, guiding guests to their desired destinations.
▼品牌 LOGO 墙,brand’s logo wall ©韦苡珊
▼休闲散座区域,the dining area ©韦苡珊
空间内设置了一个面向客人的点餐吧台,可以方便面对面提供酒水甜品。还有一个独立的后厨区域,开放的取餐口展示了后厨情况,以迎接的姿态欢迎顾客的监督。
Within the space, there is a customer-facing order bar where servers can conveniently offer drinks and desserts to guests. Additionally, there is a separate back kitchen area with an open food pickup window, showcasing the kitchen operations and indicating that the restaurant welcomes customer oversight.
▼吧台区,Bar counter ©韦苡珊
▼吧台区近景,Bar counter©韦苡珊
▼吧台区域回看等位区及门口绿化,Bar area overlook waiting area and entrance greenery ©韦苡珊
在餐厅靠内的区域,布置了一个小包间,以满足会客和多人聚餐的要求。
In the inner part of the restaurant, a small private room is arranged to meet the needs of meetings and larger group gatherings.
▼公共餐区,Dining Area ©韦苡珊
▼装饰细部,Decoration details ©韦苡珊
▼包房长桌,Privatedining room long tables©韦苡珊
在设计过程中,考虑到周边办公人群顾客的多样需求,我们布置了非常多样式的座椅,一人食、吧台座、对座、卡座、包厢均有安排,平等迎接每一位消费者。在后续使用反馈中了解到单人座的形式很受部分使用者的欢迎,由此,设计师应当根据使用需求去创造这种便利。
In the design process, considering the diverse needs of the surrounding office crowd, we arranged a variety of seating options: single dining seats, bar stools, paired seats, booth seats, and private rooms. This layout ensures that we equally welcome every consumer. Feedback from subsequent use has shown that single dining seats are particularly popular among some users. Therefore, designers should create such conveniences based on user needs.
▼公共餐区,Public dining area ©韦苡珊
▼餐厅环境,Restaurant environment ©韦苡珊
本项目打造了一个环境舒适、功能多样的餐饮空间,在设计早期阶段把主要使用人群,即周边聚集型办公楼人群纳入考虑,提供了餐饮午歇和会面聚会的功能空间,应对多种社交使用需求。
This project has created a comfortable and versatile dining space. In the early design stages, it considered the main user group, namely the office workers from surrounding office buildings, and provided functional spaces for dining, lunch breaks, meetings, and gatherings, catering to a variety of social needs.
▼平面图,floor plan © 另外建筑
项目名称:Fun-hey 余欢泰餐厅
项目设计:另外建筑
项目建筑师:吴清泉 赵晓玲
施工方:上海牵思装饰工程有限公司
摄影:韦苡珊
项目设计 & 完成年份:2023.04-2023.07
项目地址:上海
建筑面积:220㎡
客户名称:上海丰余裕餐饮管理有限责任公司
主要材料:水磨石板,金属烤漆板,木纹板,瓷砖
Project name: Fun-hey Thai Restaurant
Design: Lingwai Studio (architecture, interiors)
Design director : Qingquan Wu,Xiaoling Zhao
Contractor: Shanghai Qiansi Decoration Engineering Co., LTD
Photo credits: Yishan Wei
Design year & Completion Year: 2023.04-2023.07
Project location: Shanghai
Project area: 220㎡
Clients: Shanghai Fengyuyu Catering Management Co., Ltd.
Main materials: Terrazzo tiles, metal lacquered panels, wood grain panels, ceramic tiles
客服
消息
收藏
下载
最近


























