查看完整案例

收藏

下载
我们的项目位于 L´Ampolla 的住宅区,旨在既本地化又与众不同。 它并不寻求与其环境的连续性,而是挑战建筑环境。 新住宅被呈现为一个独立的实体,它声称失去了遗产,并从当代的角度重新诠释它。
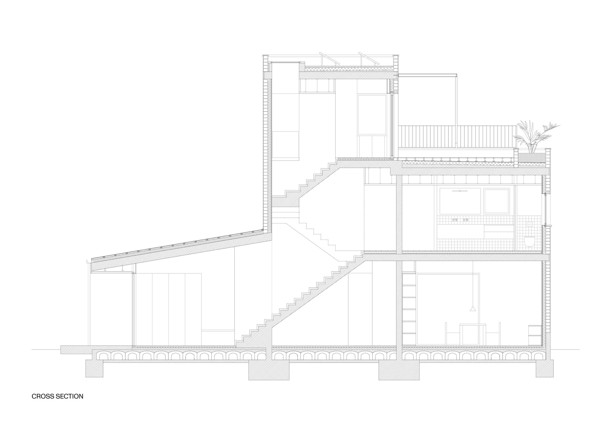
从这一基本语言出发,并满足客户将“Fangar”灯塔的观点纳入其中的愿望,我们在平面和剖面上组成了一组三个交错的体量。 第一卷位于底层,有一个大的倾斜锌屋顶,与街道形成纵向屏障,并隔离花园。 第二卷集中垂直循环并上升三层,到达俯瞰大海的露台和绿色屋顶。 第三个朝南,在一楼创建了一个阴凉的小庭院。 通过这种方式,建成的整体接管了情节并建立了一系列空间和交叉视图,增加了整体体验的复杂性。
该项目由宽敞且可进入的空间组成,旨在轻松适应。 房屋的分布使其可以根据居民的需求划分区域。
底层抛光混凝土路面向外延伸,形成连续的平台,加强了房屋与花园的关系。 混凝土底座沿着整个建筑周边延伸,并被挤压以形成内置家具元素。 外立面涂有石灰砂浆,符合地中海类型。 这些开口模拟了石砌墙的深度,将存储和设施带到了外层,并减少了夏季的阳光照射。 可持续发展方法将传统建筑典型的简单方法与安装太阳能电池板、机械通风和 ASHP 系统相结合,实现了高能源效率。
室内与地中海景观、大地和周围花园项目的原生植被的色彩建立了联系。
空间根据建筑物的开口分布,朝向花园和大海,将内部延伸到外部,确保夏季和冬季有不同的生活区域,并受到建筑物及其凉棚的保护。 室内设计朴素,在色彩、材料和空间方面与其预期用途以及与花园的关系相协调。 表面、家具和设备都很实用,结合了木材、陶瓷、色彩、纺织品、拉菲草和钢材。
花园的整个周边被一堵矮墙围起来,花园里种植了习惯于长期干旱的地中海本土植物和树木。 游泳池的设计融入了植被,由混凝土平台构成,延伸并与建筑物和住宅内部连接。 底层内部和花园之间的这种连接根据其景观和用途定位、组织和整合所有设备和家具。
该项目的目标是通过空间建立城市和乡村景观、乡村和海洋之间的关系。
项目设计:Jordi Veciana, Juan Gurrea Rumeu, Skye Maunsell Studio
项目面积: 420.2501349m²
项目年份:2023
项目摄影:Salva Lopez, Simone Marcolin
首席建筑师:Juan Gurrea Rumeu
Constructors:Construcciones Montiel Perez
Architecture + Interior Design: Skye Maunsell - Skye Maunsell Studio, Juan Gurrea Rumeu - gr-os, Jordi Veciana
Collaborative Architect: GAR Arquitectura, Joana Argerich - GAR Arquitectura
Program / Use / Building Function: Single family home
Instalations: Instalcat Smart Project
项目成市: L'Ampolla
项目国家: Spain
设计师:Skye Maunsell Studio
语言:英语
客服
消息
收藏
下载
最近
























































