查看完整案例

收藏

下载

翻译
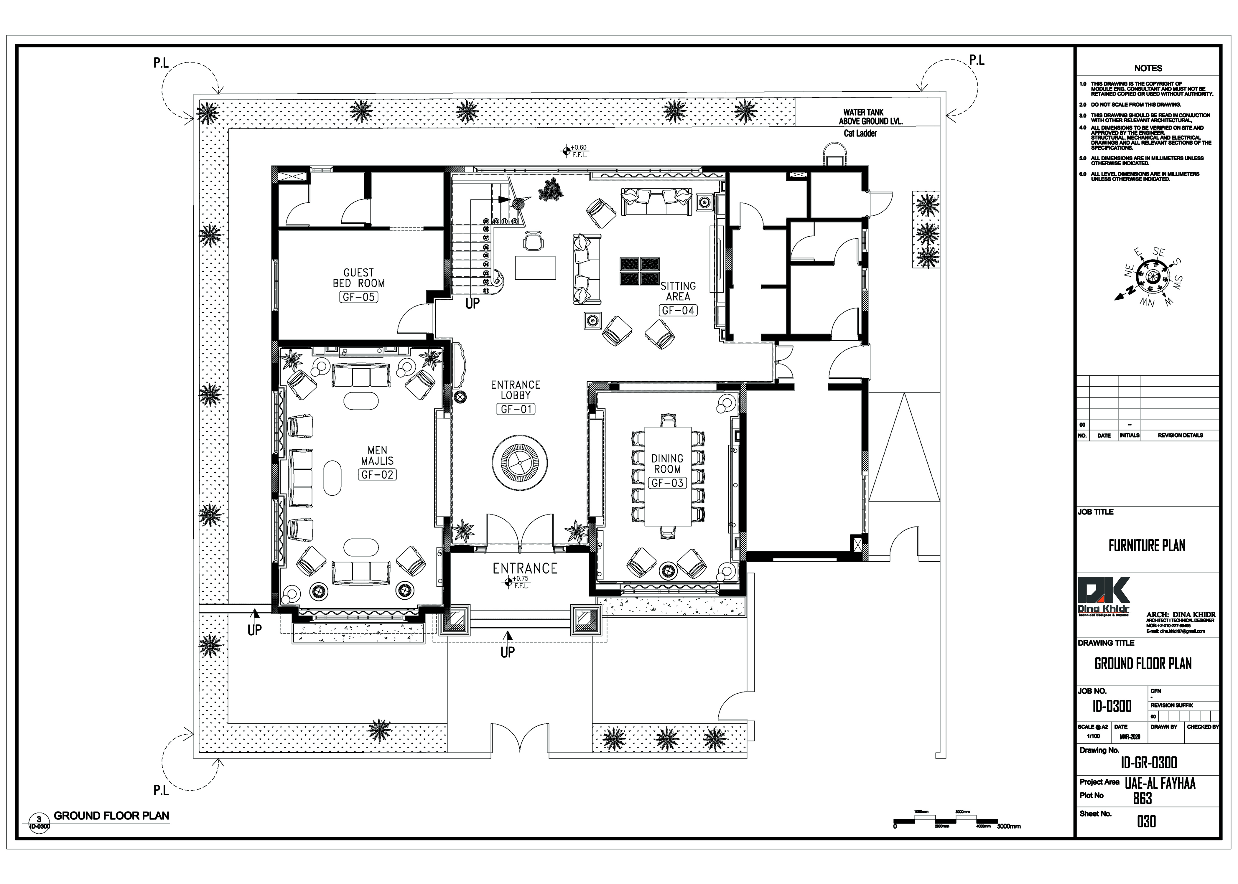
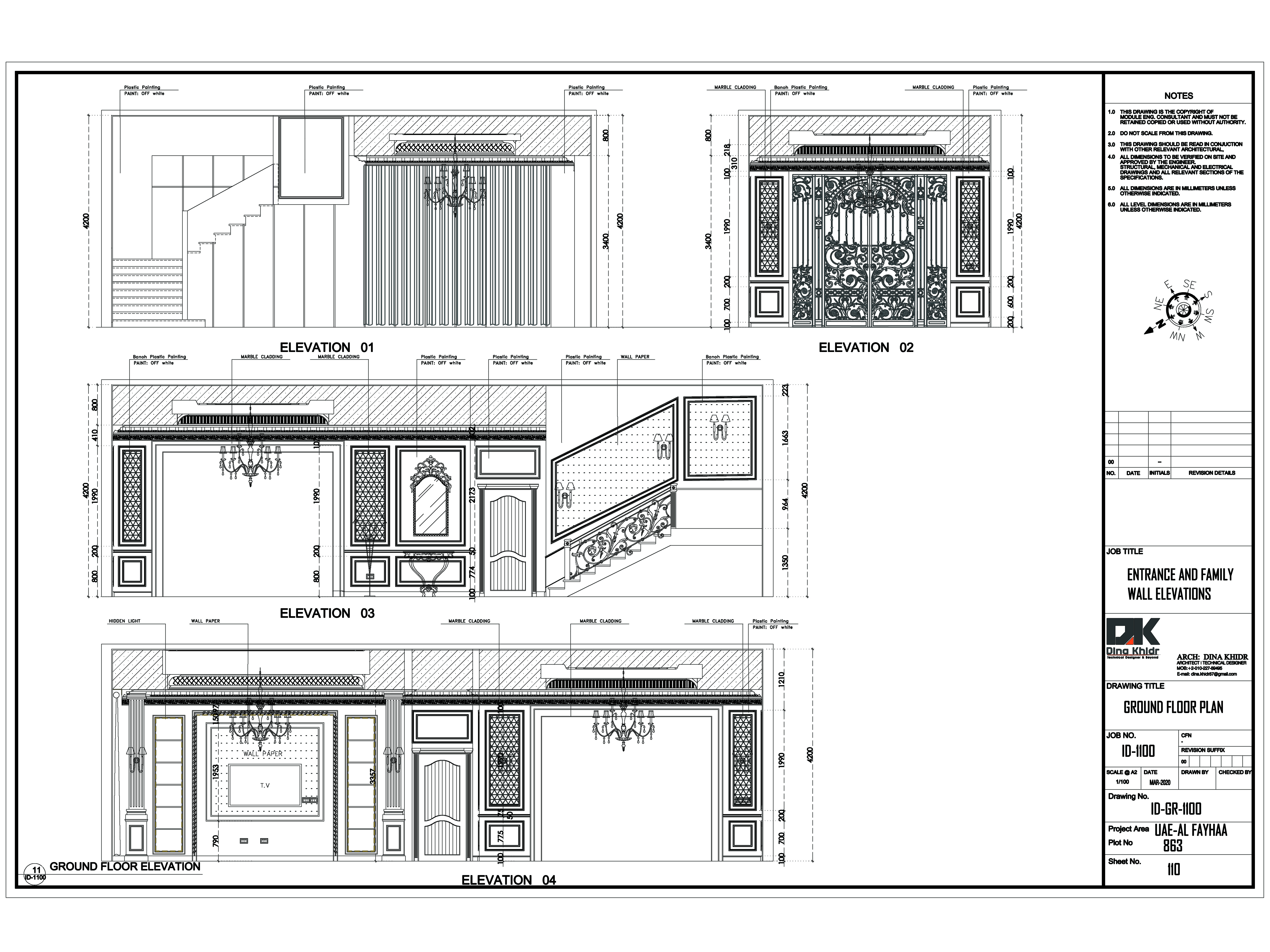
This new project is a classic villa located in UAE. The first part has the following spaces: The main majles, the grand dinning and the entrance . The first space (The main majles) was created with cold pastel colors; dusty blue, yellow corn and shades of taupe and beige, all with velvety and silky texture with the essential touch of gold to emphasis the classic luxury feeling. In the second space (The grand dinning) one can still sense the soft feeling of cold pastel colors. Soft lavender shade was used with a classic damask print combined with ivory and ofcourse gold. Also notice the usage of beige italian marble to make a contrast with the lavender shade both in the main water jet and the high door frames to emphasize luxury.
Design and 3D By : Ulfat Ktaifan
Technical Drawings By : Dina Khidr
Main majles :
Dinning Room :
Entrance :
Technical Drawings :
1 )Architectural ,Dimensions , Furniture Plans :
Reflected Ceiling Plan :
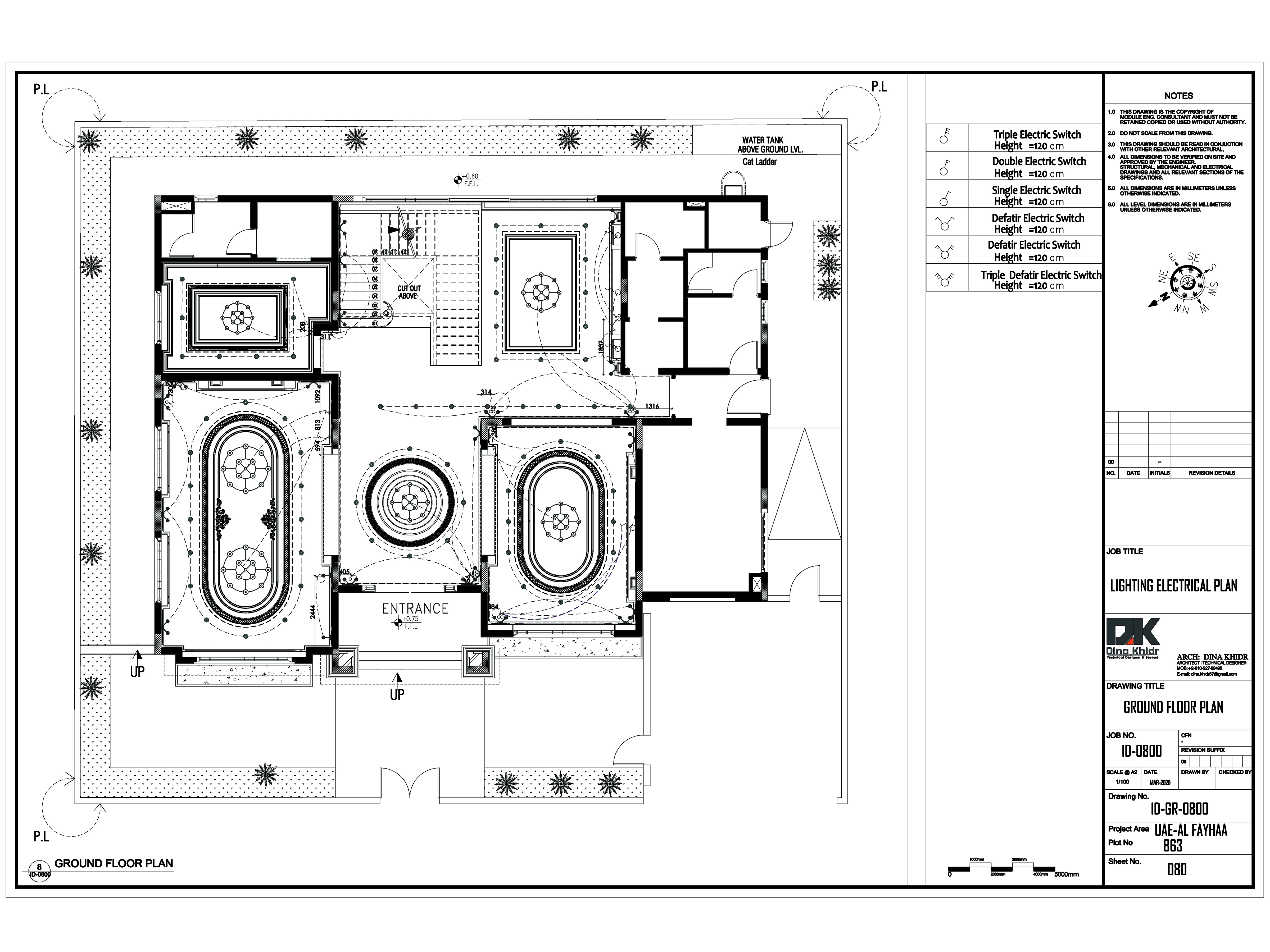
Lighting Electrical Plans :
Power , Socket , Telephone Plan :
Kay Plan :
Elevations :
Details :
THANK YOU!
客服
消息
收藏
下载
最近




















