查看完整案例

收藏

下载
然而,有一个关键时刻,我对这栋房子有了深刻的了解,这凸显了客户信任和创作自由的重要性。 我们的想法是利用地形来支持该项目。 该地块比该地区平常的地块更宽,并且有一个轻微的坡度,可以有利地利用。 考虑到公寓的限制,可以利用这种地形特征。 因此,该项目利用了这个坡度,将房子分为不同的层次:二楼、半地下室和社交底层。 这一构想的实现得益于与客户的自由讨论,客户没有偏见或先入为主的想法。 他们非常愿意讨论房子的建筑,并且慷慨地信任我们工作室的潜力。
这个项目不断发展,直到我们达成了一个每个人都认为非常适合这座房子的构想。 之后,我们开始完善细节,例如空间的大小和位置。 然后,我们开发了房子的室内设计项目。关键时刻是我们有效地将地形的解读纳入项目的讨论中。 最初,我们对地形的了解有些肤浅,只考虑了它的大小。 我们没有停下来质疑情节的其他观点,独立于房子。 正是在那一刻,我们解构了简单地在地面上建造一层楼的想法。 问题出现了:为什么不利用缓坡和地势的宽度呢? 那是地形决定房屋建筑的决定性时刻。
房屋中混凝土的使用是经过有意识地深思熟虑的,不仅考虑了物质性,还考虑了建筑动力、建筑推理和结构。 混凝土浇筑到位,给项目带来了流动性和自然感。 房子主要由混凝土板组成,外部是玻璃。 空间的内部分布是根据创建房间的需要来定义的。
在房间中使用布里斯的想法是为了在这些空间内创造第二种氛围而产生的。 由于该房屋没有直接邻居,并且位于公寓的树木繁茂的地区,因此采用了“muxarabi”原则。 这样一来,居民可以通过打开窗帘和窗户来欣赏风景,而外面的人则很难看到内部,因为窗帘提供了交换的亮度。
亮点之一是套房,床区几乎可以180度全景。 这使得居民在拉着窗帘看电视时可以享受隐私,因为他们不会像只有玻璃而没有挡板那样暴露在外。 因此,这种建筑解读正是在房间中被强调的,而肋骨在这个意义上发挥着基础性的作用
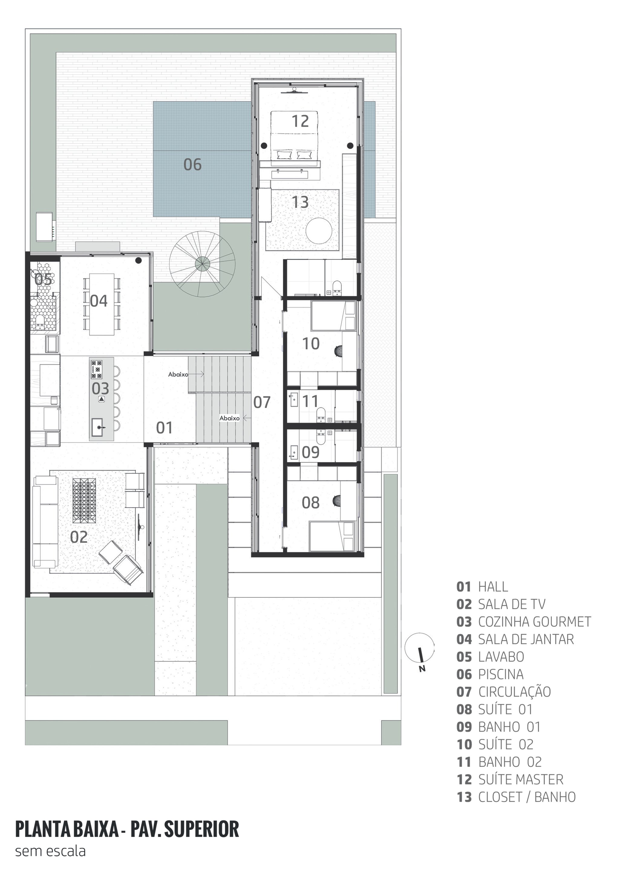
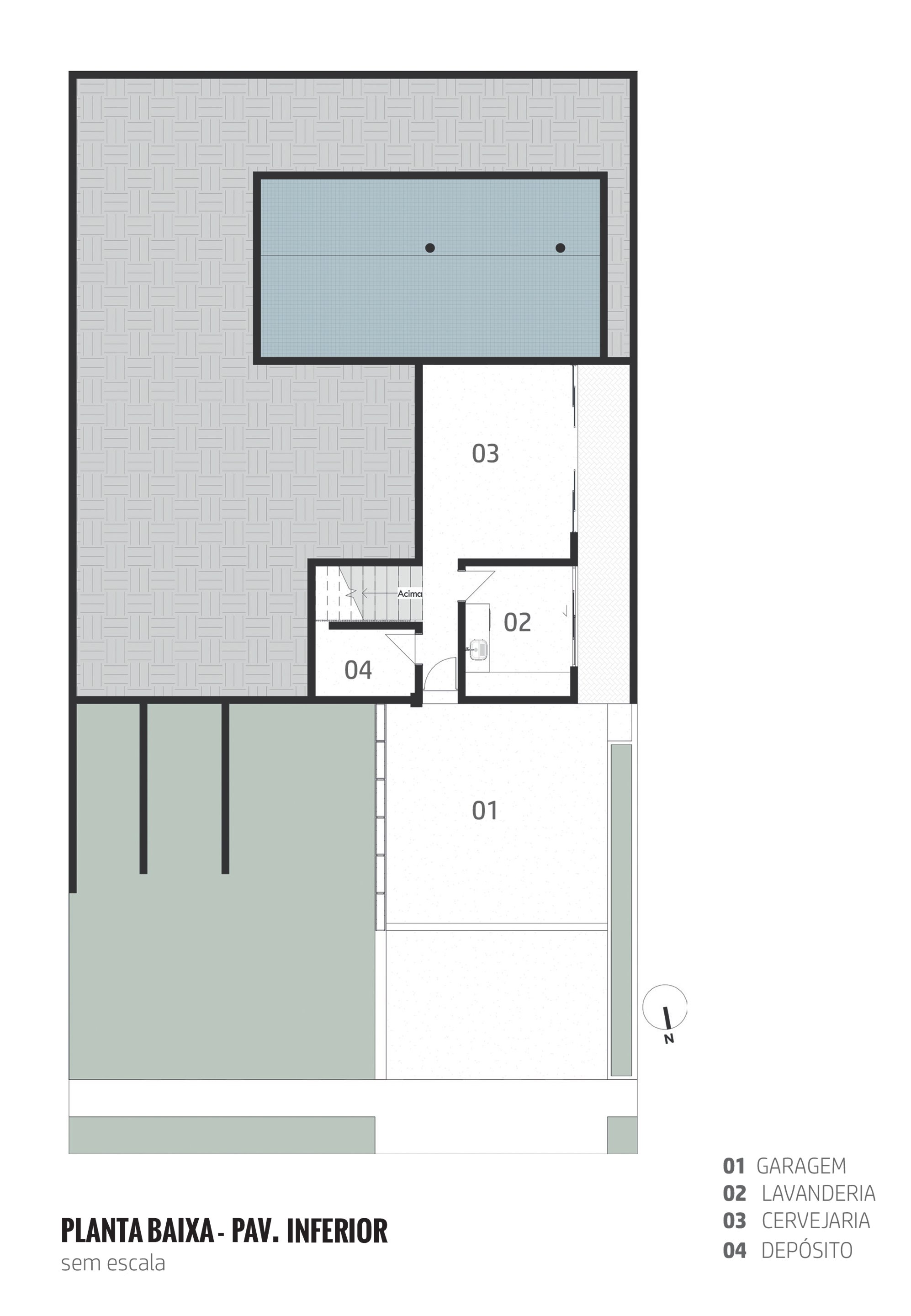
在社交区域,决定将空间开放,以便与外部广泛融合。 入口大厅作为房屋的集散中心,连接地下室、底层和一楼。 进入住宅后,我们会看到庭院,庭院由房屋的两个体块平行构成,并以白色的ipê树、甲板和与悬浮体块融为一体的游泳池为特色。
房屋内的动线极其活跃,即使在传统地段也能提供不同的移动方式。 上升、下降、前进和后退的可能性为居民创造了独特的体验。
有趣的是,进入大厅后,您会被引导至房子的中心。 当离开套房前往社交区时,您可以欣赏庭院的景色。 卧室和大厅稍微抬高的位置提供了优越的视野,在思考空间时营造出一种愉快的感觉。 建造房屋时的重点是创造一个能够唤起感觉、感知和感受的环境,鼓励空间的使用。 感官游戏是增强居民对房屋鉴赏力的最重要方面之一。
当您身处高架卧室时,您可以以独特且特定的方式欣赏这座房子。 在作为游客进入点的入口大厅,房子也提供了一个有趣的视角。 在客厅,拉开窗帘,可以欣赏到街道、悬浮体块、车库、大厅的景色。 房子的流动性和对周围空间的重视为在场的人提供了舒适、平和、安宁和休息的感觉。
平面与结构图:
设计师:Caio Persighini Arquitetura & Design
坐落:Araraquara / Brazil / 2022
语言:English
客服
消息
收藏
下载
最近









































































































