查看完整案例

收藏

下载
Umasari House 位于 Petitenget 的中心地带,是一个真正享有盛誉的住宅区。 我们的客户想要一座具有现代热带概念的住宅。 此外,他们还希望自己的房子是根据风水来设计的,尤其是建筑规划中的空间规划。
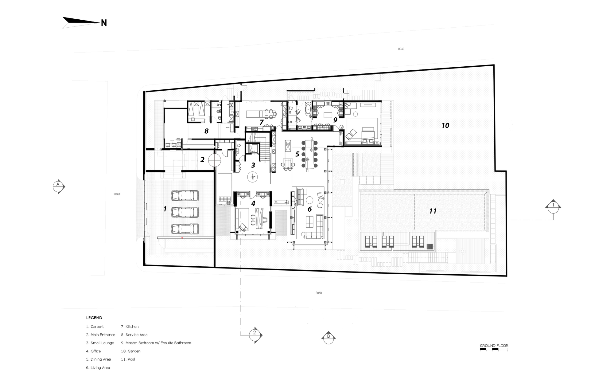
因此,平面图的设计遵循场地的形状。 前区特意设计为没有绿地,仅用作车库。 我们将被带到建筑物中间的入口处。 然后,迎接我们的是与左侧二楼楼梯相连的门厅区和右侧客厅。 至于其他房间,它们纵向排列在后面,并在它们之间形成一个细长的循环。 根据业主的要求,Umasari House 的末端设有一个游泳池和一个大后花园。 该建筑共两层,总建筑面积1385平方米。 那么,这座住宅只是一个面积为 1,600 平方米的细长体。
该房屋设计过程的挑战之一是如何设计单体住宅,使其看起来不会太大。 我们通过多种解决方案来解决它。 其中之一是在规划中添加绿化区域。 房间之间的绿地设计没有破坏之前的风水计算。 这个迷你花园的存在使每个房间都有自己的景观。 同时,树木的存在有助于促进 Umasari House 的交叉通风。 此外,许多开口允许阳光自由进入建筑物,使内部用户更加健康。
此外,我们还为 Umasari House 的每个房间设计了高高的天花板。 不仅适用于一楼的房间,也适用于二楼的房间。 此外,起居区设有双层高天花板。 至少,内部的这个高度使这座住宅的体积更小,更宽敞。
然后,每个房间都具有前卫高度的矩形平面使 Umasari House 看起来也像一个细长的质量盒子。 这种永恒的盒子形状实际上也是满足客户对家居现代概念要求的答案之一。 然而,我们不希望这种现代概念在这里显得如此占主导地位。 因此,我们将其与热带建筑材料结合起来。 其中有天然石材和铁木。 我们在房屋的立面区域和一些墙壁上使用天然石材。 同时,在上层立面区域可以看到铁木。 我们还将其与玻璃墙结合起来,作为 Umasari House 的开口。 天然材料和玻璃墙的结合很好地定义了热带现代风格。 这是从房屋设计中诠释巴厘岛的好方法。
项目设计:Arkana Architects
项目面积: 1385.2501349m²
项目年份:2023
项目摄影:Indra Wiras
首席设计师:Gathi Subekti
Structure Engineers:ANSCON CE
MEP 项目顾问:WikenZ Studio Design
建筑承包商:Cipta Kreasi Bangun Pratama. PT
Interior Designers:ANP interior architecture
Lighting Designers:Studio Nimmersatt
Landscape Designers:MLA Concept
Project Architect: Andika Surya Pramana
Technical Architect: Weliam
Drafter: Ilham Firdaus
设计团队: Weliam
Supervision Team: Weliam
项目国家: Indonesia
设计师:Arkana Architects
语言:英语
客服
消息
收藏
下载
最近


































