查看完整案例

收藏

下载
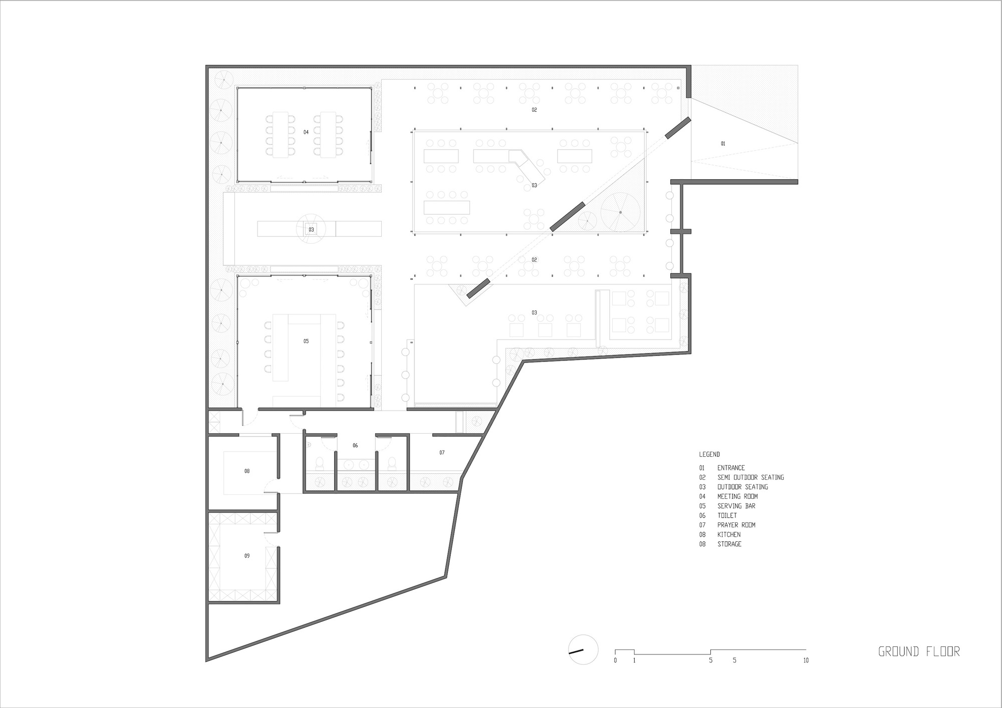
Tanulo Coffee 成立于 2022 年,紧随万隆 Mekar Wangi 地区的城市发展。 该项目位于住宅区,拥有多层出租房屋和自有土地,面积约560平方米。 以酒吧和会议室为主要功能的两座主要建筑位于后面区域,目的是为游客提供步行到建筑时的体验,穿过休息区和互补的花园。
主楼的概念是简单的屋顶,高高的,有天窗,使建筑显得宽敞明亮,以减少白天的电能使用。 建筑物周围使用玻璃门的墙壁材料也被用来创建内部和外部空间之间的互动。 在较小的土地表面上,我们使用安山岩层状墙体材料,以便游客可以轻松识别它作为建筑的亮点之一。
我们试图在每个现有区域中创建序列,从入口开始,入口由覆盖着天然安山岩的墙壁区域引导,并由流通区域的座椅引导。 绿色区域几乎遍布整个建筑,与设计的主色调自然灰色相得益彰。 简单材料的选择,如粗糙的水泥灰泥和覆盖天然安山岩的墙壁,强化了热带概念和 Tanulo 建筑的特色。 所使用的建筑系统是钢框架系统,因为部分结构依赖于河流周围的结构,河流在某些区域的土地下流动。
室外和半室外座位区的存在使自然光和空气能够流入建筑物,释放来自太阳光线的热量。 还考虑了儿童游乐区的放置,以便从多个侧面对其进行监控。 与休息区融为一体的景观游乐区可以容纳所有游客活动,在该区域周围进行绿化以保持阴凉,并保持咖啡厅区域的绿色。 考虑到外部的视野不够好,我们必须在建筑区域创造一个可供游客欣赏的良好视野。
项目设计:Simpul Studio
项目面积: 530.2501349m²
项目年份:2022
项目摄影:Billy Prayoga
供应商:Philips, Toto
首席建筑师:Ricky Khosasia, Derian Adikara
Program / Use / Building Function: Coffee Shop (Commercial)
项目业主: By Owner
项目成市: Bandung
项目国家: Indonesia
设计师:Simpul Studio
语言:英语
客服
消息
收藏
下载
最近


















