查看完整案例

收藏

下载
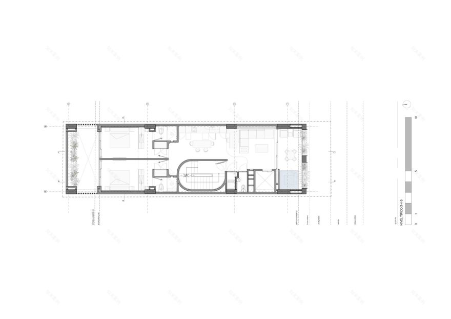
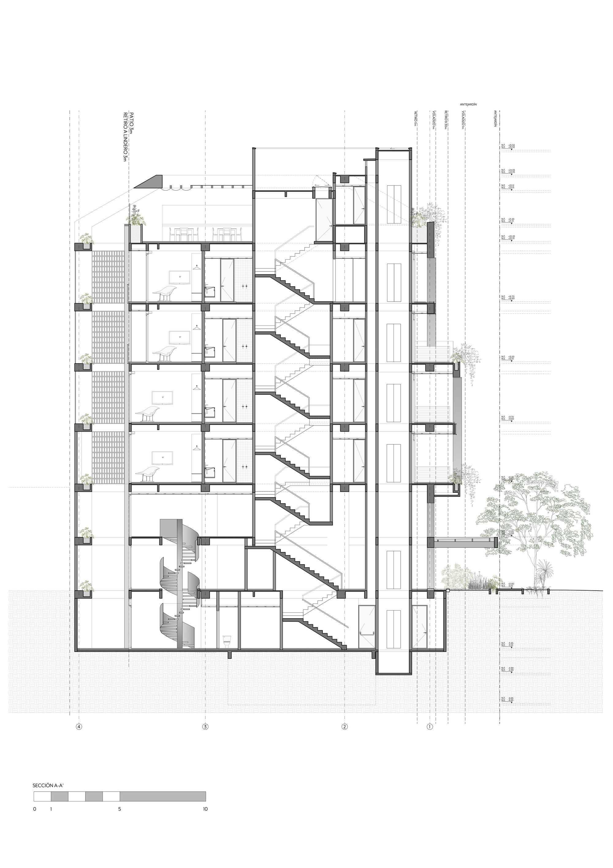
这座出租的小型公寓楼位于麦德林普罗文扎社区城市结构的一个街区的中间。 这个城区的典型地块都有聚会墙并且被拉长。 在这种情况下,该地块的主面和窄面位于东西方向,太阳入射角更大。 因此,我们建议每层都有一个单独的公寓,具有深立面和中间空间——阳台、露台、花园——在末端,允许交叉通风、自然采光和遮阳区域。
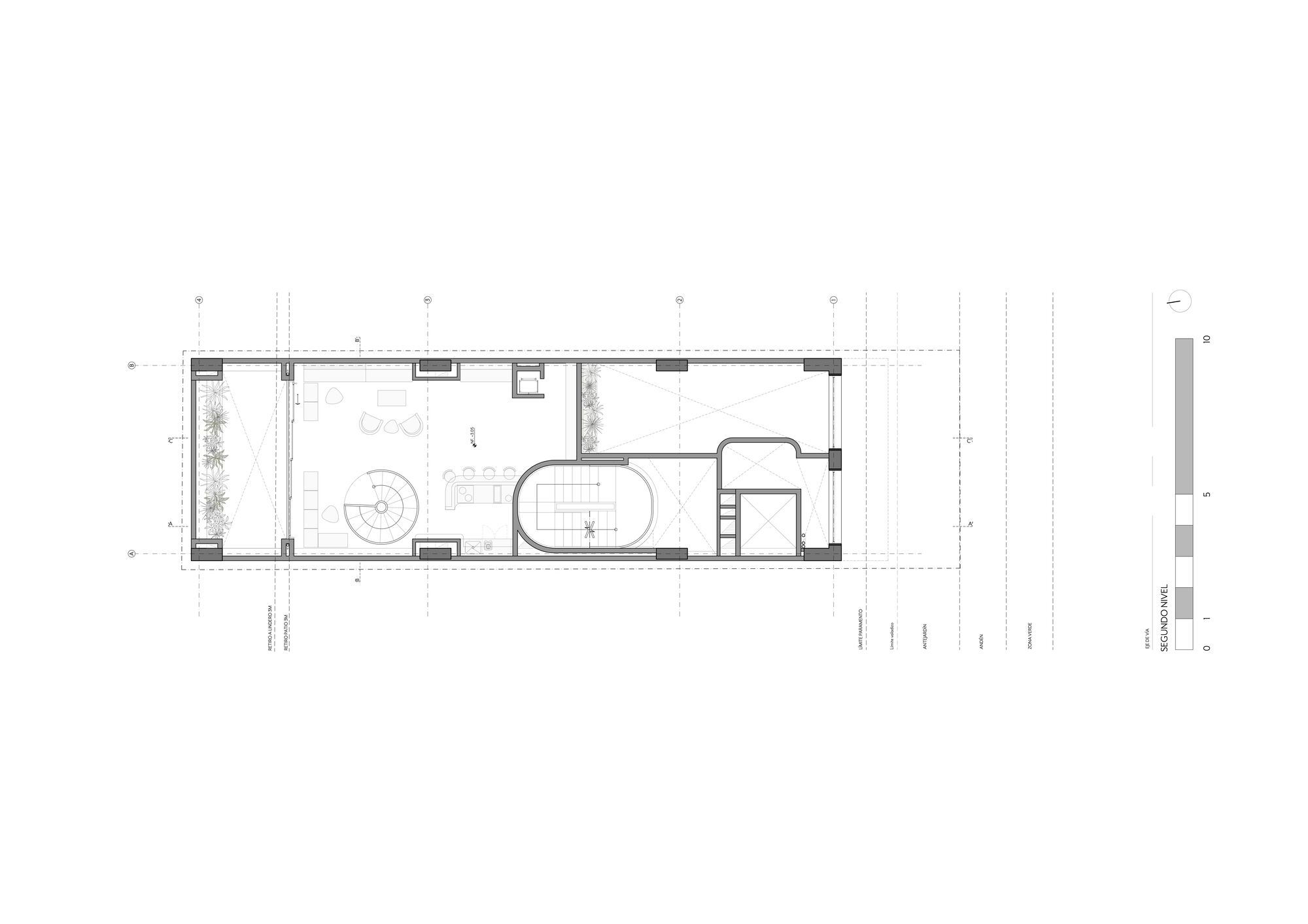
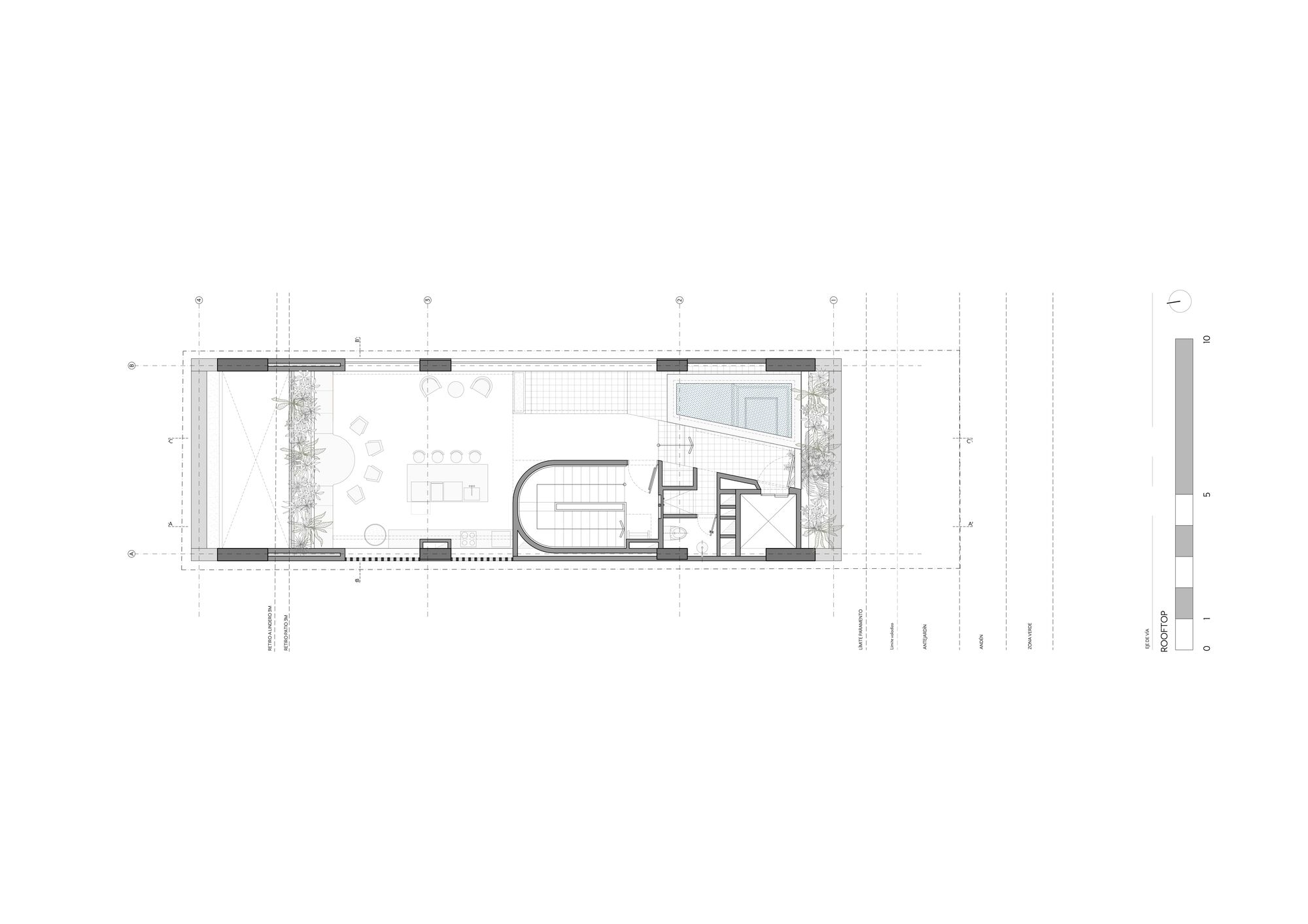
侧面和细长的立面有小窗户,符合城市法规。 在建筑的第一层,我们设置了大堂、垂直循环以及与技术地下室相连的双层高餐厅。 在接下来的四层中,我们建议每层一间公寓,东侧是社交区,西侧是卧室,中间是厨房。 最后一间公寓与带凉棚的私人露台相连,享有远处的城市景观。
对于主立面,我们提出了一个由六个裸露混凝土结构拱门组成的系统,形成六个矩形和六个弯曲的开口。 最后,我们设计了后立面来表达结构混凝土框架,形成带有穿孔金属地板和花盆系统的深阳台。
项目设计:Plan:b arquitectos
项目面积: 985.2501349m²
项目年份:2023
项目摄影:Alejandro Arango
首席建筑师:Felipe Mesa, Federico Mesa
设计团队: Laura Kate Correa, Carlos Blanco, Verónica Mesa, Manuel Salazar, Andrés Rodríguez.
Interior Design: Ricardo Vargas, Melissa Ortega, Sandra Pizano
项目业主: Casacol
项目建造: Jorge González Ingeniería
项目成市: Medellín
项目国家: Colombia
设计师:Plan:b arquitectos
语言:英语
客服
消息
收藏
下载
最近












































