查看完整案例

收藏

下载
该项目场地位于郁郁葱葱的绿色公园旁边,为客户和建筑师提供了充分利用其自然环境的机会。 该项目旨在与环境无缝融合,使用简单而天然的材料。 选择在外部采用 Shou Sugi Ban 炭化技术实现了双赢:烧焦的木材在视觉上融入景观,而材料的尺寸与周围的建筑相得益彰。 此外,烧焦层具有低维护的耐用性。 该屏幕提供了与邻近建筑物的视觉隔离,同时还通过整合屏幕上生长的景观植被,有效阻挡刺眼的阳光进入建筑物。
在整个项目中,重点是创造广阔、宽敞的空间,以培养场地内的开放性和渗透性。 这是通过最大化沿东西轴的线性视图并融入充足的绿化和景观来实现的。 东西方的远景激发了关于窗户尺寸的详细讨论。 客户喜欢更大的西窗。 为了抵御日晒雨淋,朝西的屋顶悬挑延伸近 10 英尺。 西侧滑动门设有可操作的百叶窗,可调节通风和隐私,非常适合晚上和空置时使用。
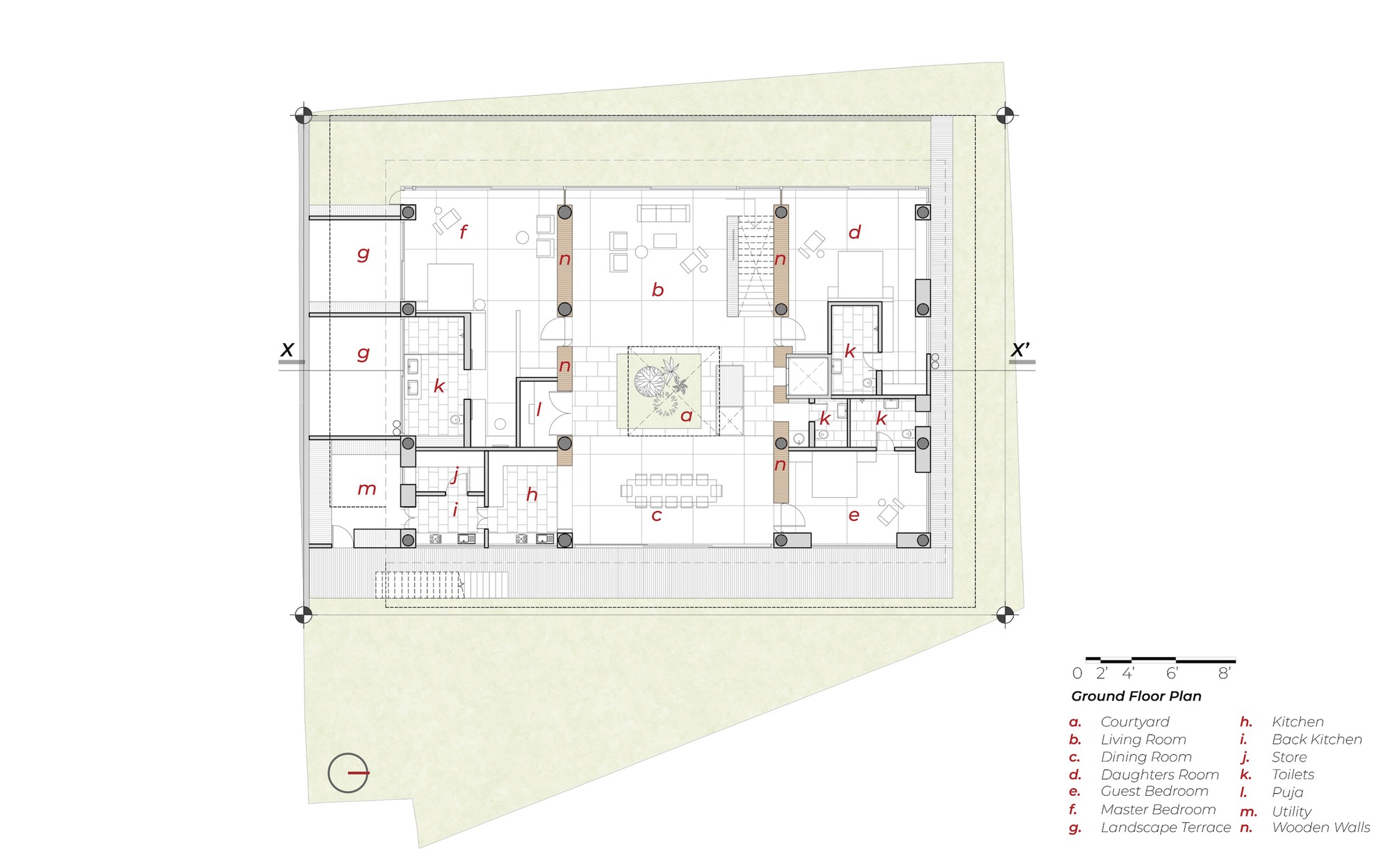
设计优先考虑景观整合。 地窖中的碾压混凝土体积充当挡土墙,升高以便在上层种植植物。 这创造了一个景观走廊,提供防晒和与自然环境的直接联系。 根据客户的要求,开放式庭院将餐厅和起居区融为一体。 粗糙的班加罗尔石材巧妙地界定了空间,而上面的可操作玻璃板则提供防雨和通风功能。 上层设有可操作的玻璃板,具有双重用途:保护庭院免受雨水,同时实现交叉通风以对抗热空气,这一决定受到雨水和昆虫等实际考虑因素的影响。 客户和设计团队之间的这种协作方法对建筑的最终特征和氛围做出了重大贡献。
为了在设计和客户需求之间取得平衡,该住宅的主层拥有精心比例的 11 ½ 英寸天花板,在不牺牲亲密感的情况下最大化空间。 隐藏的横梁营造出一种干净的美感,而上层的下沉板则创造了一个从各个房间都可以看到的郁郁葱葱的露台花园。 整个房子的花盆向下层叠绿色植物,将自然无缝地融入到建筑中。 这种多层的方法和巧妙的双面衣柜体现了贯穿整个家庭的贴心设计。
定制的内部餐桌优先考虑价格实惠和多功能性,可满足用餐以外的各种功能。 其独特的设计采用混凝土底座、工字型材和木材,可节省大量成本,同时通过有效的重量分布确保耐用性。
该设计采用了花岗岩、木材、黄铜、混凝土和玻璃等基本材料,并根据它们的兼容性和营造特定氛围的能力进行了精心挑选。 这种方法优先考虑的是一种有凝聚力和吸引力的氛围,而不是给人一种“哇”的因素。 例如,黄铜与混凝土或缅甸柚木搭配创造出独特的感官体验,同时有助于和谐的整体美感。 这种方法平衡了可视性和无缝感,在整个房子里营造和谐的体验。
项目设计:Kiron Cheerla Architecture Design
项目面积: 7500 ft²
项目年份:2022
项目摄影:Vivek Eadara
首席设计师:Kiron Cheerla
项目成市: Hyderabad
项目国家: India
设计师:Kiron Cheerla Architecture Design
语言:英语
客服
消息
收藏
下载
最近




































