查看完整案例

收藏

下载
D House是一座小房子,建在150平方米的土地上,位于西雅加达一个相对古老的综合体的密集街区。 设计这座房子时的挑战之一是房子前面的道路相对狭窄,只有大约 30 米。 5米宽,让人感觉与对面的邻居非常接近,同时又必须满足客户最大化建筑面积的需求。
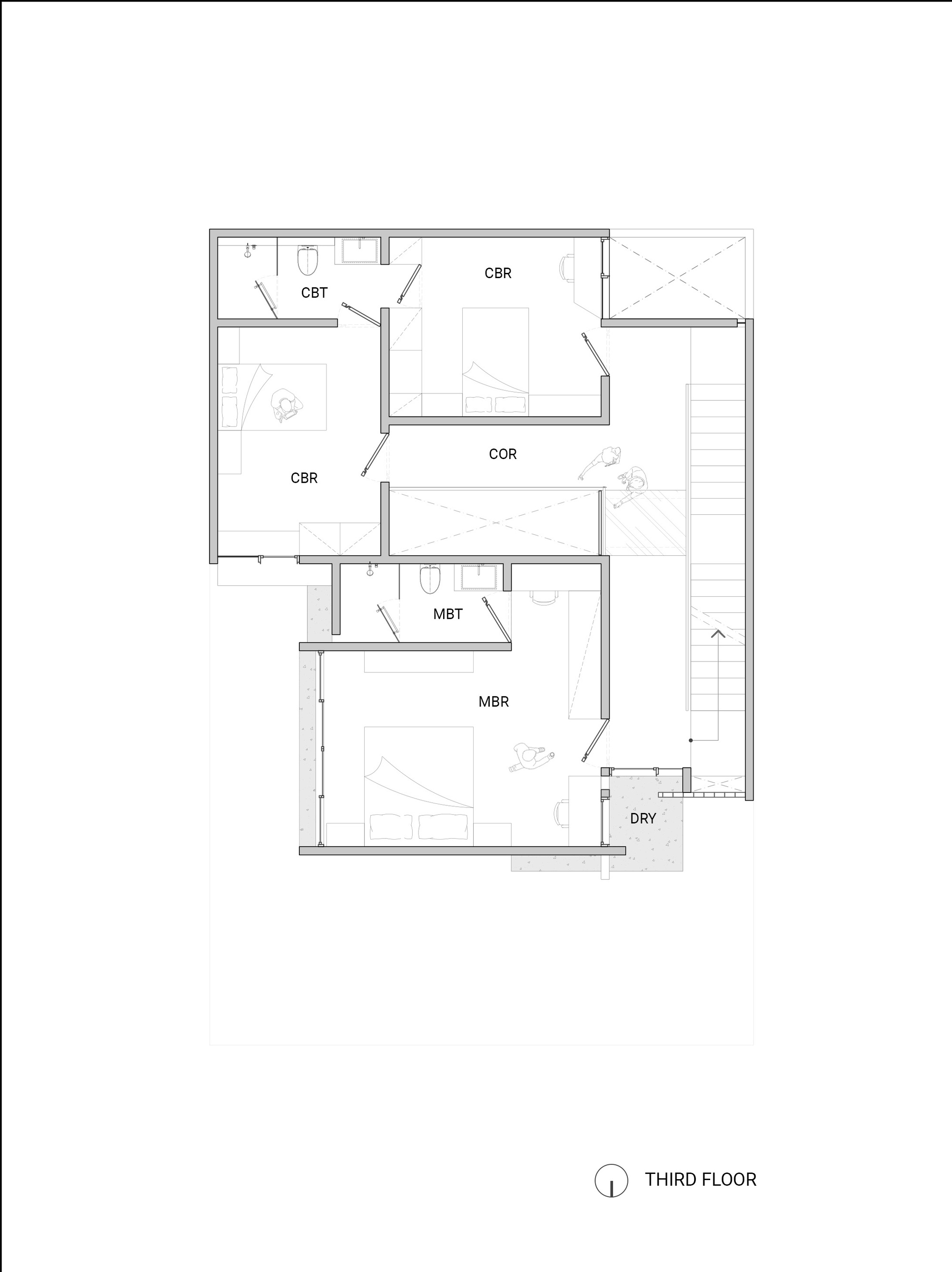
车库、服务区和客房位于这所房子的一楼,而更多的公共功能室,如祈祷/聚会室、客厅和餐厅则位于二楼, 更多私人区域(如卧室)位于三楼。 通过这种方式分配房间,我们能够自由地向自然和户外聚集区开放二楼,在密集的街区中间打造出一片独立的绿洲。
该住宅空间设计的基本原则是压缩和释放,而一楼的入口门厅则被设计为低矮的天花板、柔和的材料,并且相当狭窄。 当我们走上楼梯抬头一看,光线从二、三层相交的虚空和天窗刺入整个空间,最后,我们会被宏伟的明亮的开放空间所迎接,这就是祈祷/ 聚会室。 它战略性地位于一楼和二楼之间的错层,给人一种天花板很高的感觉,因为它将成为客人遇到的第一个房间。 这个房间可以完全向半室外露台开放,楼梯台阶可以成为座位空间的延伸。 聚会活动结束后,客人将通过这个户外露台自然地被引导到客厅和餐厅,在那里他们将享用食物和饮料。 集合完毕后,餐具会被杂物服务员从食品储藏室转移到下面的厨房进行清洗。 这种流程是我们在设计这座房子的第一步中所想象的。
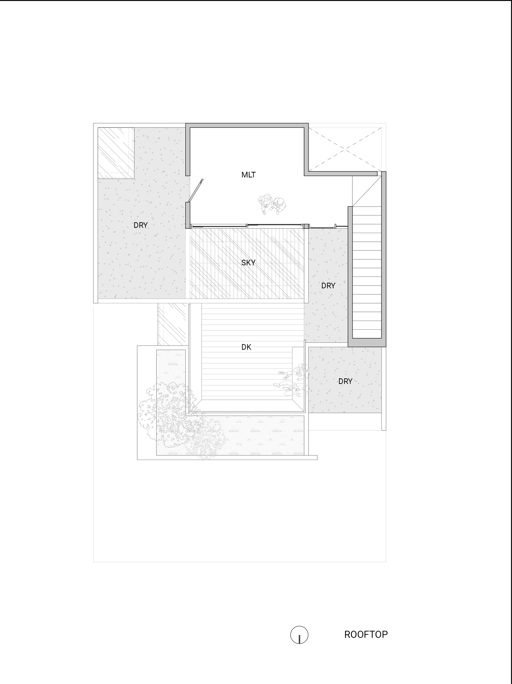
由于场地有限,从二楼到三楼的楼梯以及栏杆都设计得尽可能轻盈和透明,以保持房屋尽可能开放。 房子的前部层次分明,有花园和玻璃砖墙。 选择玻璃块材料是为了最大限度地提高这座房子外立面的隐私,因为对面的邻居非常接近,同时,为室内(大房间和楼梯的体量)带来了漫射的自然光。 这些相同的玻璃块也用在祈祷室的天花板上,营造出一种更加神圣的感觉,提升探索感,因为这是这座房子的主题。
项目设计:studiokian
项目面积: 300.2501349m²
项目年份:2023
项目摄影:Ernest Theofilus
供应商: Alexindo, Bottega Artisan, Daikin, Kana Floor, Kayuasri, Mulia Glassblock, SKK, Sors Furniture, Toto
首席建筑师:Kalvin Widjaja & Dian Indah
灯光顾问: PT Centralite Anugerah Indah
Interior 设计师: studiokian
Program / Use / Building Function: Private Residential
项目成市: West Jakarta
项目国家: Indonesia
设计师:studiokian
语言:英语
客服
消息
收藏
下载
最近



















