查看完整案例

收藏

下载
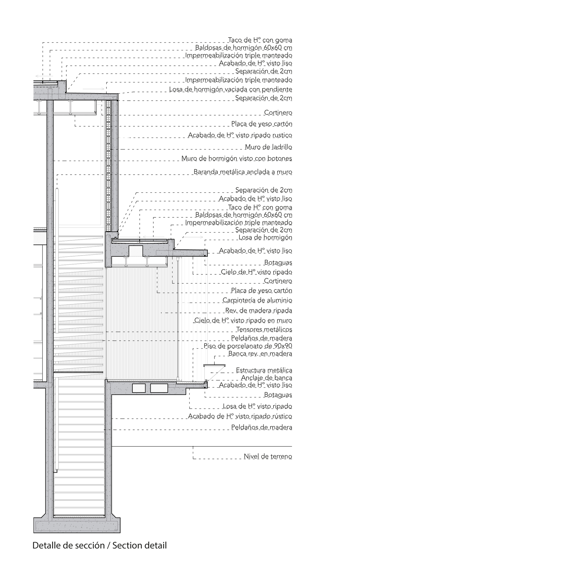
La Casa MS, ubicada en una urbanización cerrada en Porongo, Santa Cruz-Bolivia, se destaca por su juego volumétrico y claridad formal, donde el detalle constructivo cobra un papel fundamental en la imagen del proyecto. Con la madera y el vidrio estableciendo conexiones fluidas entre el interior-exterior, y el hormigón como material predominante, esta residencia encarna una síntesis armoniosa de geometría y funcionalidad.
El diseño se estructura en torno a un módulo que ordena la disposición tanto de la estructura como de los muros interiores, con una correlación meticulosa con la carpintería que unifica y da coherencia a la totalidad del proyecto. La casa se compone de dos volúmenes superpuestos, estratégicamente posicionados para generar un área de ingreso distintiva.
Situada en un terreno con desniveles y rodeada de vegetación, la casa se asienta en el punto más alto de la topografía, con volúmenes que se extienden en voladizo sobre el terreno, creando una conexión visual y espacial con su entorno. El diseño busca establecer un vínculo fluido entre los espacios interiores y exteriores, especialmente en el área social, donde la transición entre ambos es imperceptible.
En la planta baja, a nivel de calle, se concentra el programa público y social de la vivienda, mientras que en la planta alta se encuentran las habitaciones y el estar familiar. El nivel de subsuelo alberga las áreas de servicio y mantenimiento, permitiendo resolver el programa en tres niveles sin comprometer la simplicidad de los dos volúmenes principales.
El acceso principal conduce a una planta baja diseñada bajo el concepto de "planta libre", donde los diferentes espacios actuan como divisiones flexibles entre los distintos programas, fomentando la circulación libre sin sacrificar la intimidad. El recibidor, estratégicamente ubicado, conecta la churrasquera con el pasillo principal, que a su vez dirige hacia la cocina o el living-comedor.
En el segundo piso, el estar familiar y las habitaciones en suite ofrecen un ambiente de comodidad y privacidad, con la suite principal destacándose por su amplio vestidor. Desde la terraza accesible, se pueden apreciar vistas privilegiadas de la ciudad de Santa Cruz de la Sierra, enfatizando la conexión entre el interior y el entorno natural circundante.
En resumen, la Casa MS es un ejemplo sobresaliente de diseño arquitectónico que integra la geometría, el detalle constructivo y la fluidez espacial para crear un ambiente contemporáneo y funcional que armoniza con su entorno y satisface las necesidades de sus habitantes.
Arquitectos: Sommet
Año: 2022
Fotografías: Paul Renaud
Proveedores: Knauf, Ramon Soler, Aluvi, AutoDesk, Gladimar , Gree, Roca, VASA
Dirección De Diseño: Sebastián Fernández de Córdova, Mariano Donoso, Erika Peinado
Proyecto Ejecutivo: Sandra Molteni
Dirección De Obra: Arturo Chavez
Estructura: Fernando Aragón
Hidrosanitario: Federico Ferrufino
Eléctrico: Reynaldo Cabrera
Clima: Mainter
Programa: Arquitectura Residencial - Subsuelo: Lavandería, Dormitorio de servicio c/baño, Sala de máquinas/ Planta baja: Churrasquera bar c/baño, Sala de juegos, Dormitorio de visitas c/baño, Baño social, Estar social, Comedor, Cocina, Cocina de servicio, Cava, Taller, Garaje/ Planta alta: Dormitorio master c/ vestidor y baño, Dormitorio suite 1, Dormitorio suite 2, Estar familiar, Terraza accesible
Ciudad: Santa Cruz de la Sierra
Pais: Bolivia
设计师:Sommet
语言:西班牙语
客服
消息
收藏
下载
最近








































