查看完整案例

收藏

下载
La Casa FG está ubicada en un condominio en la ciudad de Bauru, en el interior del estado de São Paulo, con una superficie total de construcción de 586.2501349m² en un terreno de 1000.2501349m². Su orientación longitudinal fue elegida para proteger los ambientes del intenso calor proveniente del lado oeste.
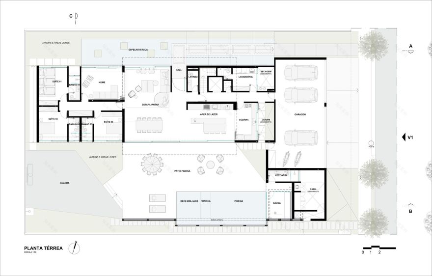
El programa fue concebido mediante la disposición de tres bloques alineados, donde el bloque central se eleva, proporcionando espacio para el desarrollo de otro ambiente entre los bloques de planta baja.
Los dos bloques de planta baja tienen programas bastante compactos. El primero, ubicado en la parte frontal, cerca de la calle, incluye el garaje, el área de servicio y el área de apoyo. Mientras tanto, el segundo abarca el área íntima y los dormitorios, ubicados en la parte trasera del terreno, garantizando la privacidad necesaria y también la integración con el jardín lateral que recorre toda la extensión de la casa.
El espacio creado entre estos dos bloques forma la sala de estar, comedor y área gourmet, que se convierte en una amplia terraza que mantiene los ambientes conectados, con grandes paneles de vidrio en ambos lados, permitiendo el acceso visual y físico a los dos jardines laterales: uno destinado al acceso a la casa y el otro orientado hacia el área de ocio y la piscina. El acceso principal se realiza a través de un
conjunto de escalones laterales que flotan sobre un espejo de agua, siguiendo una pared verde desde la calle hasta la puerta de la residencia.
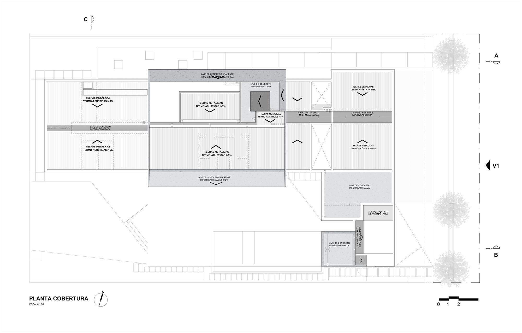
El tercer bloque, elevado y completamente hecho de concreto aparente, presenta brises de concreto en la fachada principal y brises de aluminio en la fachada lateral. Está destinado a la suite principal, con un amplio vestidor y un baño que ofrecen vistas a la piscina y al área de ocio de planta baja.
Arquitectos: Caracho Arquitetos
Área: 586.2501349m²
Fotografías: Daniel Santo
Proveedores: Deca, Docol, Elettromec, Tramontina, kitchens
Arquitecto A Cargo: Marcos Caracho, Daniela Bornia, Rodrigo Berbel, Alan Costa, Rafael Montanher, Leonardo Rodrigues, Eduardo Ferreira, Fernanda de Moraes, Thiago Conti
Proyecto Estructural: Construfic Construtora
Programa: Cochera; Perrera; El secado; Lavadero; Cocina; Sala; Sala de estar; Baño; Comedor; Gastrónomo; Despensa; Vestuario; Cuarto de vapor; Cuarto de televisión; Armario; Suite 1; Suite 2; Suite 3, Master Suite, Armario; Piscina; Cubierta de la piscina
Ciudad: Bauru
Pais: Brasil
设计师:Caracho Arquitetos
语言:西班牙语
客服
消息
收藏
下载
最近


























