查看完整案例

收藏

下载
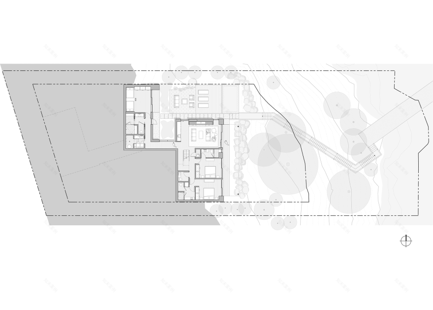
The Lake Tahoe Cabins is comprised of three discrete structures that traverse the rugged and complex Crystal Bay shoreline. Each cabin is strategically arranged around the site’s elemental intricacies with distinct connections to the Tahoe landscape and lakefront below.
The individual structures are linked by a glazed bridge whose footprint kinks precisely around a mass of pre-historic Sierra granite. The unique arrangement of cabins creates recreational alcoves before approaching the lake.
On the second level, the great room and kitchen expand the entire east-facing facade. Adjacent, snuggled against the hillside, an intimate deck and lawn offer refuge from the cabin’s expansive entertainment area.
On the lake-facing side, the great room spills into an equally grand balcony with breathtaking views. At the lowest level, a fire pit, oversized hot tub and staircase lead to a pier that extends beyond the water’s edge.
项目设计:RO | ROCKETT DESIGN
项目面积: 5500 ft²
项目年份:2023
项目摄影:Adam Rouse Photography
供应商: Blu Bathworks, Panoramah Windows, Texston Lime Plaster, WASCO Skylights
首席建筑师:Zac Rockett, Jason Ro, David Kornmeyer, Andrew Alexander Green, Anthony Giannini
总承包商:SierraCon
结构工程:CFBR Structural Group
土木工程:Tieslau Civil Engineering
Geotechnical Engineer:Reno Tahoe Geo Associates
机电工程:Melas Energy Engineering
Landscape Architect: Design Workshop
项目成市: Incline Village-Crystal Bay
项目国家: United States
设计师:RO | ROCKETT DESIGN
语言:英语
客服
消息
收藏
下载
最近


























