查看完整案例

收藏

下载
背景和场地:山林中的公社老茶厂
项目位于广州市黄埔区长岭街道岭头村。1950 年代,国营岭头农场曾是广州地区著名的茶叶产地,见证了上个世纪广州地区农业的辉煌。至今,岭头村还保留有大片茶山,且仍然出产茶叶。2021 年前后,随着国家乡村振兴战略在广州地区的推进,岭头红茶被重新挖掘出来,地方政府也投入了大量的人力物力,希望重新振兴这个地方茶产业。随着岭头茶产业发展,岭头村红茶的名字也更名为《黄埔红》。本项目正是在这个大的背景下开始的。
为了更好的发展《黄埔红》这个地方品牌,业主决定在茶山附近规划建设一个红茶创意园,既可以宣传本地茶叶品牌,又能吸引高端人才参与茶产业的后续研发。
▽树木掩映下的研究中心© 金伟琦
项目场地位于岭头村所在的鸡啼山山顶,距离茶山约 300 米距离。场地上有曾经的公社老茶厂和一个农家乐餐厅。老茶厂闲置了一段时间,在项目开始之前曾作为小工厂使用。农家乐由本地居民经营,建筑简陋,但口味不错,吸引了周边很多居民来就餐。此外,场地环境幽静,植被茂密,树木种类多为地方品种,如龙眼、荔枝、棕榈、桉树(用于造纸)等。
▽红茶创意园和不远处的茶园© 金伟琦
▽建筑位于鸡啼山顶© 金伟琦
▽鸟瞰© 金伟琦
业态设置:复合功能满足多种人群的需要
项目的功能业态设置既源于黄埔红茶产业的需求,也和场地所在地——岭头村的乡村振兴发展有关。从茶产业角度出发,红茶创意园的功能不仅应该包括地方红茶文化的展示,相关产品的品鉴和销售,也需要让参观者亲身体验红茶生产的过程。因此,展厅、生产车间、茶品鉴和销售空间是必不可少的。
▽研究中心和茶文化展厅© 金伟琦
从大环境出发,岭头村位于黄埔区的核心区域,距离广州大力发展的科学城、未来城约几公里;此外,鸡啼山有黄埔区内唯一的山林,环境幽静很适合周末休闲度假。所以在规划中,岭头村已经纳入到城中村旧改的范围内,除了兴建新住宅社区提升本地村民的居住条件外,也计划新增一些休闲服务、产业研发设施,从而吸引城市高端人才的到访和入住。因此,红茶创意园的业态还需要包涵:新产品研发、文创设计,及乡村旅游相关配套设施等。▽从草坪看研究中心和茶文化展厅© 金伟琦
设计策略:尊重环境和历史前提下的重构。
老茶厂和高大乔木是重要的场地元素,也是设计策略的主要依据。前者代表了岭头红茶的历史,也是在此处兴建红茶创意园的缘起之一;后者是场地中重要的景观元素,需要遵循广州市保护古树的相关规定。老茶厂位于场地的北侧,由几栋单层的厂房组成。厂房大约建于 1960-70 年代,砌体机构,屋顶部分结构为木架。因为年久失修,厂房的情况已经无法继续使用,经过和结构工程师的讨论,最终决定拆除。但新的红茶生产车间(主要作为参观体验使用)会在原厂房的位置上兴建,且基本保持原有厂房的空间格局。这样的处理既保证了安全和舒适度,又与历史连贯。
▽从草坪看宴会厅和茶艺体验中心© 金伟琦
场地中较大的乔木将被完整的保留,新建筑避让这些树木布置。但这种避让并不是消极的,正相反,设计巧妙利用了这些树木形成了新建筑群的景观环境。如:场地西南区域因为有较集中的树木,原有的农家乐餐厅被拆除后,并没有在这个区域规划建筑,场地被腾空,作为创意园入口处的绿地。平整的草地和高大的乔木成为建筑的前景,在改善环境的同时,丰富了空间的视觉层次。再如场地北侧的桉树林也把保留下来,细高的桉树呈线性布置,如同一道建筑背后的屏风,很好的衬托了新建筑的体量和天际线关系。▽场地中的高大乔木被保留© 金伟琦
空间布局:依序生产和使用逻辑
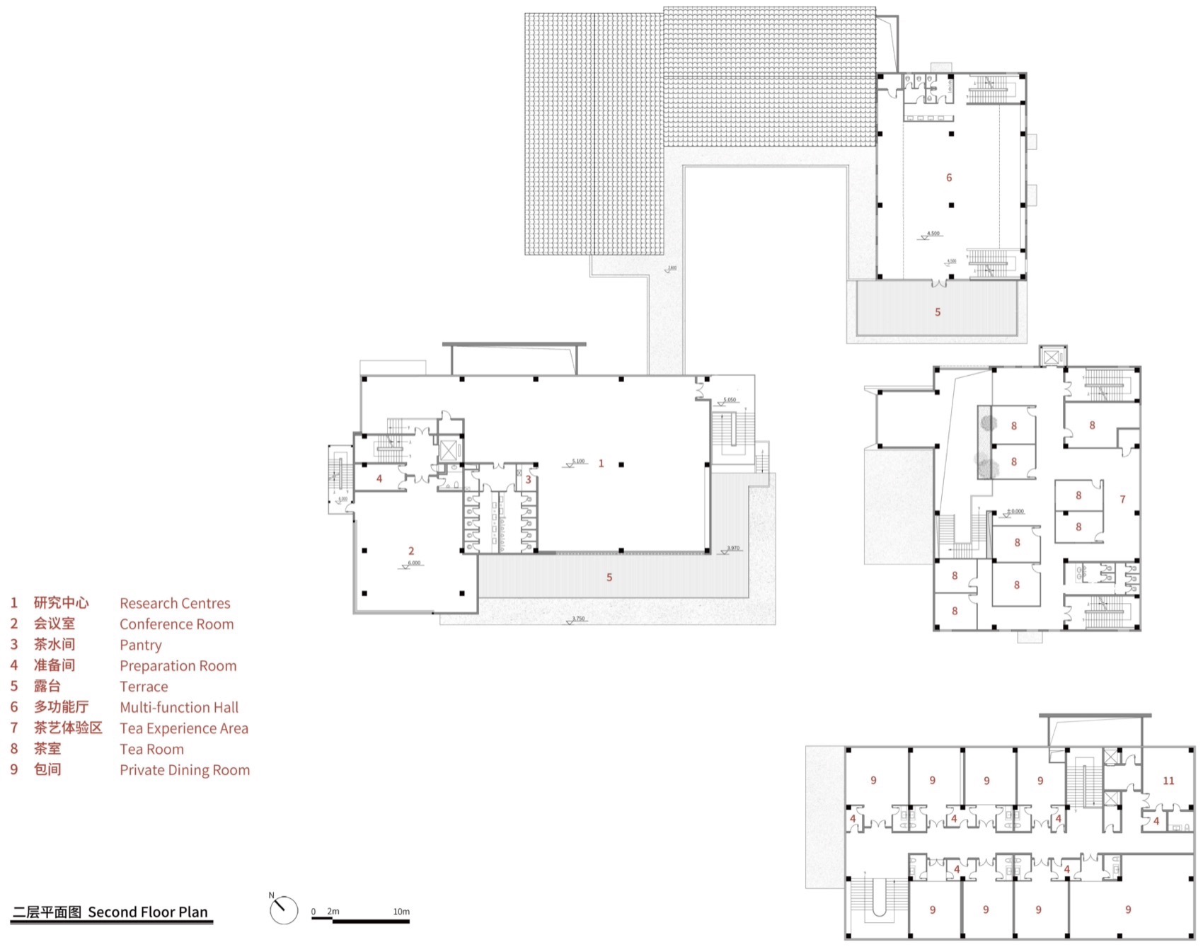
创意园的空间布局整体呈 Q 字形,由一个相对完整的合院,加一栋独立的建筑组成。布局的源点是场地中原有厂房,为了和历史有所关联,新的红茶车间选择在原址上兴建。车间平面呈扁 U 字形,对应了红茶制作工艺,这奠定了创意园空间格局的基本结构。
▽创意园建筑群高低错落© 金伟琦
▽创意园根据地形建设© 金伟琦
车间的西南方向延伸出茶文化展厅和研发中心。这两者被安置在一个建筑中,展厅位于一层;二、三层为红茶产业的研发和办公区域。展厅和研发中心分别有独立的入口,可以满足不同人群的独立使用诉求。
车间和展厅之间,现场的一颗大树被很好的保护下来,建筑师刻意将车间和展厅分开,利用建筑的外墙围合保留树木,使之成为创意园西北面次入口区域最为重要的空间元素。
车间的东南方向是茶体验中心,包括:茶品展示和体验区。参观者可以在此品尝当地红茶及相关产品,并参与 DIY 制作。
▽宴会厅© 金伟琦
▽U 字形生产中心围合了一个庭院© 金伟琦
在空间上,茶文化展厅、车间和体验中心,三者一起构成了合院的格局。这个格局也对应了参观体验的流线,即:从茶文化展示开始,经过制茶的过程,最后到茶及相关产品的品鉴和 DIY 制作结束。▽从西北方向的次入口看庭院© 金伟琦
▽西北方向的次入口© 金伟琦
在品鉴区的南侧,是新建的宴会厅。这是一栋地上 2 层,地下 1 层的建筑。一层的大厅散座和二层的包间可以让超过百人一起就餐,满足了到访者的餐饮诉求,也为茶创意园提供了服务性业态补充。▽被保留下来的树木成为次入口中心景观© 金伟琦
建筑表达:平静而多层次
建筑师并不希望创意园的建筑过于浮华,低调和平静是新建筑的主基调。建筑外立面的主要材料是红砖(面砖)、木格栅和玻璃。大面积的玻璃加强了建筑内外的联系,而红砖和木格栅以一种怡人的尺度让建筑更具温度感。为了缓解外立面平静造成的刻板感,在个别位置上,建筑师给予了特殊的处理。如体验中心的入口位置,略显夸张的异形入口配以黑色钢板材料,在建筑群中尤为突出。
▽生产中心外侧设有廊道© 金伟琦
▽以游廊串联多个建筑© 金伟琦
此外,建筑师希望建筑在水平和垂直两个维度都具有丰富的层次和渗透性。在水平维度上,建筑师在生产中心车间与内院中间设计了一圈围廊,增加了空间在水平方向的层次,让建筑与内院之间的边界更具渗透性。同时,这个设计也能更好的组织展厅、车间和体验中心之间的交通,参观者可以不进入车间,只在围廊中观看制茶的过程。▽茶艺体验中心入口© 金伟琦
▽多功能厅外侧室外平台© 金伟琦
在垂直维度上,建筑不同的层数和高度既是对内部功能的回应,也让整个园区的天际线更有节奏感。大部分建筑采用双坡顶设计,这既回应了岭南地区多雨的气候,也和乡村环境相互协调。同时,坡顶的设计也让建筑的外轮廓更具起伏,总体气质更活跃。在主体建筑使用坡屋顶的同时,串联建筑的廊道采用平顶的处理,部分廊道在二层被局部加大,演化为屋顶平台,既为二层建筑提供了户外活动场地,又增加了空间上的变化。▽红砖、格栅和玻璃是建筑的主要外立面材料© 金伟琦
▽连接宴会厅和体验中心的廊道© 金伟琦
照明也依循平静优雅的原则,立面大玻璃的部分使用内透光的方式,实墙部分利用射灯照亮地面,并反射到墙体上。灯光的色温以暖白光为主,进一步烘托了红砖和格栅的质感。▽建筑与树木相互掩映© 金伟琦
小结
作为广州黄埔区乡村振兴项目的重要组成部分,黄埔红岭头红茶创意园不仅仅是一种空间的生产,它同时肩负着品牌塑造、文化生产,及城村联动的重要使命。在此,建筑只是一个开始。建筑师的任务不是打造一个网红之地,而是为后续的生产、研发、交流等行为提供一个舒适的场所。相信这个曾经辉煌的岭南茶品牌会在它的新家中迎来新的传奇。
▽夜览© 金伟琦
▽总平面图© 三文建筑
▽首层平面图© 三文建筑
▽二层平面图© 三文建筑
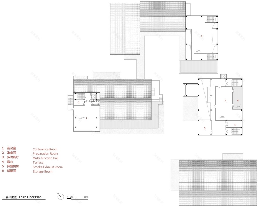
▽三层平面图© 三文建筑
▽剖面图© 三文建筑
项目名称:黄埔红岭头红茶创意园
项目地点:广东省广州市黄埔区岭头村
业主:广州市岭头投资有限公司
建筑设计:三文建筑
主创建筑师:何崴、陈龙
团队成员:王梓亦、王东升、唐静、崔佳伟、崔翔、胡祎伟、孟祥婷、刘泳、朱艳明、万月箫、赵旖烁
施工图设计:科建设计(广州)有限公司
用地面积:4500.2501349㎡
总建筑面积:7250.2501349㎡
设计时间:2021-2022 年
完工时间:2023 年 8 月
摄影:金伟琦(澳门科技大学人文艺术学院)
客服
消息
收藏
下载
最近



































