查看完整案例

收藏

下载
W-Mission 是韩国最优质的纺织品制造商之一。他们的新总部位于首尔圣水洞,以用传统红砖建造的制鞋厂而闻名。这个重生的地区已成为韩国首都充满活力的艺术、文化和设计城市地标。
这项设计的委托源自三个最能代表客户精神特征的主要存在概念:神圣、庇护和社区。它的灵感来自我们客户出生地的海浪和纺织品的材料特性,例如轻盈、编织图案、起伏和封闭以及公开。建筑特色增强了灵性的感觉;最主要的是将传统的哥特式高拱形立面从内部(大教堂)反转到外部城市街道。
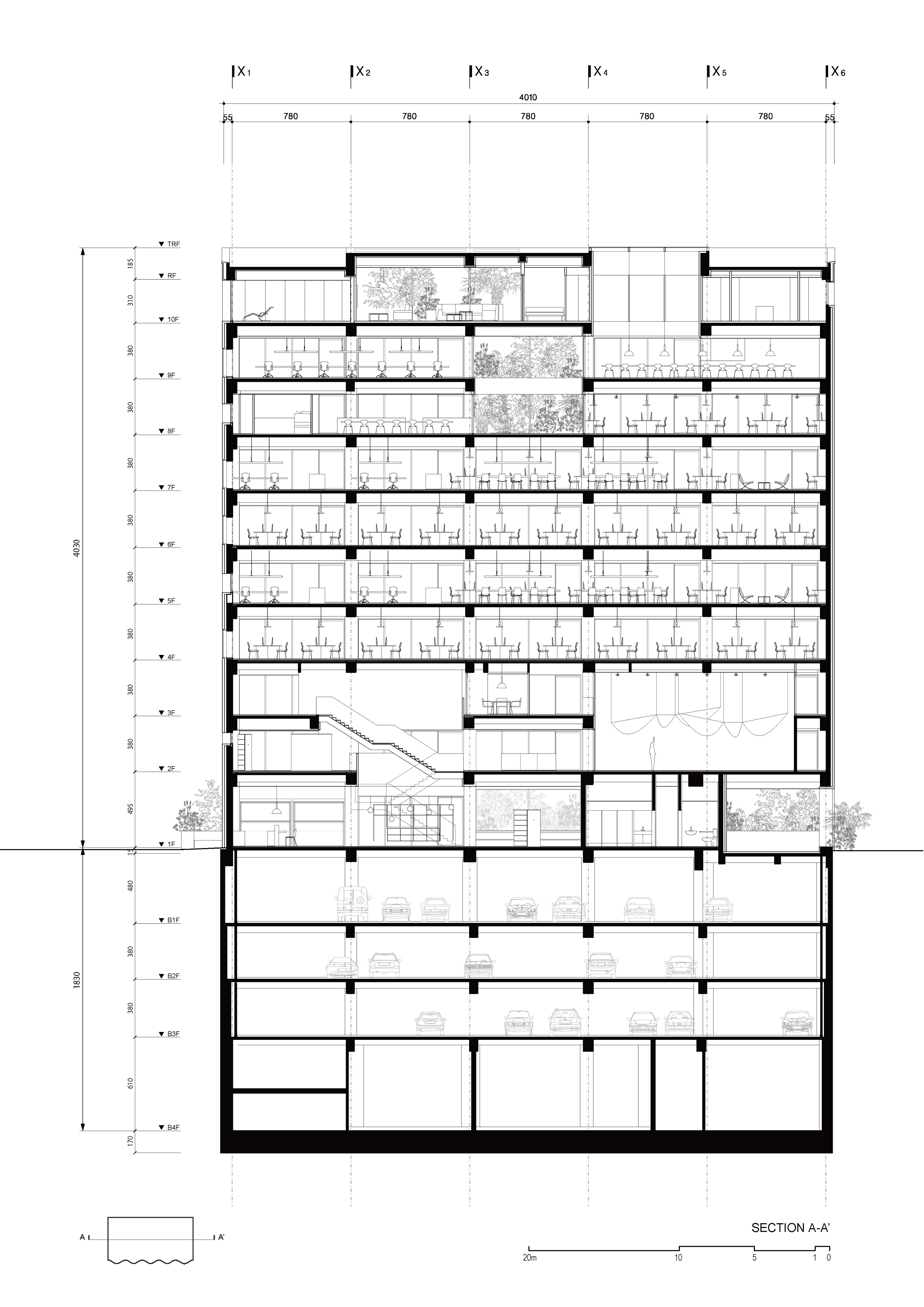
在 Textilverband 行政大楼的设计过程中研究了石雕中布料的再现,这一直代表着一个迷人的悖论。在这种情况下,传统的砖砌系统提供了强大的描绘和适应所需曲线的能力。砖砌建筑在首尔有着悠久的历史传统。在这种情况下采用的解决方案是使用砖块的字面“幕墙”系统,连接到“现场”浇铸的混凝土墙上,作为构建曲线的指导。借助数字计算工具,我们可以设计出一种相当简单的算法来创建升向天空的预期波浪效果。砖高 520 层,每 24 层增加一块新砖,以实现所需的曲线增长。波浪幅度从三楼的 0 到屋顶线的 170 厘米不等。
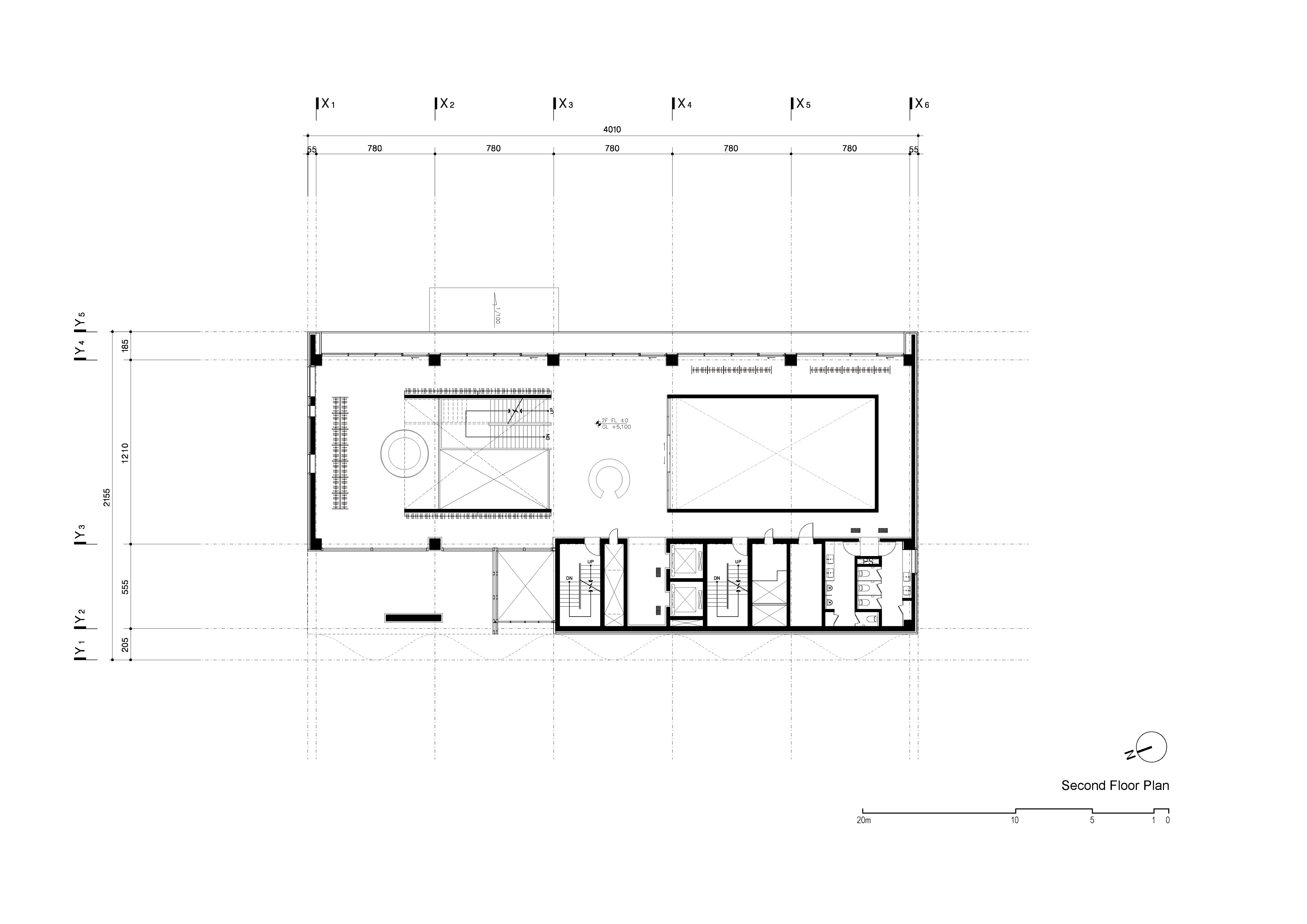
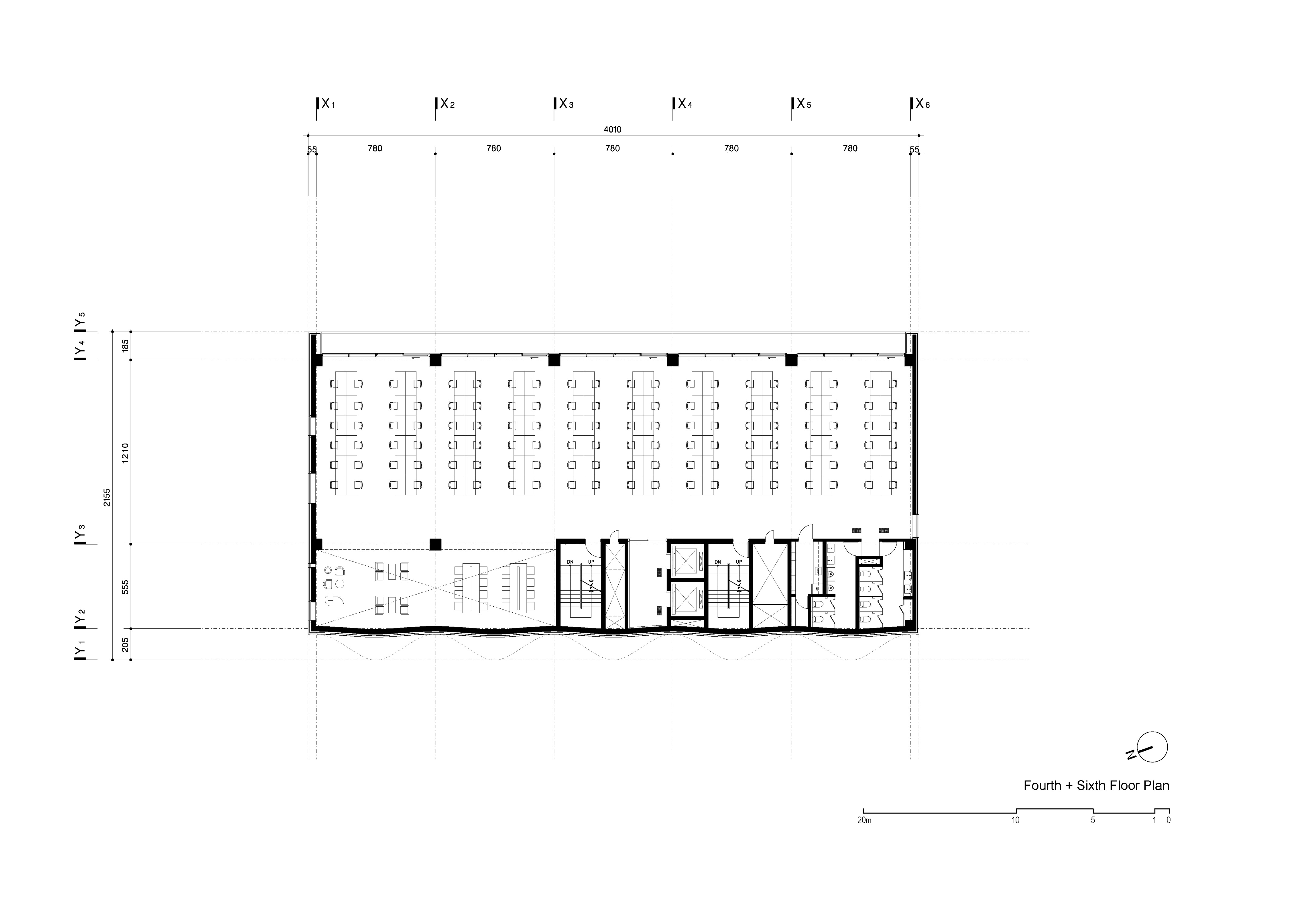
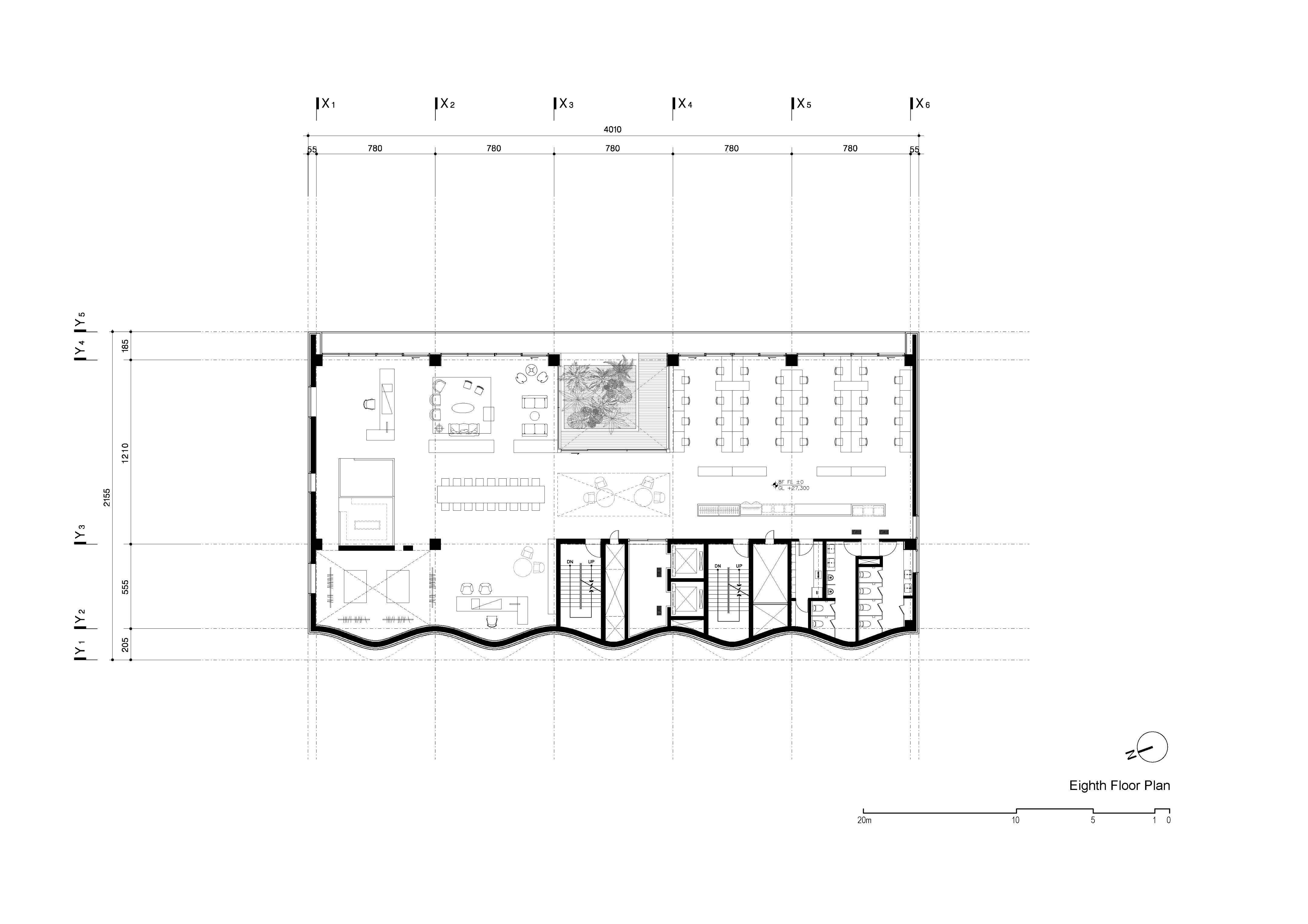
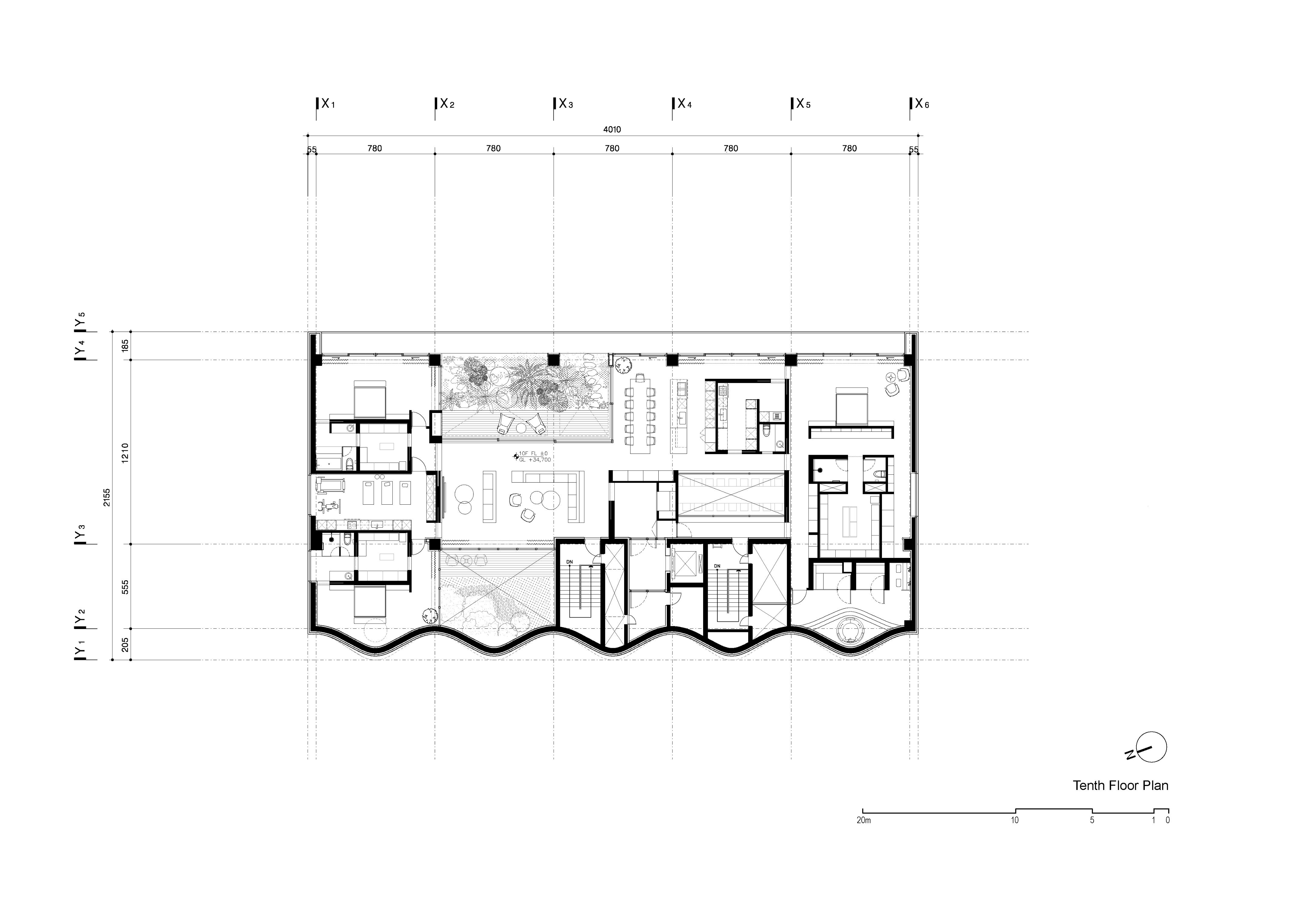
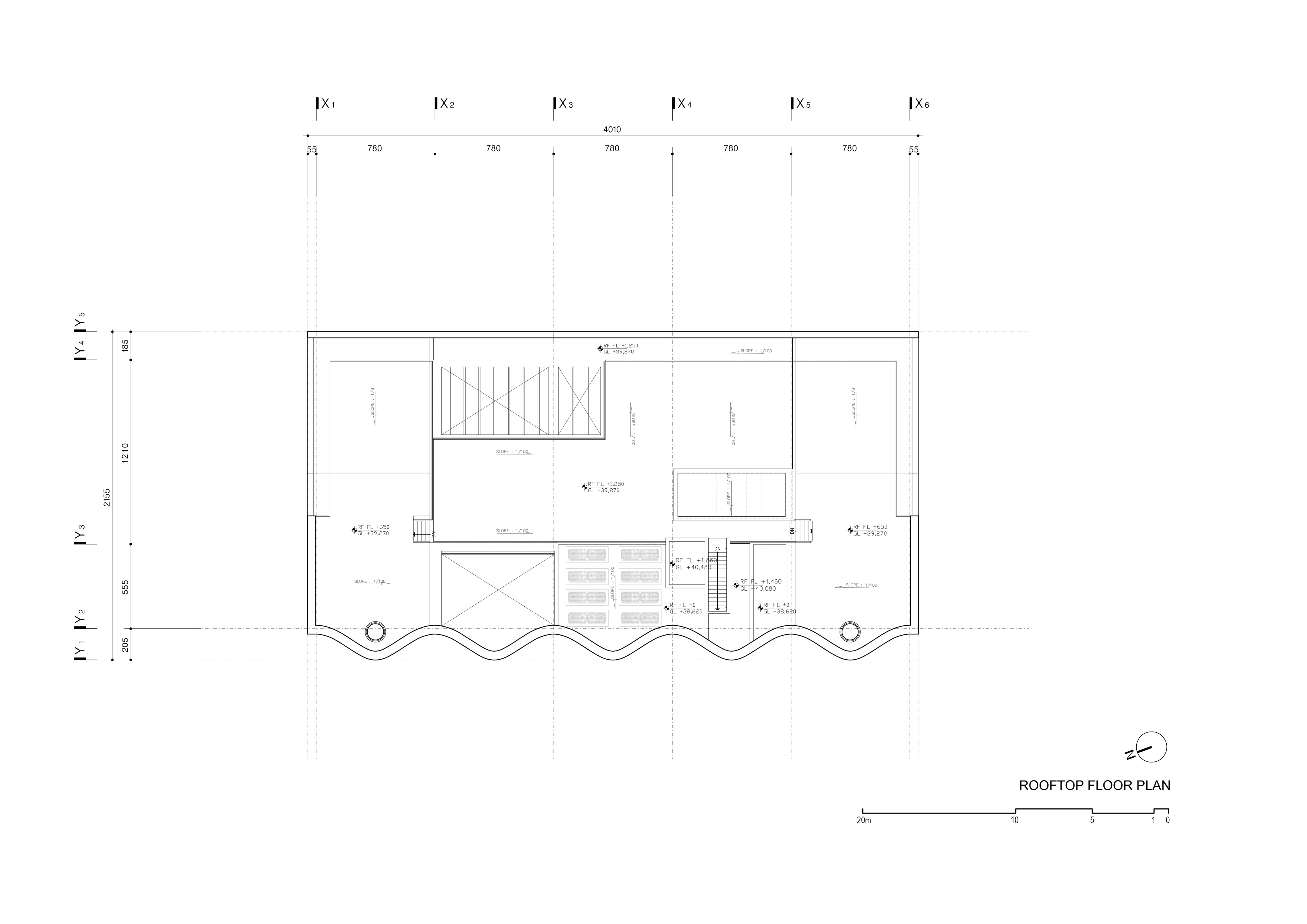
平面与结构图:
设计师:Behet Bondzio Lin Architekten
坐落:Seoul / South Korea / 2024
语言:English
客服
消息
收藏
下载
最近








































