查看完整案例

收藏

下载
Mova 是由麦德林市教育部推动的一个平台,旨在通过全面加强教师培训来提高公共教育的质量。它被构思为教师社群的聚会场所、培训基地和发展中心。它是包括公共和私有实体以及教育社区在内的跨专业合作设计成果。设计策略采取由支柱支撑、通过桥梁连接的独立体量,模糊了室内外的界限,享受气候与景观,同时重新利用了城市现有的停车场空间。引入新植被是塑造空间的重要一环,营造了城市生态结构中的一个重要节点。▽建筑概览© Isaac Ramirez – Sergio Gómez
▽建筑保留了原有的停车场©Isaac Ramirez – Sergio Gómez
在开发这样一座其规划和功能在教育建筑中没有先例的建筑时,建筑师受邀加入一个为创新中心开发教学内容和教育体验的跨学科团队,将两者间的对话转化为可以使用的空间。该设计是教师、公共和私营机构、社会和专业组织合作的成果。▽立面©Isaac Ramirez – Sergio Gómez
在设计过程中,建筑师与教师一同采取行动,通过 Mova 夏令营、专项研讨会、Mova Mobile 等活动来宣传和激活新的教学模式。这些活动围绕项目展开叙述,作为空间实际建设的铺垫。▽屋顶花园©Isaac Ramirez – Sergio Gómez
▽大阶梯©Isaac Ramirez – Sergio Gómez
▽栈桥©Isaac Ramirez – Sergio Gómez
Mova 是麦德林创新发展区的一部分,是一个占地 160 公顷的城市改造空间,重点关注科学技术和新型知识企业的发展。在这一背景下,促进了安蒂奥基亚大学、Parque Explora 科学博物馆、RutaN 以及 Parque Norte 会展中心等团体之间的活动组织互动,寻求巩固教育和文化环境。此外,连接麦德林河的 Jardin 植物园、哥伦比亚国立大学和安蒂奥基亚大学的校园,以及 Cerro el Volador 自然公园被置入在一个策略性生态节点内,通过景观和植被设计策略,采取协同行动。▽轴测©OPUS
▽阶梯露天剧场©Isaac Ramirez – Sergio Gómez
▽阶梯©Isaac Ramirez – Sergio Gómez
▽公共空间©Isaac Ramirez – Sergio Gómez
在现有停车场的上方,建造了一座由支柱支撑的建筑,分散的体量通过栈桥连接,形成了庭院以及空隙,树木得以在其中生长。该方案重新诠释了安蒂奥基亚大学校园的空间逻辑,力求通过形式实现五个目标:
1. 激活以前仅用作停车场的城市专用空间。
2. 为街区提供新的活动场所(咖啡馆和礼堂),为公共空间注入活力。
3. 为 Parque Norte 公园和 Aburrá山谷提供景观框架。
4. 通过门槛、格栅、栈桥和露台,模糊室内外的界限。
5. 将建筑和植被整合进同一空间系统。
▽室内中庭©Isaac Ramirez – Sergio Gómez
▽室内中庭概览©Isaac Ramirez – Sergio Gómez
▽图书室©Isaac Ramirez – Sergio Gómez
得益于精良的设计和施工,该建筑获得了 LEED 认证,达到了黄金标准。▽效果图概览©OPUS
▽效果图© OPUS
▽总平面图© OPUS
▽一层平面图© OPUS
▽二层平面图© OPUS
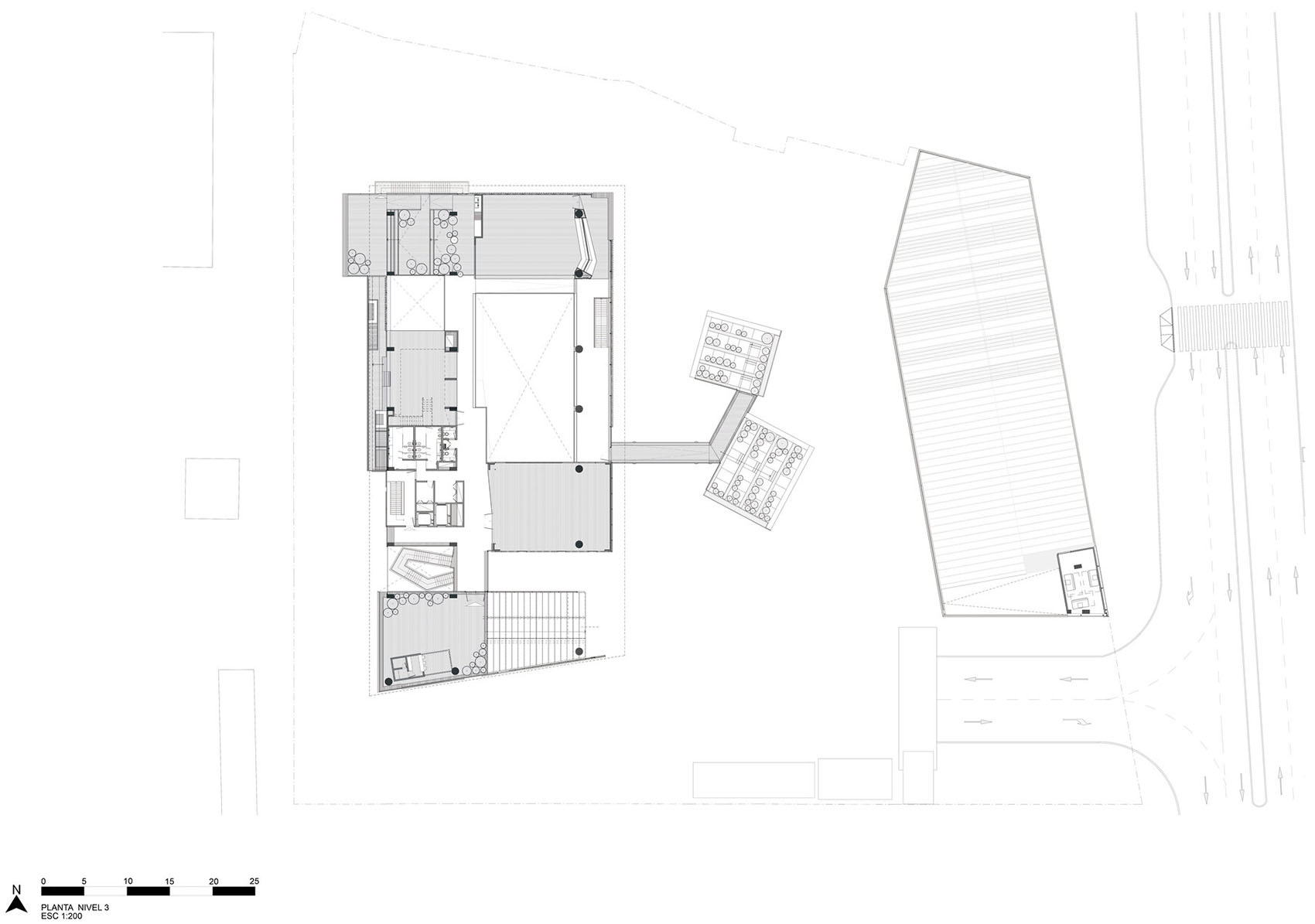
▽三层平面图© OPUS
▽立面图© OPUS
▽剖面图© OPUS
▽细部大样图© OPUS
Project Name: MOVA Centro de Innovación del Maestro
Design Firm: opus, diseño. arquitectura. paisaje.
Office Location: Medellín – Colombia
Year of Construction Completion: 2018
Built Area: 7000m2
Location: Medellín – Colombia
Architects in charge:
Project Manager:
Arq. Manuel José Jaén Posada
Arq. Carlos Andrés Betancur Cifuentes
Arq. Carlos David Montoya Valencia
Architectural Coordination:
Arq. Juan Sebastián Restrepo Aguirre
Team:
Arq. Juliana Isaza Romero
Arq. Eugenia Zoubtchenko
Arq. Germán Tamayo
Arq. Daniel Miranda Muñoz
Arq. Mateo Marín Mejía
Arq. Natalia Mena Parra
Arq. Carlos Alberto Cano Bedoya
Arq. Diana Castillo Naranjo
Arq. Catherine Pérez Cuartas
Est. Arq. Manuela Salazar Villegas
Est. Arq. Sara Olier Brome
Photography: Isaac Ramirez – Sergio Gómez
客服
消息
收藏
下载
最近





































































