查看完整案例

收藏

下载
东财工业园是深圳典型的城市工厂园区,行列、高效、同质、粗放、干燥。伴随着城市圈的扩大和城市工业向更远的城郊或其他城市转移,园区内的物业权属和产业类型在不断的更新中变得零散多样而复杂。坐落在这里的SMOORE总部在过去几年的改造中逐步形成了围合式主园区,对角线建筑改造的 7#8#楼被城市基础设施分隔在主园外。
界面
原状7#楼为五层配套宿舍,8#楼为四层工业厂房,总建筑面积5400.2501349㎡。建筑仅东面市政路与工业园区和城市相连,亦是唯一的城市展示面。两楼间狭缝宽4.5m,与市政路相连。
▽街道© 张超
改造后的7#8#楼将是SMOORE的实验和办公部门,研发的保密性促使建筑减少与外部环境接触,视线和动线形成隔离,成为独立、内向的个体。我们对界面进行重构,将7#8#楼连成整体,使外部边界转化为内部空间,使消极的狭缝转化为积极的共享中庭,对抗工业园区的散乱和嘈杂。
▽改造前7#楼建筑外立面和狭缝立面© 对角线建筑
▽改造前8#楼建筑外立面© 对角线建筑
▽改造后7#8#楼外立面© 王策
▽改造后7#8#楼外立面© 张超
建筑维持了外部空间的连续性,但试图打破高密度工业园区的均质感。三个不同朝向的开口与周边环境形成对话,主入口、中庭采光天窗和面向大树的楼梯间。
▽建筑西北立面© 对角线建筑
▽主入口© 王策
▽主入口© 王策
▽中庭© 王策
▽中庭©张超
从实墙生长出来的凸窗是传导外界信息的筒,声音、光线、雨水等在此交换。宽阔的窗台为室内向干燥的工业区过渡预留了厚度,是湿润的植物园、温暖的茶台、惬意的读书角。5°微微侧上倾斜的窗户阻隔了来自城市地面的视线干扰,在密集建筑群中向天空尽量捕捉阳光。
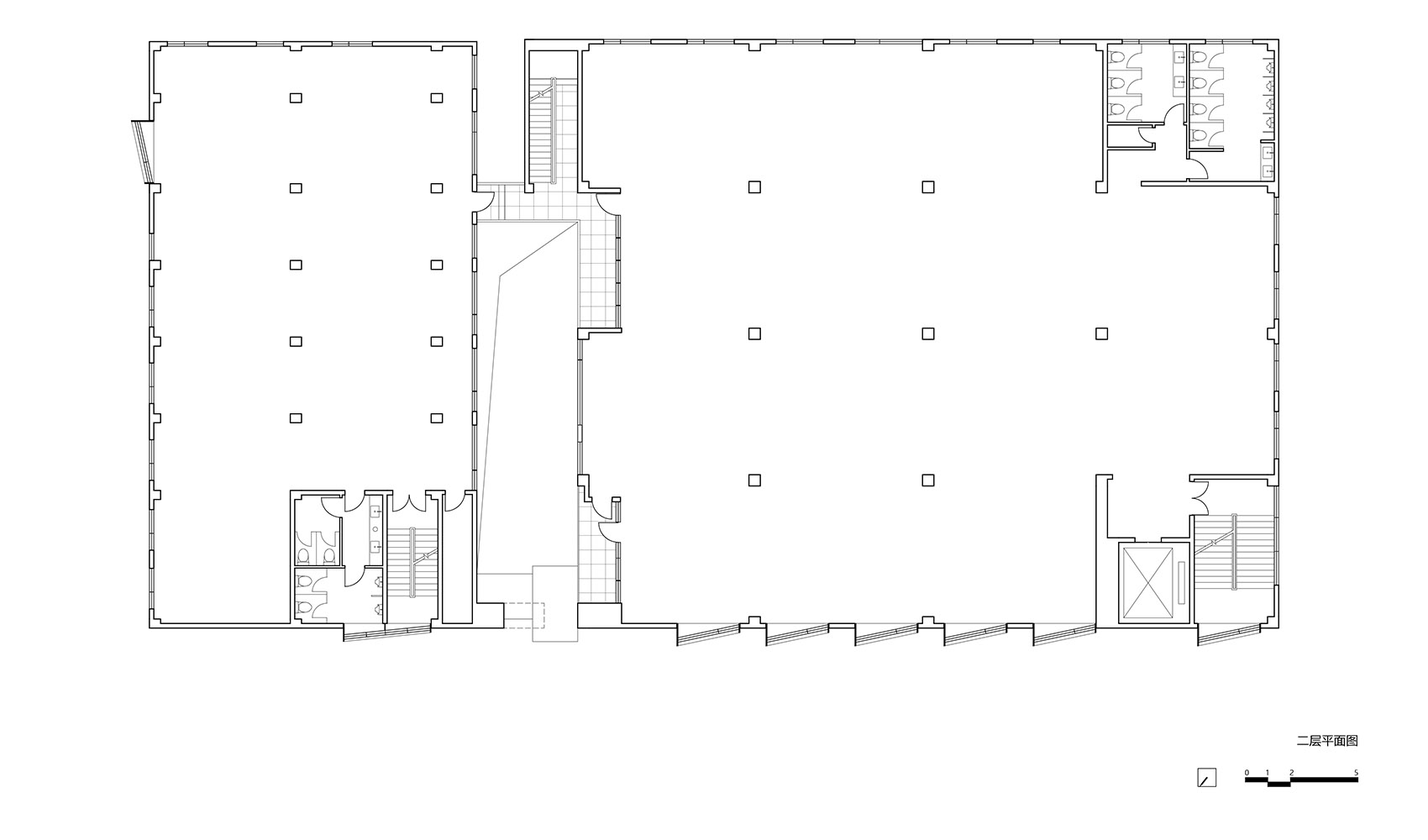
▽二层平面图© 对角线建筑
▽凸窗, convex window©张超
中庭
开放式天窗使中庭成为全天候风雨场所© 对角线建筑
▽中庭立面, atrium facade©张超
南边首层是实验室©张超
两栋楼在形态与空间上的拼接实现了管理上的必要,成为大园区之外的小园区,三角形的切口是街道上唯一的开口,不仅暗示了二者在功能上若即若离的联系,鲜明的色彩,更是与向上倾斜外窗一起呈现出建筑强烈的外向的内向性,摒除不必要的动作之后,建筑在这里似乎带有了一些表情。
▽模型© 对角线建筑
▽场地地图© 对角线建筑
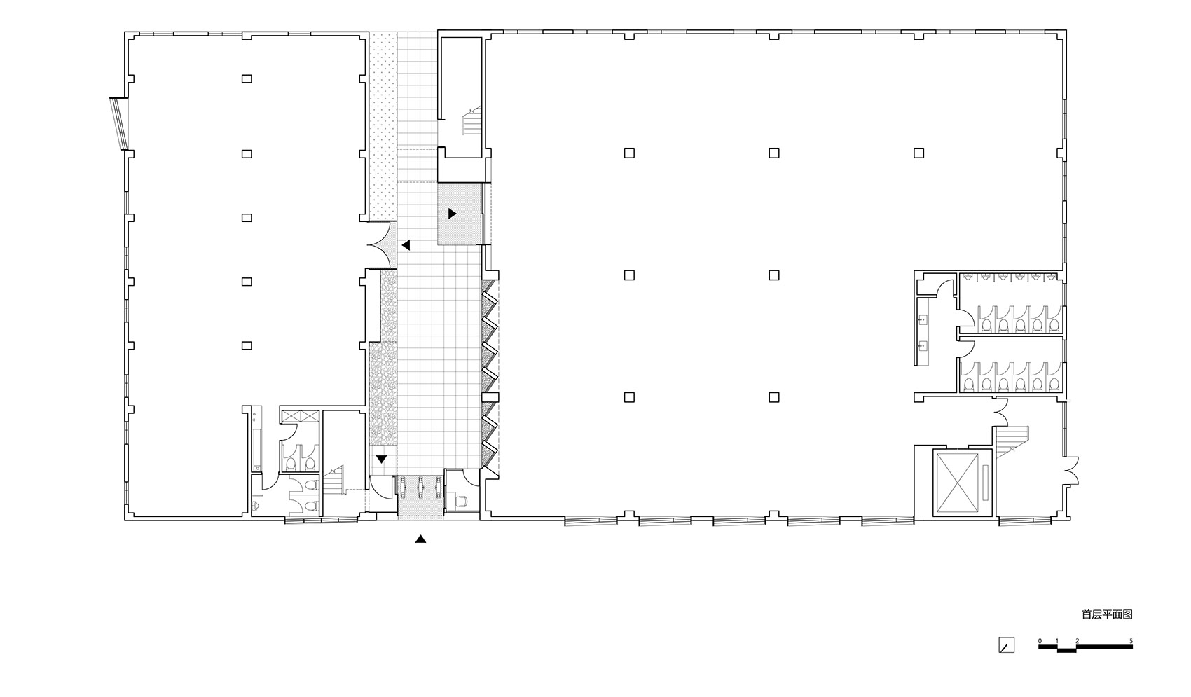
▽首层平面© 对角线建筑
▽二层平面© 对角线建筑
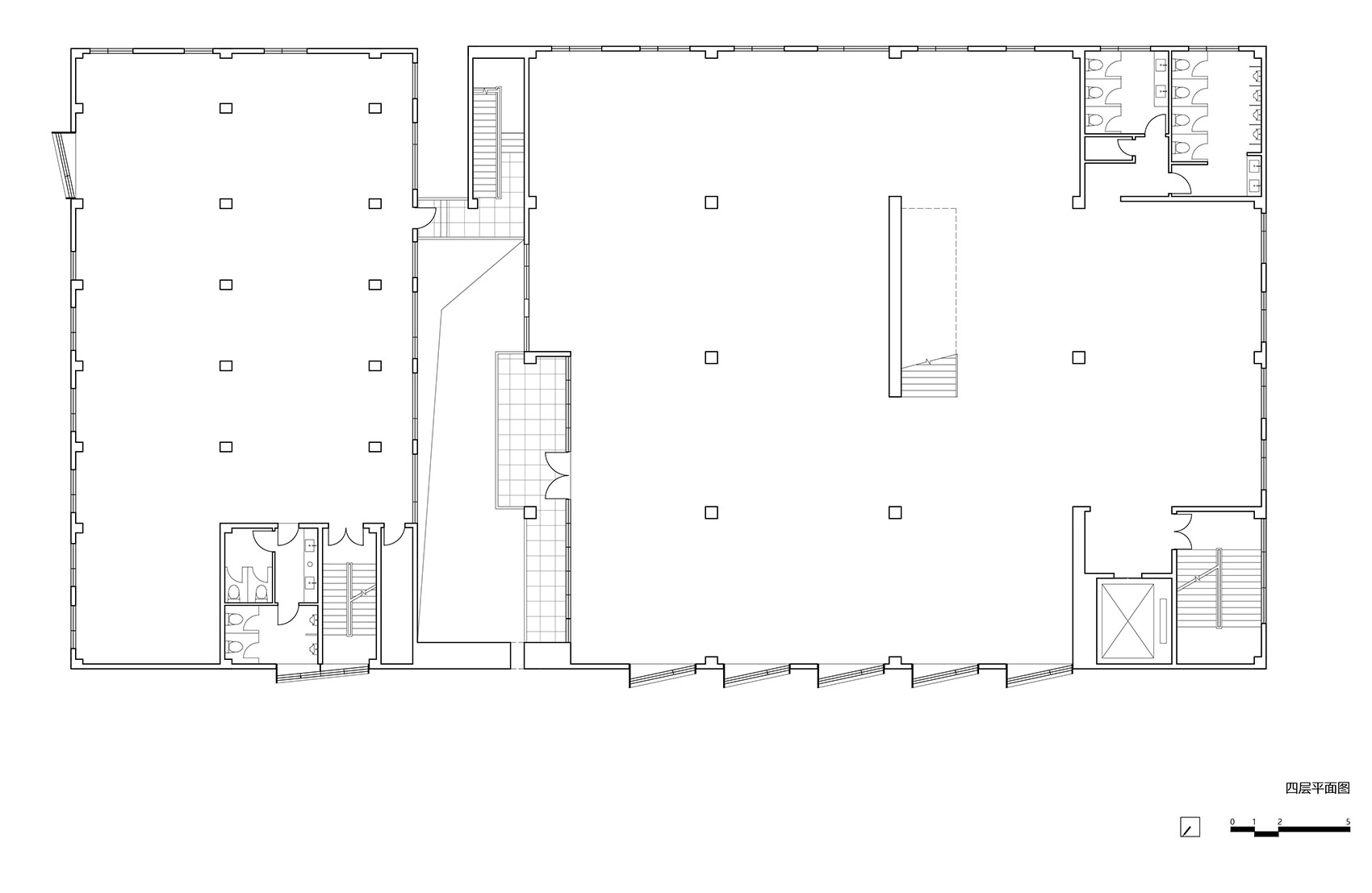
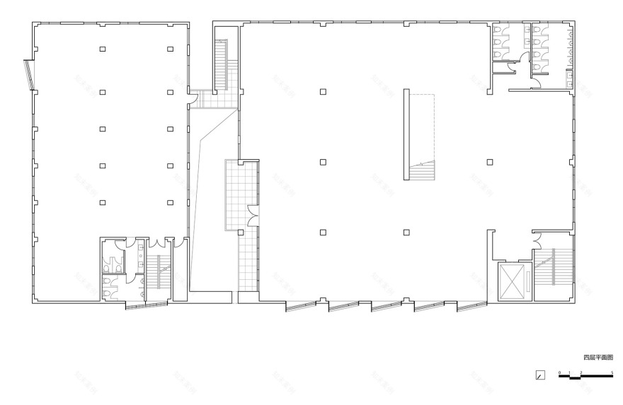
▽四层平面© 对角线建筑
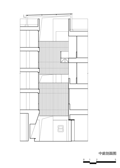
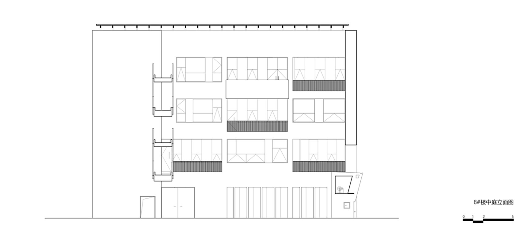
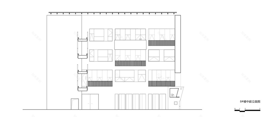
▽8#楼中庭立面图© 对角线建筑
项目名称:东财工业区7#8#楼改造
项目类型:改造
设计方:深圳对角线建筑设计有限公司
完成年份:2022年
主创设计师:何啟帆、印实博、崔一松
设计团队:粟荟、阮双
项目地址:深圳市宝安区西乡街道东财工业区
建筑面积:4113.2501349㎡
摄影版权:张超、王策
其他参与者:
幕墙:深圳市西格玛幕墙设计咨询有限公司
客服
消息
收藏
下载
最近




























