查看完整案例

收藏

下载
户庭无尘杂,虚室有余闲久在樊笼里,复得返自然
300.2501349㎡的白色房子伫立在湖边,为业主于喧嚣中寻得一抹静谧。
△项目视频
大量自然、原始质感的材料选择,呈现出了这套松弛、度假民宿感的作品。
白色真石漆让建筑焕发出自然的美感,斯卡帕风格的角窗,在家也能抬头看星星。
通往花园的水泥台阶纤薄、轻盈,将整体的建筑风格延续。
坐在咬合樟树的吧台、玻璃围栏的亲水观景平台,一杯清茶在手茶香袅袅,享受田园牧歌式生活。
日落之后,点燃篝火又是一种:“耕归饭后院中坐,闲看繁星风满怀”的感觉。
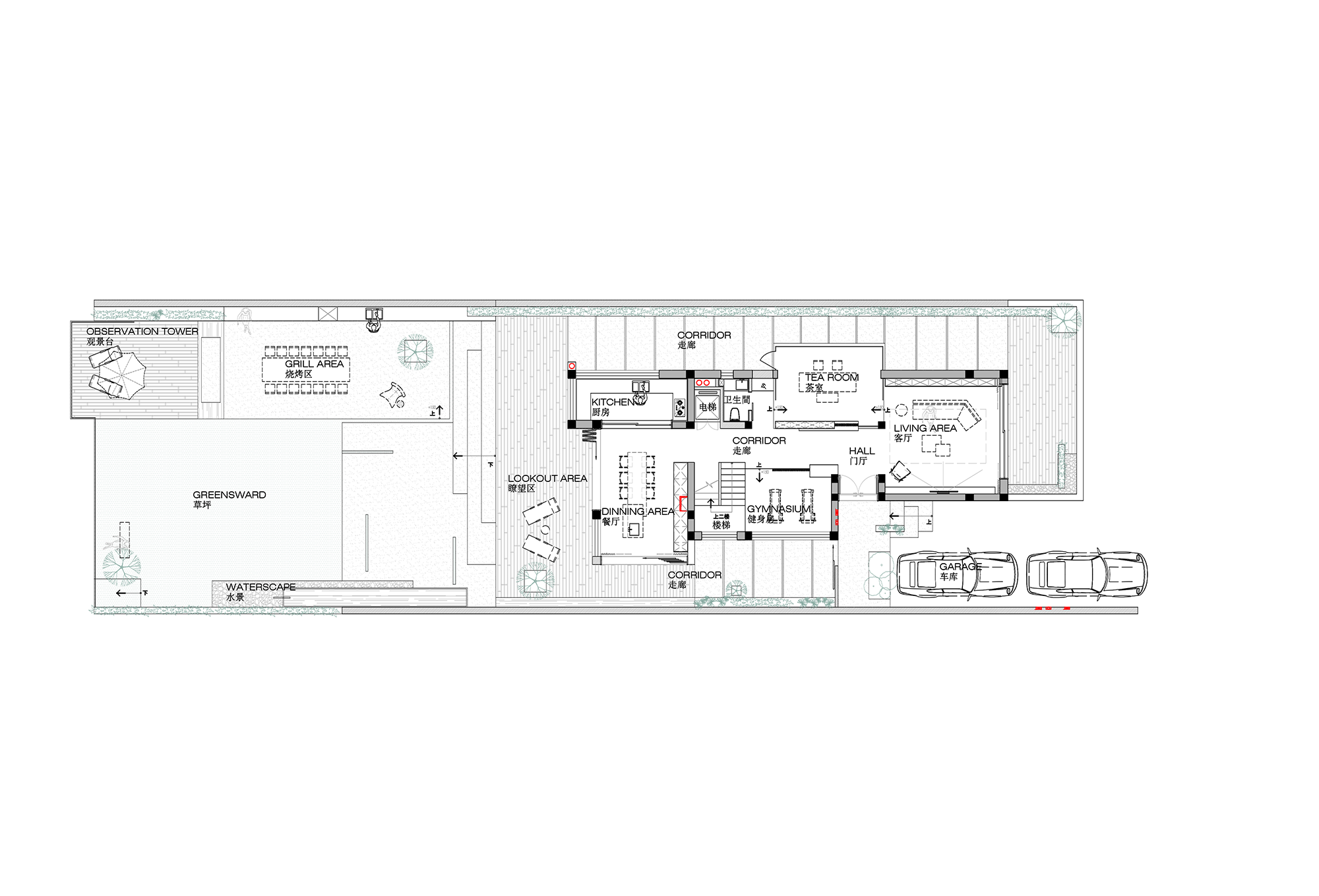
从院子进入室内就来到了餐厨区,L型的厨房与餐厅既分又合。
厨房大片横窗欣赏侧园绿植,这幅窗景三餐四季做饭都不腻。
地台围绕轻盈薄钢结构的楼梯,空间视觉层次更显丰富,微水泥的自然纹理带为楼梯来雕塑般的质感。
木色隔断的背后是开放式的茶室,地面整体抬高,木板全覆盖,质感温润。
茶室以极富有自然质感的茶桌为中心,放上蒲团、凳子,打造禅意空间。
“自在钩”悬挂茶炉煮茶,体验“竹炉汤沸火初红”的感觉。
向外凸出的落地窗模糊室内外的边界,将茶室好似与户外竹林融合在一起,营造园林氛围。
通透的杜邦纸隔断让茶室与客厅成为连贯的空间,同样也自带一种东方气息的朦胧美感。
一层公区的重点留给了茶室,相对之下的客厅则以简单为主。
但洞石材质的茶几和棉麻沙发,也都在无形之中延续着自然、素雅的氛围。
香樟树下的后院也染上了几分古韵,树影斑驳,清风拂面,心境也随之变得宁静而平和。
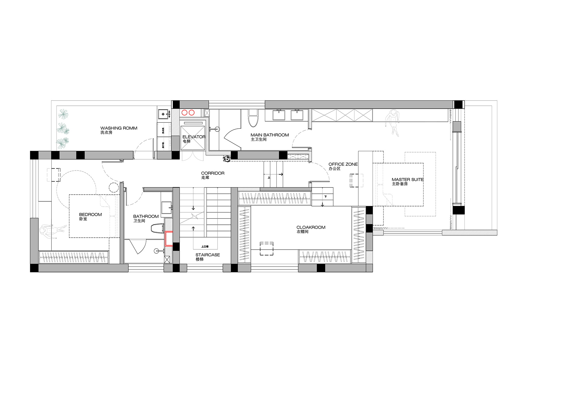
二层抬高地面的主卧充满仪式感,一步一阶地进入另一个身心放松的空间。
整面落地窗的树景拉近与自然的距离,让人心身得到彻底的放松与舒适。
床头不靠墙打造面向窗景的书桌,玻璃围栏让衣帽间与卧室更有整体感。
次卧的地台床更是松弛感拉满,无床架的设计实现真正的“躺平”。
更美的湖景书桌,仿佛置身于大自然的怀抱。
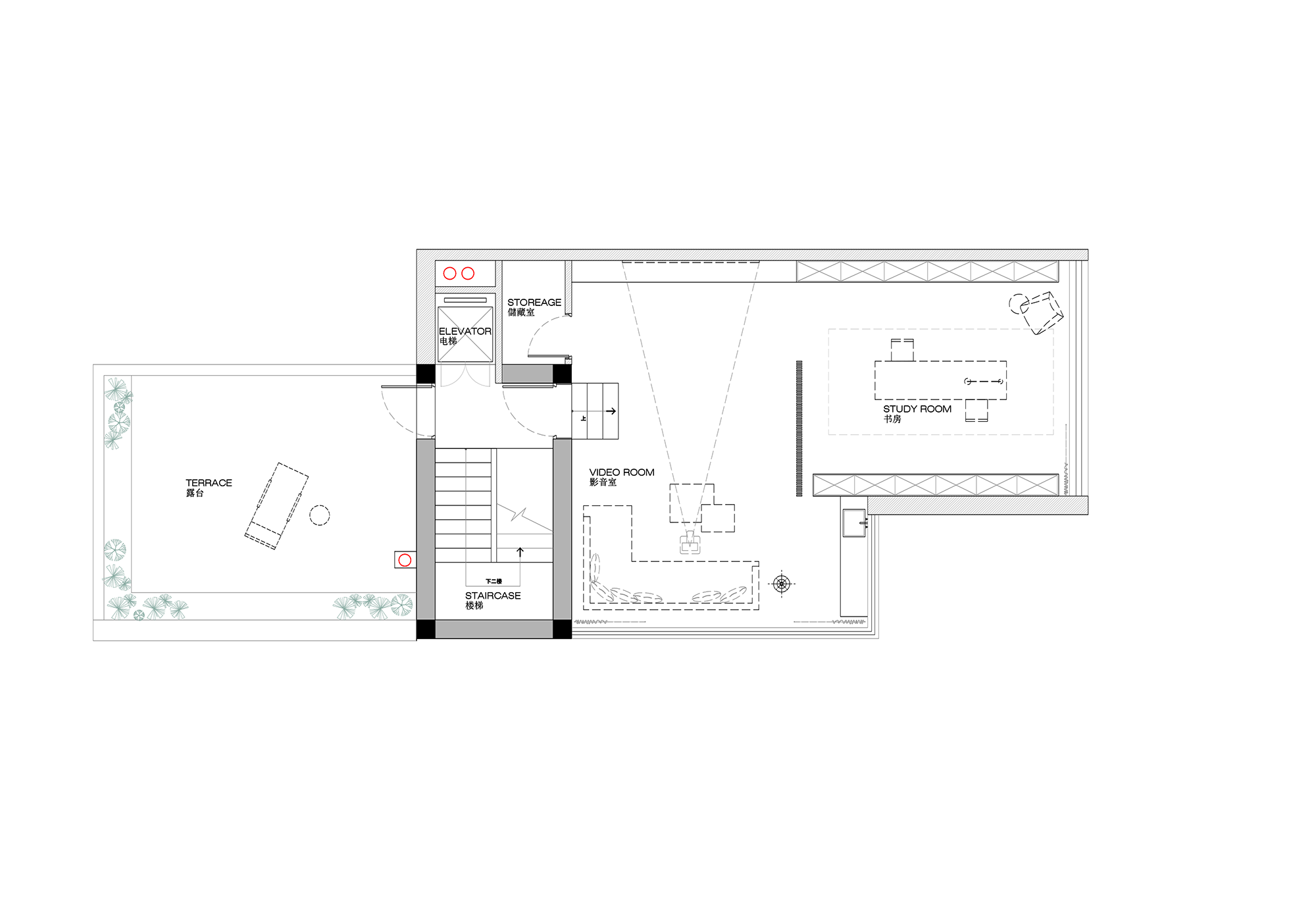
在三层的楼梯间开了一扇通顶采光窗,把每寸光影都更好的引入室内。
拾阶而上来到冥想室和书房的空间,感受视觉上的愉悦和心灵上的宁静。
黑色书桌把复古元素融入,置身于古典与现代的交汇之处。
三面窗借景造景,相互渗透,窗外的景色仿佛成为家中的一幅装饰画。
冥想区域以淡雅的为基调,再次感受着惬意的幽静与舒适。
从古朴的茶具到雅致的装饰,家中每一处都呈现出纯粹的中式韵味,让人在此寻得一处静谧的栖息地。
△一层平面图
△二层平面图
△三层平面图
项目名称|自然而然
设计范围|全案设计
项目地点|上海市·青浦
项目面积|建筑面积300.2501349㎡、花园面积402.2501349㎡
设计机构|FF DESIGN
设计总监丨费崎峰
工程总监丨陈晓峰
设计团队丨李鑫潮 刘娟娟 李娉婷
项目摄影丨郑昊部分主材|F+(全屋定制)
费崎峰/FITCH
上海费弗空间设计有限公司设计总监兼创始人
设计最大的成就感就是把想法变成现实
费弗空间设计(FF DESIGN)成立于2017年,是一家在业内享有声誉的室内设计公司。设计团队由一批高素质国际化的资深设计师组成,为客户提供专业及优质的硬软装整体设计服务,设计范畴包括建筑设计、高端住宅、样板间及售楼中心、精装交楼标准、酒店及餐饮俱乐部、商业中心、办公空间等。FF DESIGN拥有才华横溢的专业人士与管理团队,其资源与技术优势完全可以胜任完整的项目运作,即:市场分析定位、总体规划以及贯穿整个项目施工过程中的施工图设计、现场管理等。
我们的作品应当是对当下的社会问题作出的一种回应,是在解决过去、现在和未来的连续性问题。我们认为设计应在普遍性当中寻求与众不同,差异性和多样性,这些是设计进步的源动力。设计不应只是追求夸张、惊人的形式,应当是对现代人行为方式的研究。我们跟很多设计师一样,在资源过度消耗的今天追求负设计,负设计是在满足人们需求的前提下将能耗降到最低。我们希望用最合适的设计语言让人跟空间产生对话、交流与情感共鸣。
客服
消息
收藏
下载
最近




































































