查看完整案例

收藏

下载
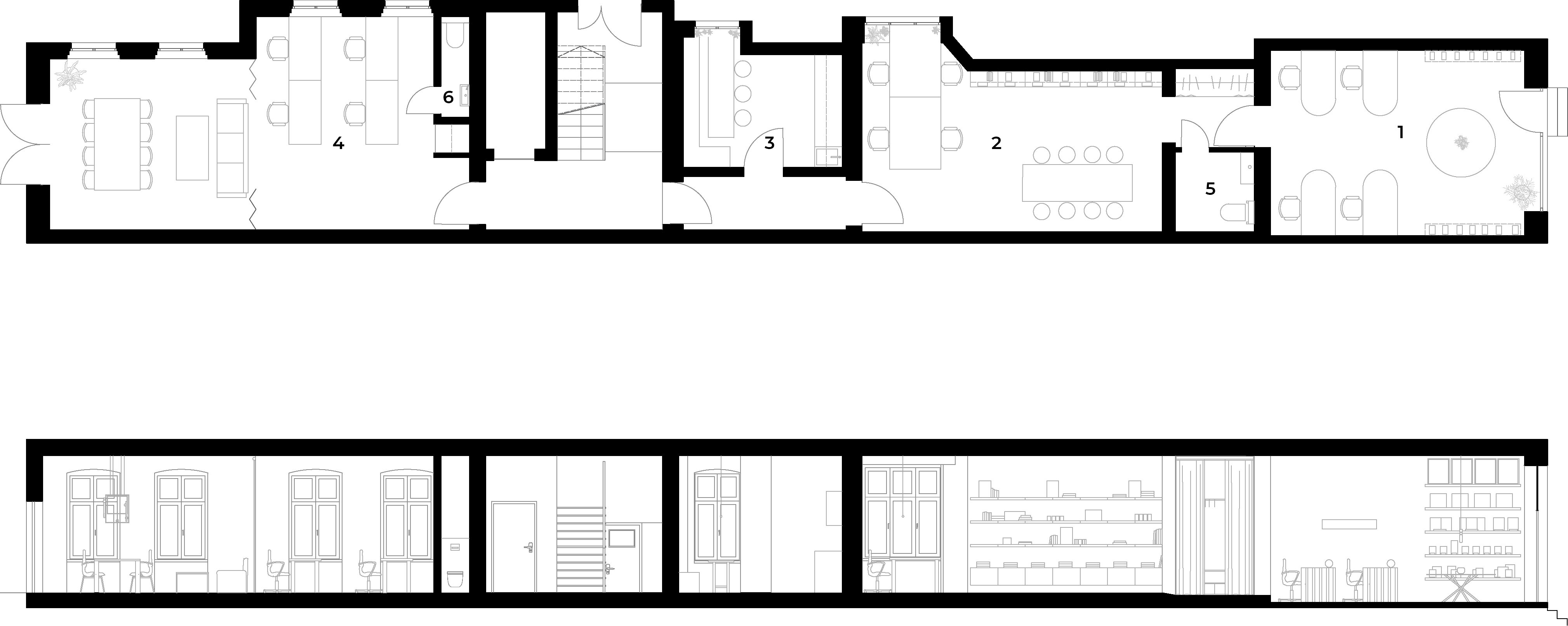
经过几年的发展,Fundbüro 团队需要更大的空间。寻找并不容易,但我们最终在他们心爱的弗里德里希斯海因找到了完美的地方:一家位于街道上的前爆米花工厂。107 平方米的空间被证明是一个挑战。它位于一座 20 世纪早期的建筑中,在转变为工业生产系统时失去了一些本质。该项目的第一阶段涉及将空间恢复到原始状态。
由于结构已经暴露,我们旨在摆脱传统的办公室概念。我们没有选择只注重容纳尽可能多的工人的中性空间,而是追求一种非常规的设计来培养创造力并提高工作室的生产力。我们的主要目标之一是降低建筑师在工作场所所经历的高压力水平。为此,我们选择了暖色调的材料和结合直接和间接光的照明概念,旨在创造一个宁静平和的工作环境。
平面与结构图:
设计师:FUNDB& RO
坐落:Berlin / Germany / 2023
语言:English
客服
消息
收藏
下载
最近



























