查看完整案例

收藏

下载

翻译
Charcot
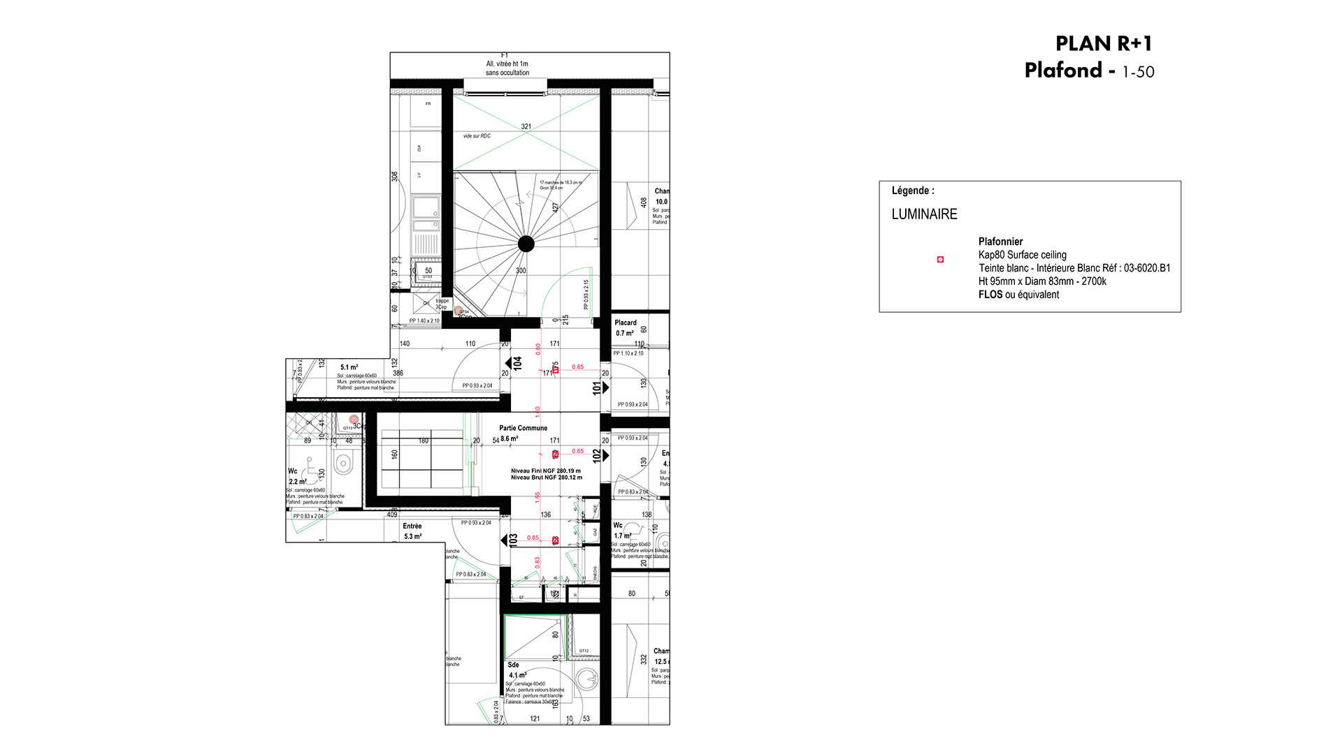
Dans le cadre de mon stage de 3ème année d'études, j'ai pu réaliser les plans de revêtements murs & sols, les plans de plafonds, les plans de signalétique ainsi que des élévations esthétiques et techniques.
Contexte :
Stage de fin de 3ème année - Parties communes d'un bâtiment d'habitations - Lyon, France
SOHO ARCHITECTURE
客服
消息
收藏
下载
最近












