查看完整案例

收藏

下载
这所房子位于郊区的单户住宅开发区和受保护的森林区之间的边界上。 该项目遵循的主要策略是让房子利用这个特殊的位置,并通过合并两者来充分利用其双重条件; 一方面是森林的野性,另一方面是建筑或郊区环境。
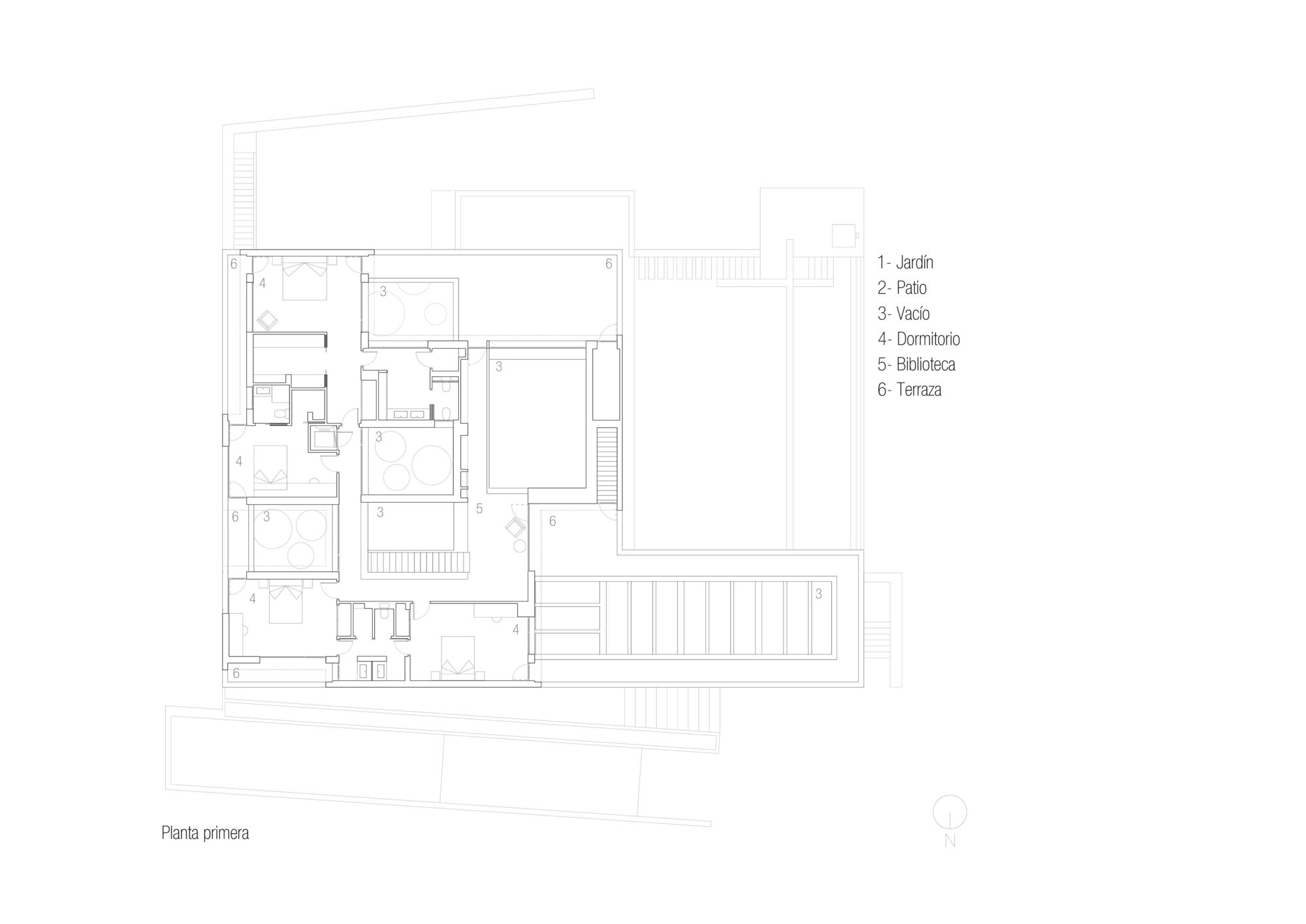
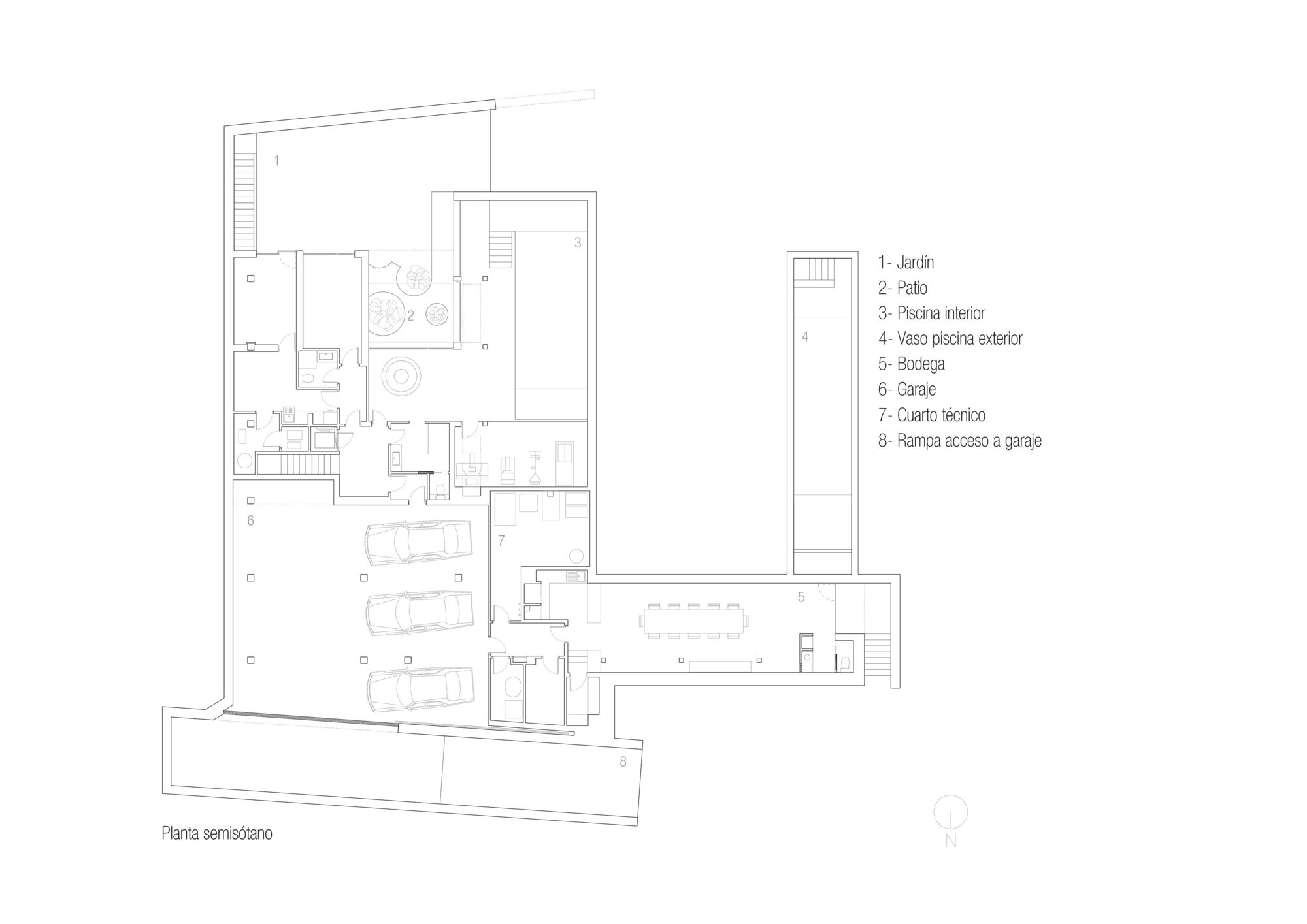
为此,该提案旨在将建筑和花园结合在一个单一的解决方案中,这可以理解为野生森林在地块中的连续性。 因此,提出了不同类型的空间:一些设计供人使用,另一些设计为自然使用,其余的同时供两者使用,在纯粹的外部和严格的内部之间创造了广泛而多样的空间梯度。
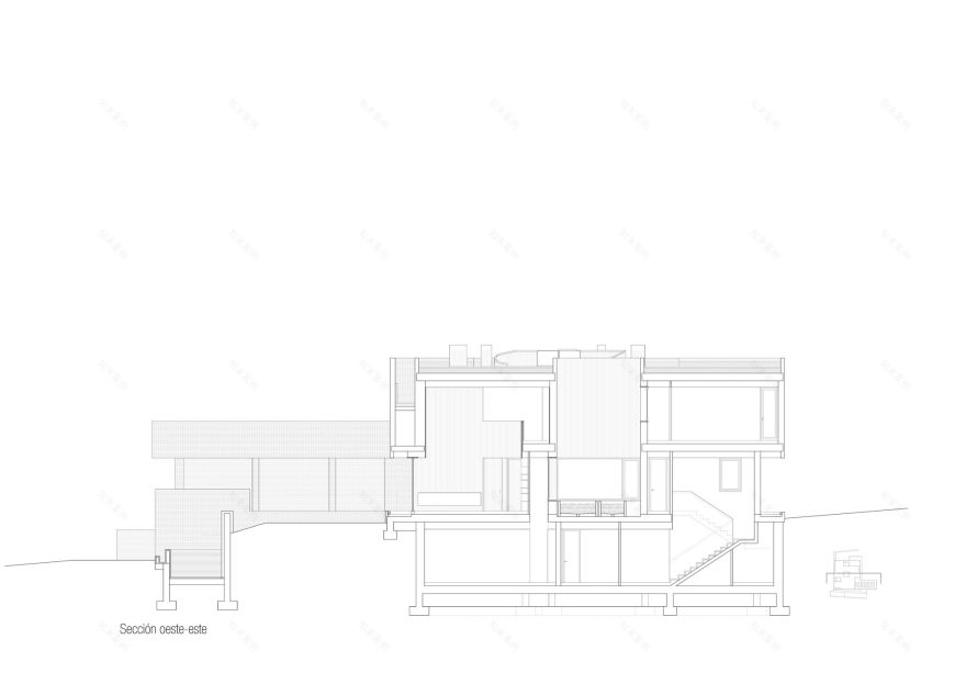
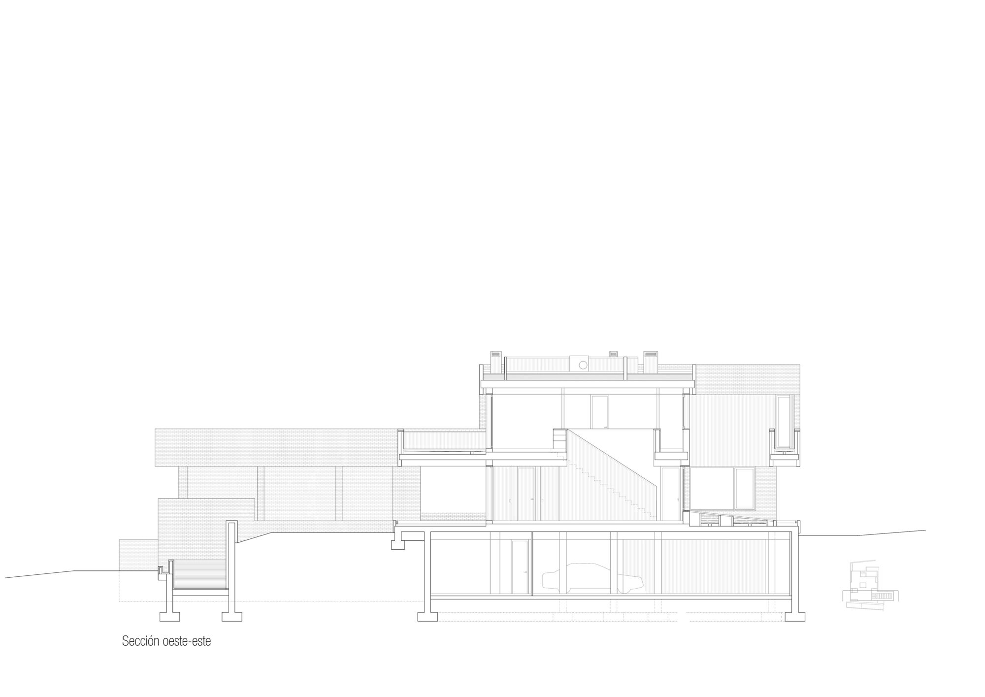
该项目利用地块的自然陡坡,通过开挖,在不同层次上创造了相互交织的梯田空间,使建筑空间和花园的处理方式没有区别。 这产生了一种新的条件,花园和房子在不同的层次上同样分层。 为了强调这种混合条件,自然被允许通过不同层次的各种庭院的入侵来渗透到建筑物中。
建筑与自然的融合在各个层面进行,材料的选择在这个过程中尤为重要。 参考再次在周围的自然中找到。
项目设计:Rodrigo Nuñez Arquitectos
项目面积:900.2501349m²
项目年份:2017
项目摄影:Amores Pictures
供应商: BENITO, Cerámicas Arcís
首席设计师:Rodrigo Núñez
索具:Julián M. Fernández
室内设计:Nazareth Gutiérrez, Rodrigo Núñez
景观设计:Javier Casado, Rodrigo Núñez
工程师:José Ángel Robla
项目成市:León
项目国家:Spain
设计师:Espacio Colectivo Arquitectos
语言:英语
客服
消息
收藏
下载
最近



































