查看完整案例

收藏

下载
Superimpose 叠术建筑在中国杭州完成了最新建筑项目——「云 · 谷TOD」。这是一个以公共交通为导向的TOD项目,它具备商业、办公、居住、轨道交通等混合功能,作为当代生活里不可或缺的城市单元体,正在中国兴起。
▽项目一瞥© WANBAN Vision
▽首层入口视角©CreatAR images
TOD项目最显著的特点,是在城市规划阶段,通过围绕重点公共交通,如机场、车站、地铁等,在适度的半径路程中,展开建立具有混合用途的中心广场,使居民和雇员能方便地选择多种方式出行、生活。「云 · 谷TOD」坐落在由SOM进行总体规划设计的“天空之城”内,位于杭州西部的余杭区。“天空之城”由杭州万科与杭州地铁联合开发,作为具有代表性的TOD项目,总面积超100万平方米,被称作杭州未来的硅谷,进驻了中国诸多大型电商企业总部,如阿里巴巴、腾讯等。
▽场地鸟瞰©CreatAR images
「云 · 谷TOD」的地块位于“天空之城”项目的主干道上,它的建筑由两栋包含底层商业的甲级办公楼和4栋独栋办公楼组成。这里与地铁五常站直接接驳,是整个区域的一个重要连接点和公交枢纽。Superimpose 叠术建筑通过精心整合步行路线、创造独特的绿色建筑与环境,赢得了该项目的竞标。
▽由花园步道望向建筑©CreatAR images
▽建筑外观局部©CreatAR images
设计中,Superimpose 叠术建筑充分利用了地块南侧政府指定的公共绿地,把其中一部分绿地转变为开敞的下沉式绿带,与地铁大厅相连接,形成一种自然的延伸。同时,通过将日光引入到地下一层,为从地铁抵达地面的通勤者提供了一个独特、愉悦、绿色、流畅的过渡空间。
▽入口楼梯©CreatAR images
▽步梯、扶梯与阶梯式景观相结合©CreatAR images
▽景观花园©CreatAR images
▽俯瞰绿地和露台©CreatAR images
概念上,地下一层至地上三层取“山谷”的意向,意在将人、自然、水融为一体。“山谷”在建筑上表现为几组交错的露台,它们突出于楼体,为低楼层制造出舒适的半户外空间,也为路面提供了一定的遮挡。“山谷”之内,Superimpose叠术建筑策略性地将步梯、扶梯设立在特定的位置,既连接了地下一层和地上空间,也与位于三层的过街天桥相通,让人们可以方便的抵达相邻地块的文化设施区域。
▽下沉空间水景©CreatAR images
▽大厅©CreatAR images
▽高楼层室内空间©CreatAR images
对于较高的楼层,建筑师取“云”之意向,选择了一种看起来更为平静的外立面。“云”的外观被抽象化,由不断重复的垂直元素定义,并采用利于通风的竖向穿孔铝板构件实现,把功能和视觉元素有效结合。
其中两栋办公楼,在楼腰处利用一个体量的错位与推移设计,嵌入了“玻璃盒”般的楼层体块,它们将高层建筑一分为二,在立面上形成有意思的变化,为内部空间带来更多的光源和开放性。而这个特殊的“玻璃盒”楼层,也为特定需求的办公租户提供了“非标型”的场地选择,这里更适合开敞型办公、产品展示、展览、举办活动等。
▽建筑外立面©CreatAR images
▽嵌入“玻璃盒”般的楼层体块©CreatAR images
▽立面近景©CreatAR images
至此,一个符合新都市生活的TOD项目正式落成,它用多元化的模块、优雅的外观,塑造了功能与交通并存的集合体,协调了城市发展过程中产生的交通与用地之间的一些矛盾,并为居民提供了新的生活方式、以及与城市、自然互动的更多机会。
▽首层夜间视角©CreatAR images
▽户外空间夜景©CreatAR images
▽建筑夜间外观©CreatAR images
▽一层平面图©叠术建筑
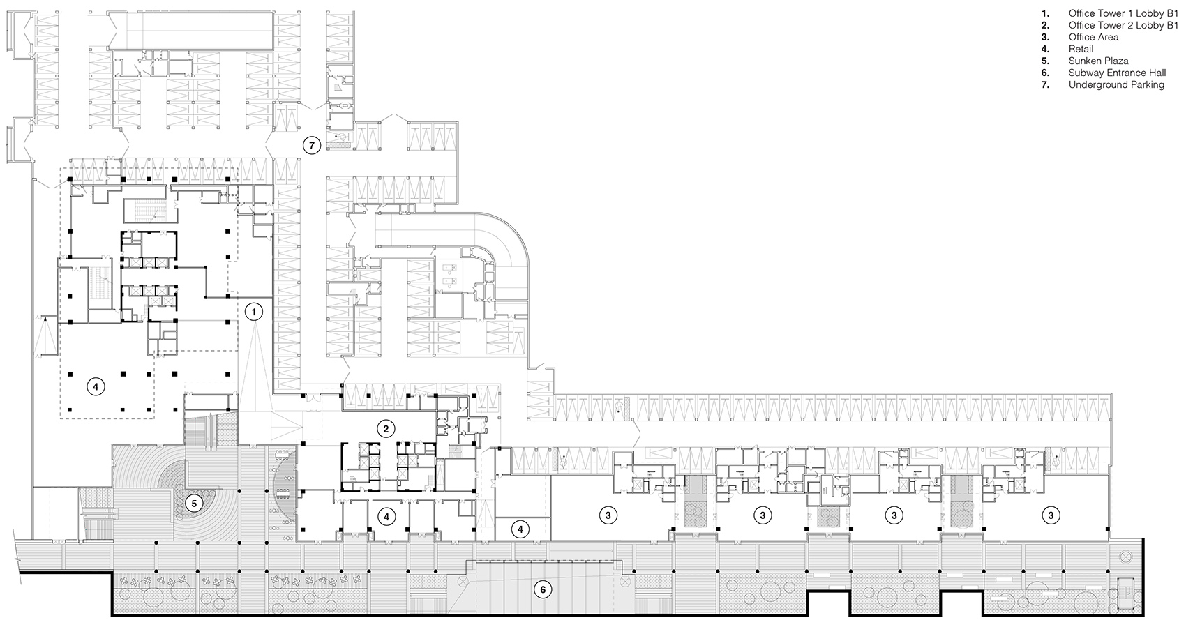
▽地下一层平面图©叠术建筑
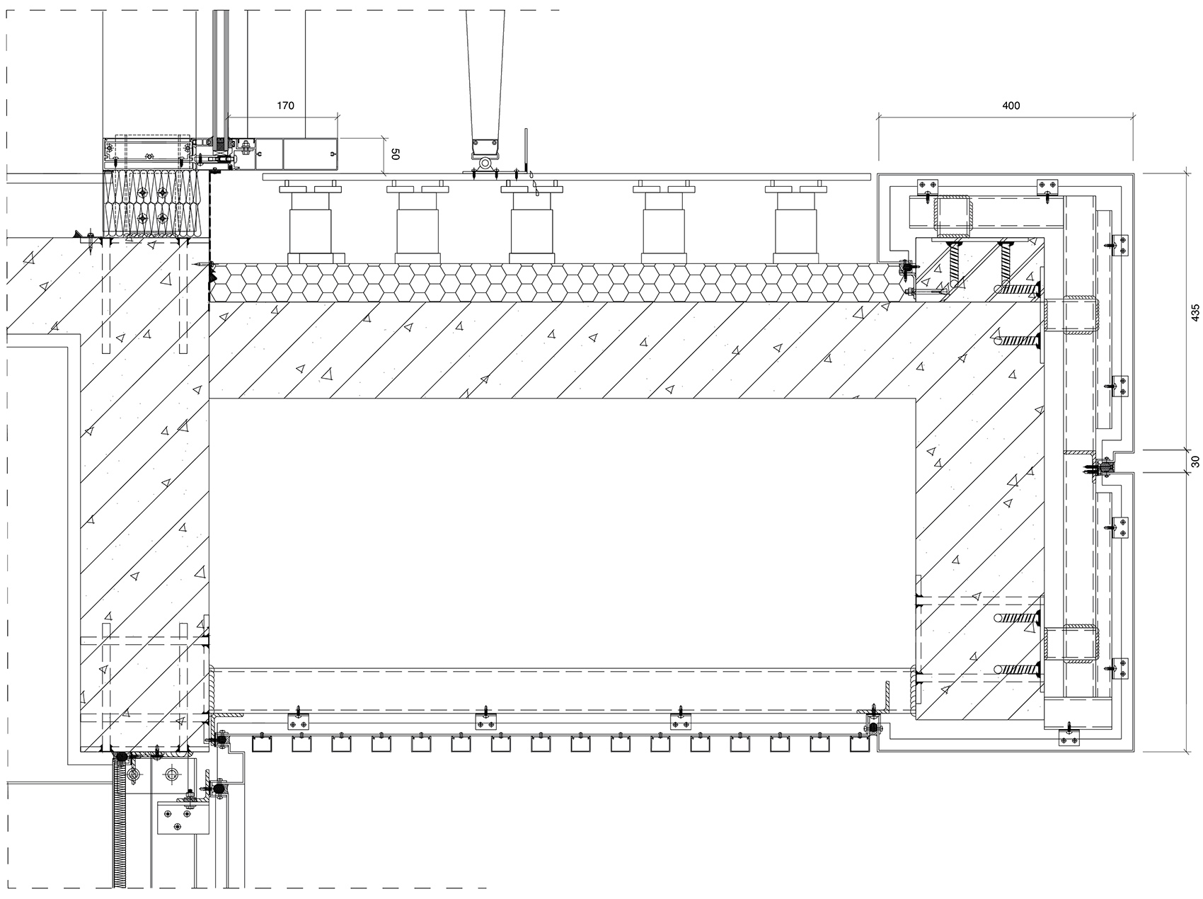
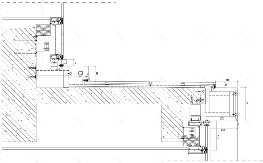
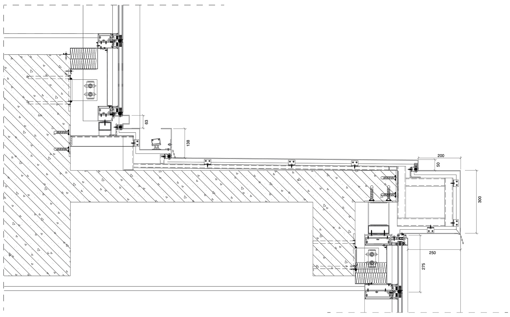
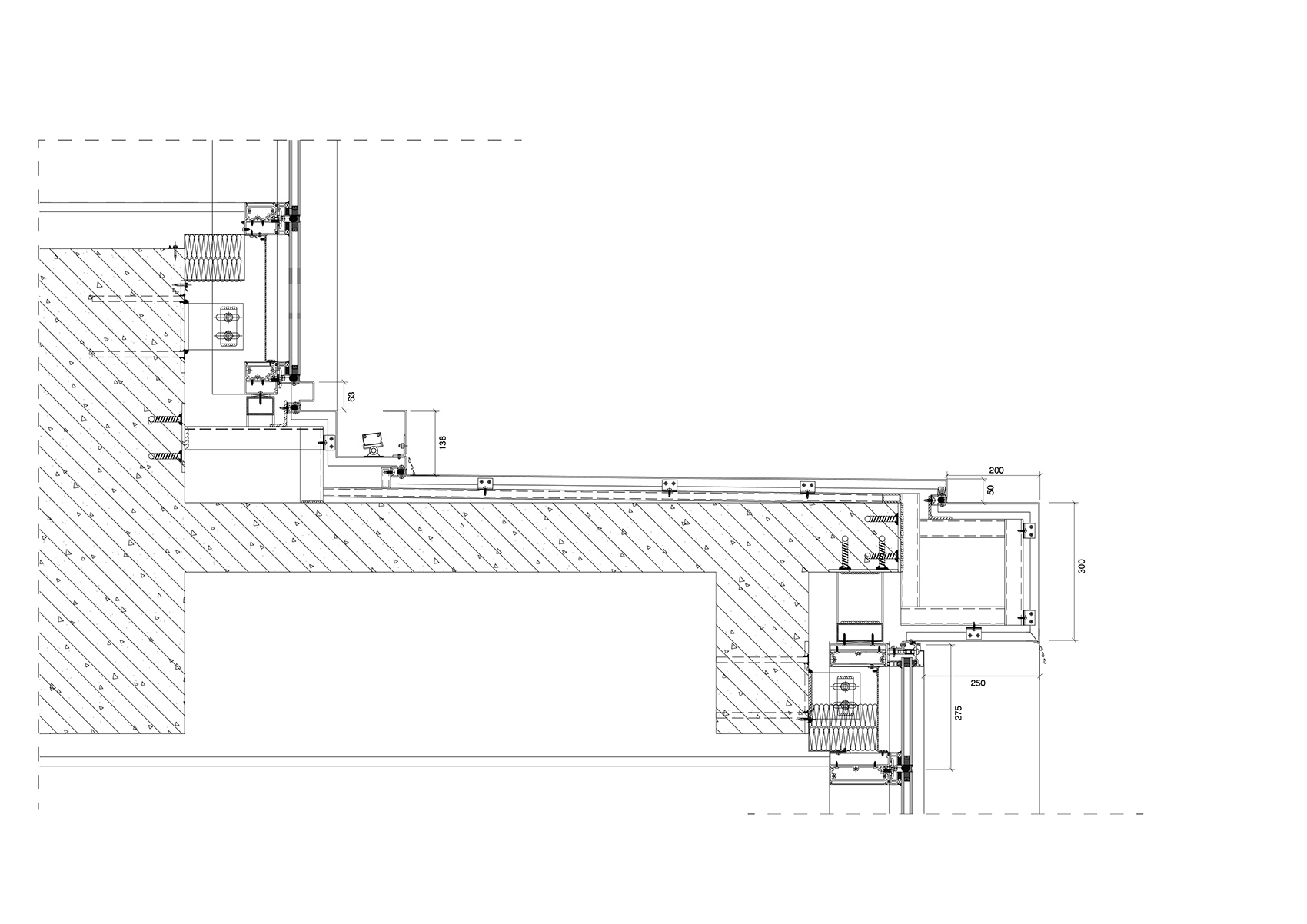
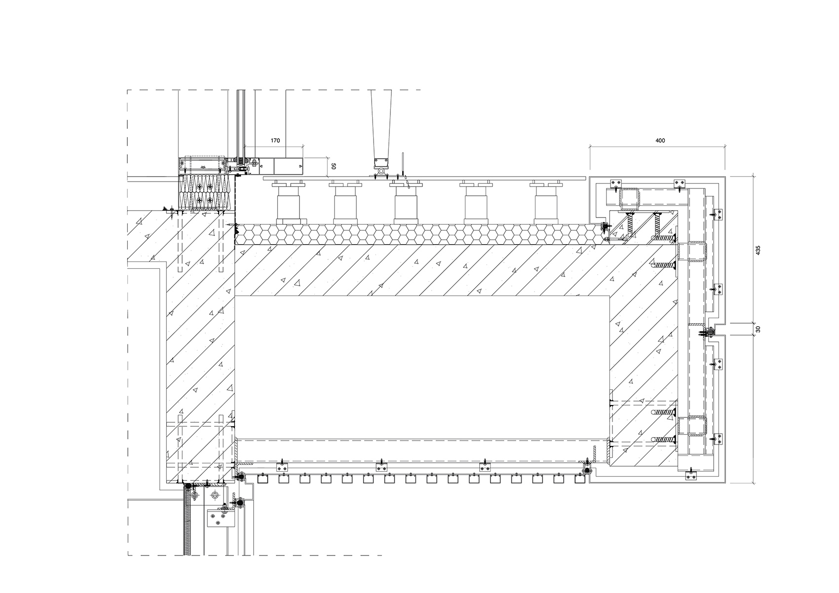
▽节点图©叠术建筑
项目名称 / 云 · 谷 TOD
项目业主 / 杭州万科&杭州地铁集团
项目位置 / 中国杭州余杭区
项目类型 / 公共交通导向发展(TOD)混合功能: 商业,办公,地铁到达
设计范围 / 建筑设计
设计公司 / Superimpose 叠术建筑
主创设计 / Carolyn Leung, Ben de Lange, Ruben Bergambagt
设计团队 / Carolyn Leung, Ben de Lange, Ruben Bergambagt. Yunqiao Du, Ana Raluca Timisescu, Arianna Bavuso, Valentin Račko, Xiaoyu Xu, Jay Peng, Inci Lize Ogun, Rafaela Sampaio Agapito Fernades
合作设计 / 浙江省工业设计研究院,于强室内设计师事务所(室内设计),成都佐一照明设计有限公司 (灯光设计),翊象设计有限公司 (景观设计)
建筑面积 / 72,000 .2501349m²
规划面积 / 155,000 .2501349m²
建造日期 / 2018.11-2022.09
建筑认证 / LEED社区设计铂金级认证
项目材料 / 铝材外立面 – 通风穿孔板、铝材外立面 – 通风板饰面、超白夹胶钢化玻璃、室内铝板开启扇、铝材挑板
摄影 / CreatAR 清筑影像,WANBAN Vision
客服
消息
收藏
下载
最近


































