查看完整案例

收藏

下载

翻译
KOLOHUB
місце: Овруч, Житомирська область, Україна
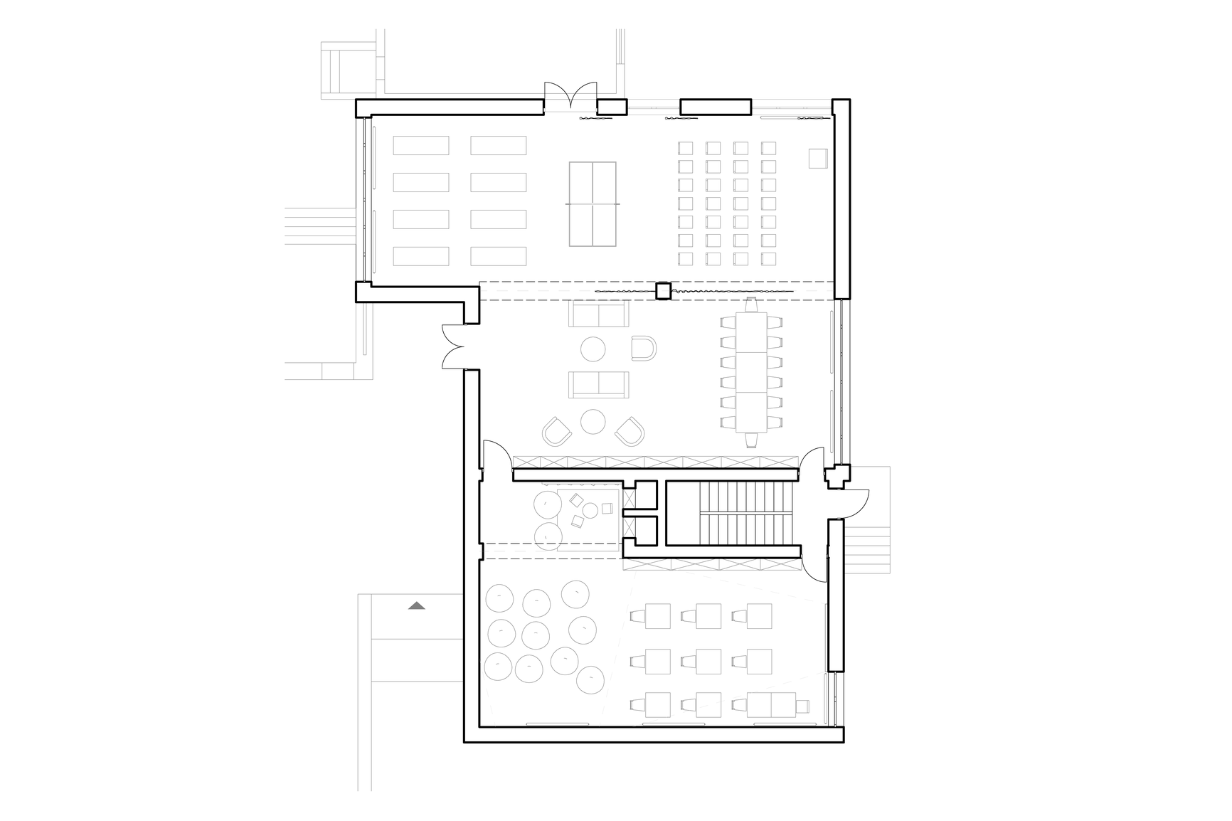
функція: центр спільнототворенняплоща: 245 м2
статус: концепція
команда: Бербець Вікторія, Железнов Антон, Селешок Іван
партнери: в рамках проєкту реалізації центрів спільнототворення за підтримки Western NIS Enterprise Fund та Cedos
Восени 2023 року аналітичним центром Cedos за підтримки Western NIS Enterprise Fund був ініційований проєкт по створенню центрів спільнототворення. Дані простори мають слугувати місцем зібрання мешканців громади, де вони зможуть обговорювати свої поточні виклики та планувати майбутнє, проводити освітні заходи та майстеркласи.На базі Овруцької центральної бібліотеки ім. Андрія Малишка буде створений центр для громади.
Партисипація - важливий принцип у підході до розробки проєкту. Команда провела декілька воркшопів зі збору даних та прототипування. Поспілкувалися з діючим персоналом бібліотеки та активними представниками міста.
Гнучкість та адаптивність - головні властивості простору. Зали не мають чіткого функціонального призначення, центр змінюється залежно від запитів громади та подій.Хаб бере на себе роль майданчика для спілкування, проведення освітніх подій, влаштування майстеркласів, проведення виставок локальних майстрів та ще ряду подій, які обслуговують усі потреби громади.
Instagram | facebook | linkedin
客服
消息
收藏
下载
最近




















