查看完整案例

收藏

下载
机构建筑,陈列室,西班牙
设计师:TdB Arquitectura
面积:15373 .2501349m²
年份:2019
摄影:Alejo Bagué
供应商:Arcon Glas, AutoDesk, BASWA acoustic, FLOORFLEX, Hormann, Kingspan Insulated Panels, Lledò, Manusa, NTGRADE, Neocerámica, RINOL, Reiter, Reynaers, Roca, Simón, TCY TORRES, Talleres Inox, thyssenkrupp
负责建筑师:Juan Trias de Bes Mingot, Marta Pascual Marugán, Carlos Garcia
业主:NATURA BISSÈ INTERNATIONAL S.A.
结构:BIS Structures
技术经理:Otecnica Arquitectonica
国家:西班牙
设计师描述 | Designer description:
A nova sede corporativa de Natura Bissé está localizada no Parc de l’Alba dentro do término municipal de Cerdanyola. O edifício está destinado a fabricação industrial de produtos cosméticos, laboratórios, logística, zonas de eventos e oficinas. Nesta sede serão atendidas todas as filiais e distribuidoras internacionais.
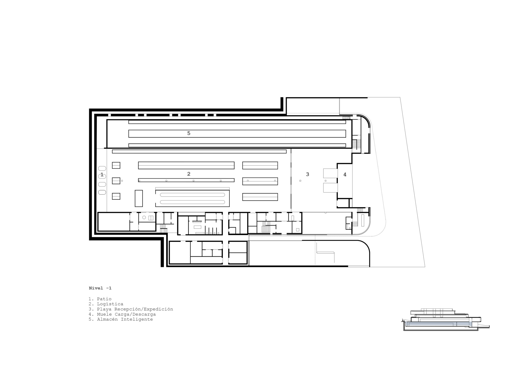
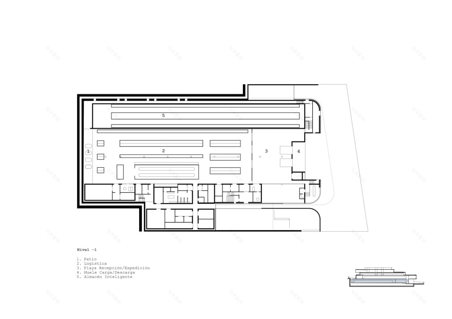
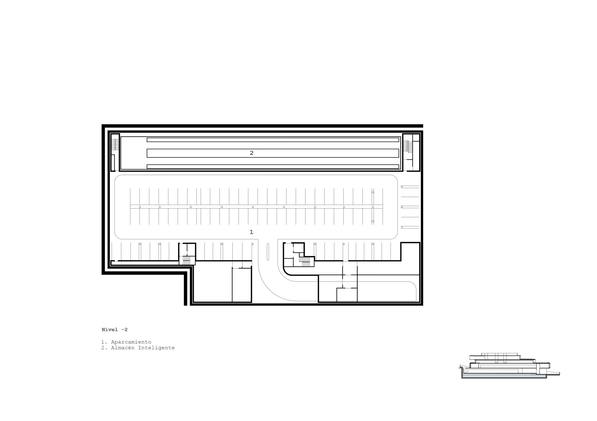
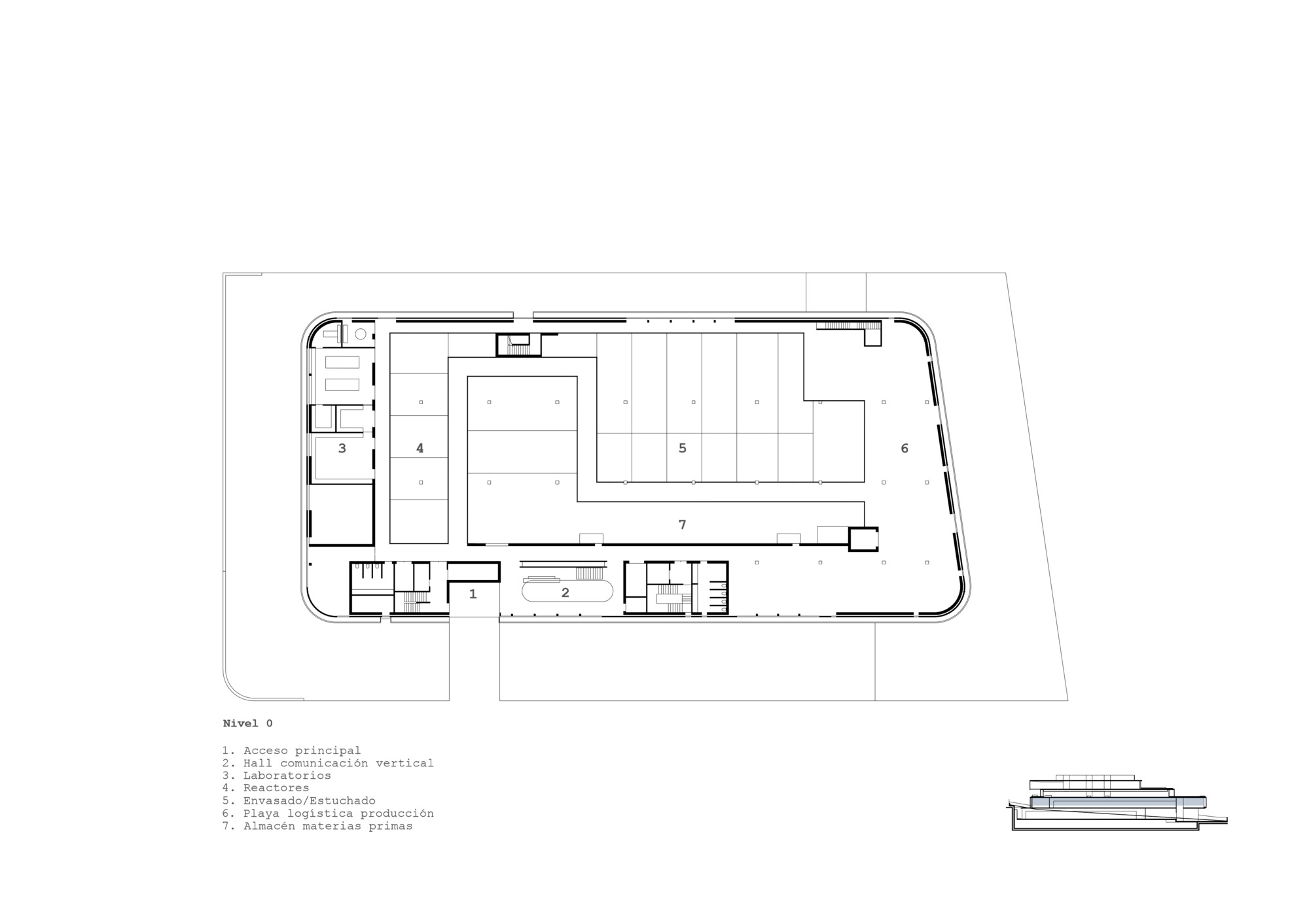
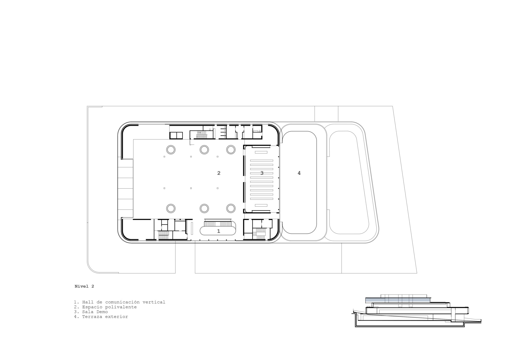
Com uma superfície de 15.373 m2 mais 5.394m2 de espaços externos, as atividades de desenvolvem em 5 níveis:Estacionamento (subsolo), Logística/Robotização (Planta Baixa Inferior), Produção/Laboratórios (Planta Baixa Superior) e dois níveis para Direção, Administração, Investigação, Desenho e equipamentos complementários para os funcionários.
Esses níveis estão configurados de maneira escalonada, adaptando-se ao desnível do terreno; buscando um perfil contraposto com a paisagem e uma identidade que corresponda à imagem corporativa. Assim, a Casa-Fábrica Natura Bissé responde a uma nova geração de equipamento de produção em que o programa dos espaços para oficinas, inovação e laboratórios alcança maior superfície que a própria produção industrial.
Isso requer unas instalações que devem suportar a continua atividade de renovação e de revalorização de seus produtos. Nessas condições, o projeto se apoia na humanização do espaço industrial e incorpora aspectos importantes como:a iluminação natural, filtros de luz zenital, relação visual com a paisagem exterior através de amplos terraços, presença de vegetação nos espaços interiores e ventilação cruzada. Dotado dessas características, o projeto é propício, em sua totalidade, à relação e comunicação entre as pessoas.
A denominação "Casa-Fábrica" é adotada pelos proprietários do edifício ao comprovar a compatibilidade da atividade industrial com o conforto de seus usuários.
项目完工照片 | Finished Photos
设计师:TdB Arquitectura
语言:葡萄牙语
客服
消息
收藏
下载
最近

















