查看完整案例

收藏

下载
办公设施, 济南, 中国
建筑设计:栖舍建筑事务所
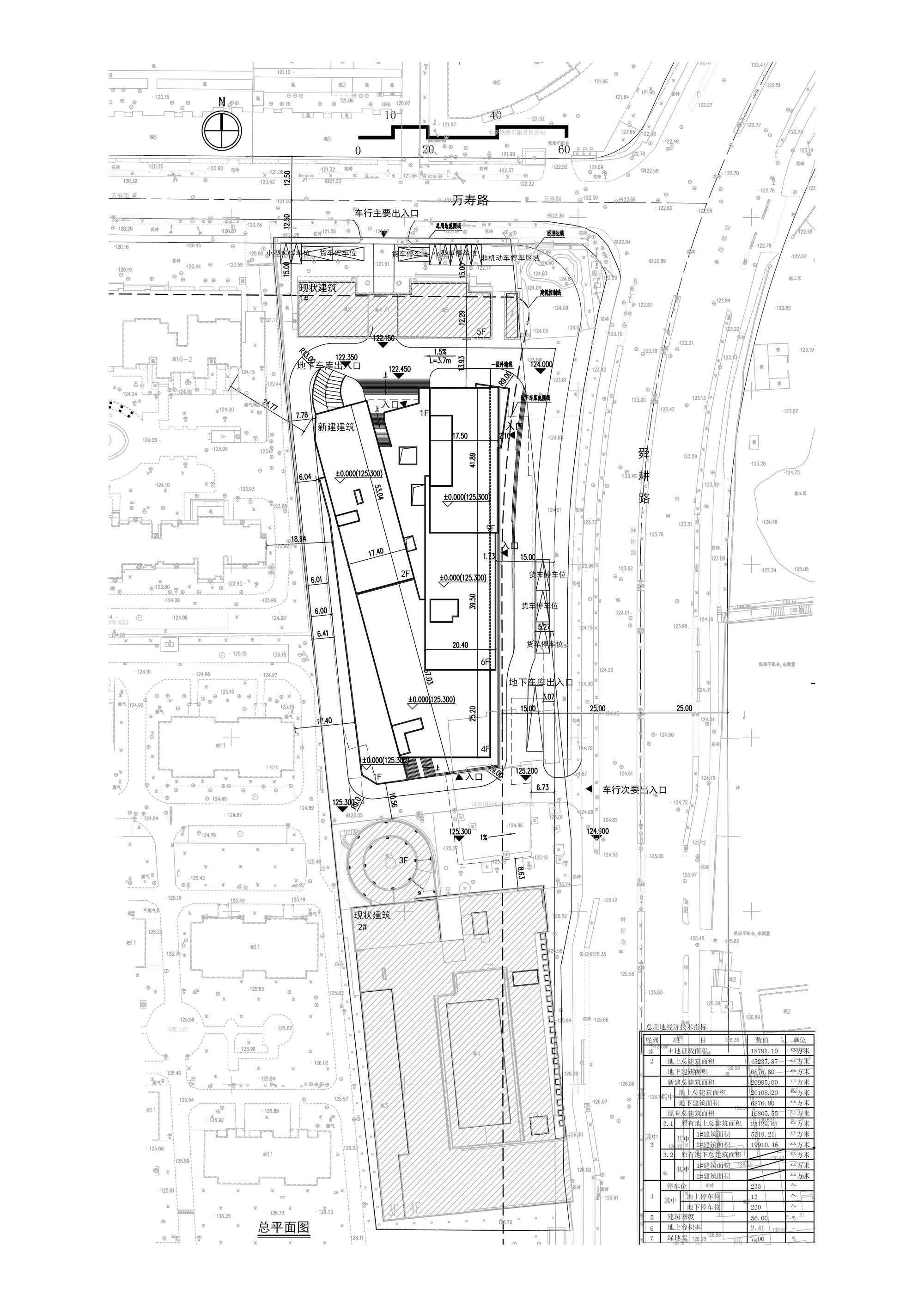
面积:20108 .2501349m²
项目年份:2019
摄影师: Chenguang Wang
主创建筑师:李兴
委托方:山东出版集团
设计团队:上海栖舍建筑设计事务所
City:济南
Country:中国
济南国际创新设计产业园位于济南市中区,曾经是山东出版集团的办公园区。近些年,随着文化产业形态的转变,人们的文化意识也从自我转向群体,群众更加关注群体的一致性多于个体的独特性,“城市共享”这一概念越来越被广泛应用在生活中。山东出版集团作为山东文化企业的先锋集团,希望将新建的办公园区定位为一座创新产业园,引入互联网、广告等创意公司,为城市添加一座创新人才聚集的办公场所,表达“与城市共享”的未来观点。
上海栖舍建筑设计事务所被邀请进行园区设计,重写场地内与外的故事,统一外在的群体性,突出内在的个体性,建立建筑与城市之间空间的共享,让这里成为济南江北首个以工业设计为主题,为城市和创新人才服务的园区。
经过对场地的勘探和对城市的研究,该场地位于济南市中区,首先,呈南北向狭长用地,对建筑布局有很强的压迫感并形态受限,其次南北两侧均有保留建筑,建筑内部光线舒适度提出高要求,并且,西侧高层住宅,日照要求限制建筑的高度,东侧城市主干道,道路红线导致建筑向内缩,与小龟山山体公园对望,与景观的协调为建筑设计又增加一道难题。道路红线限制场地面积,日照要求限制建筑高度,面对多种受限的夹缝场地,该如何为城市做出空间的协调和共享,成为重写场地故事的最大难题。
我们提出了“为场地做减法,为城市做加法”的设计策略。由于北侧和西侧现有建筑的日照要求,新建建筑高度最高为九层,南侧建筑为园区一期建筑,高度为四层,为将南北侧贯通,主体建筑呈退台形式,并增加六层高的过渡退台,形成三个高度的序列平台,打断建筑主体狭长的城市界面。同时,三组平台间增加玻璃幕,减弱材质单一感增加节奏性,并解决狭长体量的采光问题。这种退台关系,在主干道视角中,同样呈现退台序列,形成水平和垂直方向的错位呼应关系,消弱建筑体量的存在感,为场地做减法。
狭长场地中,面临的第二难题便是流线的规划。建筑分为三个入口,南侧与一期建筑围合广场,形成主入口,充分利用与一期现存的建筑关系和现有的车行出入口,提供了城市广场空间,为建筑聚集更多人群,广场两侧建筑高度相同,增加场地的仪式感。东侧的中部设置次入口,打破狭长立面关系的同时,也为出入建筑的人群,提供对岸小龟山公园的景观框景。北侧入口,作为车行主入口的同时,也为北侧办公楼提供建筑的延伸性,打破原有建筑的单一感。北侧的大厅内部,连续的天井内院解决了采光问题,改善办公空间的舒适度。
北侧、东侧、南侧入口直通建筑二层,三个入口流线连成完整的平台,为城市提供公共共享空间。无论从哪个入口进入至建筑,都可以漫步穿行,走到园区的另一边,不仅仅是停留在此活动的人们可以行走,同时为匆匆路过的行人提供景观性的“建筑地形”,成为城市人群行走的另一条流线,增加行走的趣味性,与对面小龟山呼应。在退台的屋顶,同样设置景观屋顶平台,为园区工作者提供休憩场所和景观眺望台。将城市道路以漫步屋顶的形式呈现,突破固有的定义,为城市做加法。
即是为城市中的创意人才服务,如何突出使用人群的个性化,是设计的点睛所在。产业园的建筑颜色和立面元素由双重材质组成,一种是红砖陶瓦,为城市带来强烈的体量感,一种是深灰色铝板结合局部玻璃幕墙,突出建筑间的强烈体量感,在主干道视线中,斜置幕墙体块在建筑边界,弱化呆板的体量,突出材料的虚实关系,表达建筑的个性。
济南国际创新设计产业园通过退台体量为城市地块和城市界面做减法,通过景观性建筑山地为城市公共空间做加法,为园区内创意人才提供即开放又具个性的工作场所,这便是栖舍建筑为山东文化重写的建筑故事,将内部的个体文化属性转写为外部的城市集体文化属性。在设计中,我们一直在讨论,“城市的限定空间内需要什么样的建筑?限定空间内的建筑需要怎么样的城市属性?”,这种城市与建筑之间的加减法灵活运用,或许是一种合理和高效的可行办法。
项目完工照片 | Finished Photos
设计师:栖舍建筑事务所
分类:办公设施
语言:简体中文
客服
消息
收藏
下载
最近


















































