查看完整案例

收藏

下载
,
设计师:Rojkind Arquitectos
面积:700 .2501349m²
年份:2007
建造商:Aviglass
设计师描述 | Designer description:
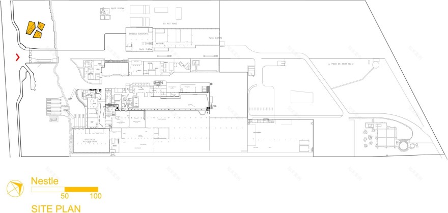
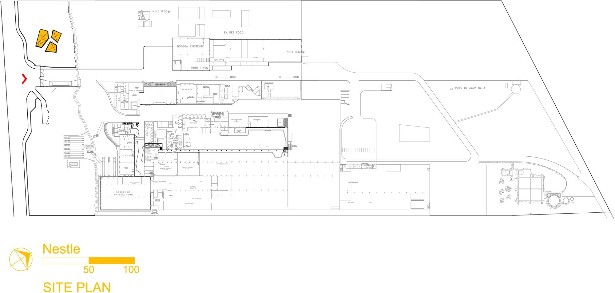
Este é o edifício para a Nestlé projetado por Rojkind Arquitectos. Depois do impressionante Museu do Chocolate, o escritório foi encarregado de projetar uma nova instalação na cidade de Querétaro, que inclui laboratórios, escritórios e auditório e uma área de degustação.
Uma das limitações do projeto veio do fato do centro de Querétaro ter sido declarado Patrimônio Mundial pela UNESCO em 1996, assim, a nova edificação era obrigada a ter pórticos em arco.
Rojkind incorporou este elemento através de uma nova interpretação, criando volumes ortogonais com uma série de recortes esféricos intersectados, que se repetem conformando um espaço aberto e contínuo.
À primeira vista, o resultado destas formas complexas teria exigido uma fabricação digital, mas um sistema simples de cúpulas semi-esféricas feitas de arcos e anéis de aço permitiu uma construção de maneira fácil e rápida com trabalhadores locais.
项目完工照片 | Finished Photos
设计师:Rojkind Arquitectos
分类:Edifícios Institucionais
语言:葡萄牙语
客服
消息
收藏
下载
最近








































