查看完整案例

收藏

下载
工作室, 办公设施, Barcelona, 西班牙
建筑师:Anna & Eugeni Bach
面积:110 .2501349m²
项目年份:2016
主创建筑师:Anna & Eugeni Bach
合作方:Albert Cabrer, Carla Fernandes
City:Barcelona
Country:西班牙
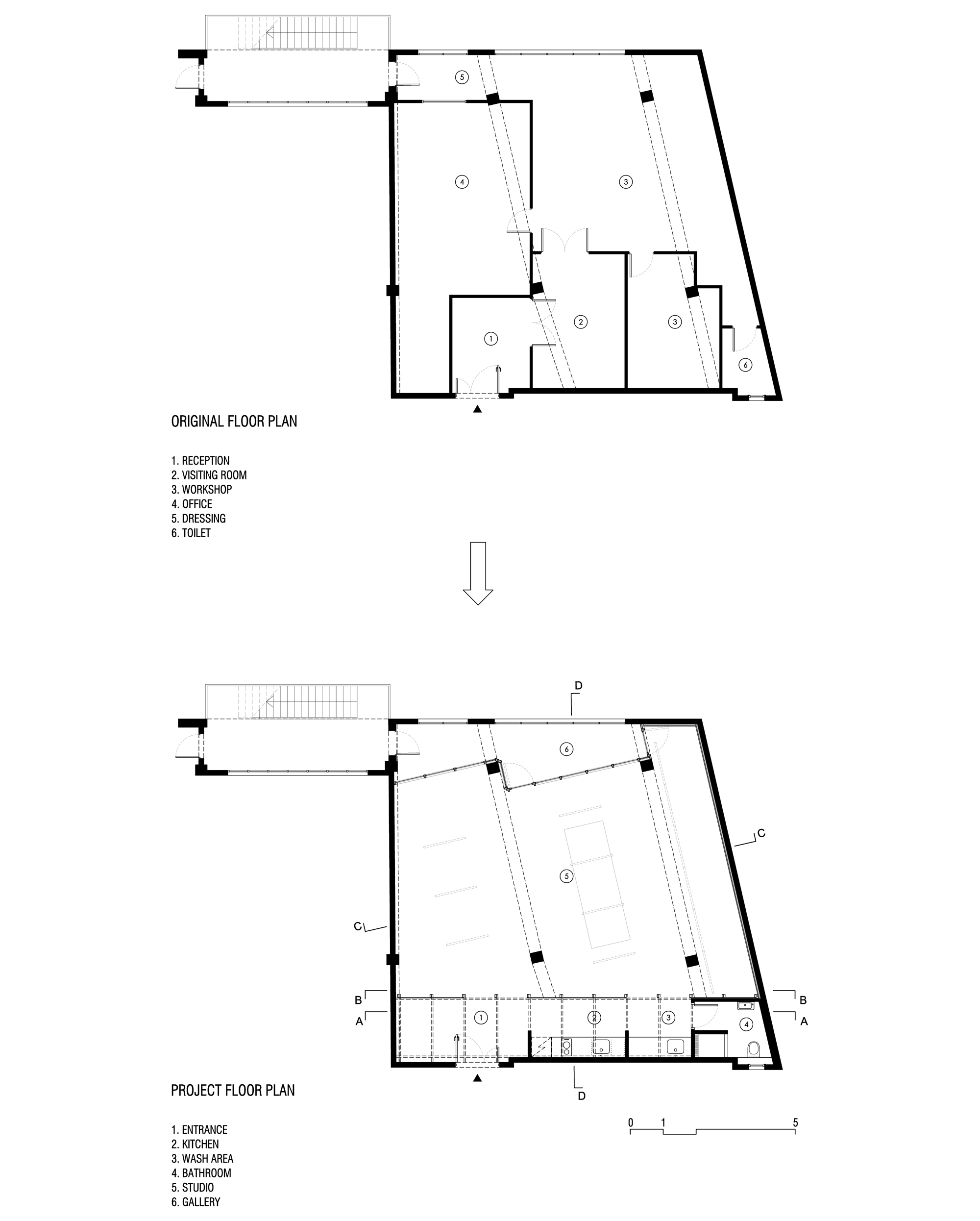
两个轻质木结构搭建的空间将画家所需的空间结构组织进更大的开放空间中。紧邻立面的空间中,一面玻璃墙在空间的两个不同方向间找到了自己的位置:一方面沿着现有墙壁围合,另一方面沿着不同的方向倾斜墙体。
锯齿形的墙壁在玻璃和窗户之间生成两个小空间,在开放空间中提供了一个新的“房间”,也可以作为天然的温度调节器。在房屋另一侧,另一个轻木结构平行于对面的墙壁放置,形成了一个包含厨房、水槽、卫生间和入口的空间。
这样设计的木制结构既可以用作存储空间,又可以作为画笔、试剂、纸张和其他工作用品的支撑。
文字描述由建筑师提供
译者:王梦薇
项目完工照片 | Finished Photos
设计师:Anna \u0026 Eugeni Bach
分类:工作室
语言:简体中文
客服
消息
收藏
下载
最近






















