查看完整案例

收藏

下载
该项目位于北京市西城区,是一个住宅室内设计项目,也是一个老房改造项目,使用面积约 70 平方米,没有电梯,是为一对年轻夫妻设计的居所,屋主爱好阅读与烹饪美食。
This project is located in Xicheng District, Beijing. It is a residential interior design project and also an old house renovation project, with a usage area of about 70 square meters. There is no elevator, and it is designed as a residence for a young couple. The homeowner enjoys reading and cooking delicious food.
▼项目概览,overview©金伟琦
▼走廊,corridor©金伟琦
房子的外部社区环境是种老式的旧感觉,而室内是一种全新的生活方式。外部的旧与内部的新形成反差,外部的嘈杂与内部的宁静也形成对比。放弃以客厅/餐厅/厨房等明确的区域功能方式,尝试以全新的方式赋予空间体验感,根据居住者当下的使用空间需求来定义空间的功能,突出表达很多面墙的书柜,形成阅读氛围感的家。
The external community environment of the house has an old-fashioned feeling, while the interior is a brand new way of life. The contrast between the old outside and the new inside creates a contrast, and the noise outside contrasts with the tranquility inside. Instead of using clear functional areas such as the living room/dining room/kitchen, we try to give the space a sense of experience in a new way. We define the space’s functions according to the current space needs of residents, highlighting the expression of many wall facing bookcases, and creating a reading atmosphere in the home.
▼面墙书柜,wall bookcases©金伟琦
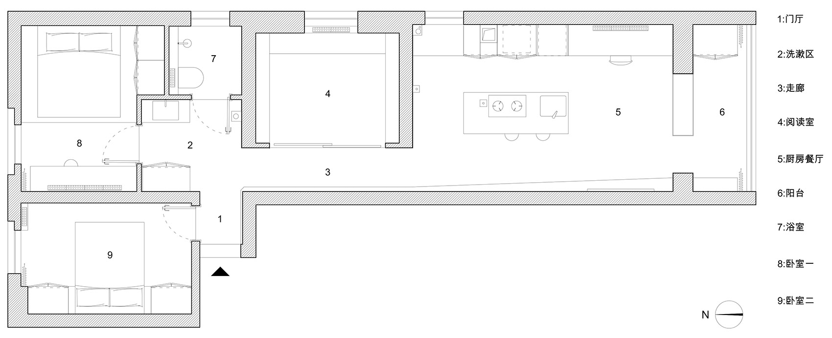
改造前是一个两卧室一客厅一餐厅一厨房一卫生间的空间,老房子的每个空间都相对独立,除去卫生间与厨房的墙面是可以移除的轻体墙外,其它都是承重墙。其中厨房面积小,使用起来比较局促,优点是每个空间都有自然采光的窗,分别来自南侧的一个窗,东侧的三个窗和北侧的两个窗,共 6 个窗。
Before renovation, it is a space of two bedrooms, one living room, one dining room, one kitchen, and one bathroom. Each space in the old house is relatively independent. Except for the lightweight walls that can be removed from the walls of the bathroom and kitchen, the rest are load-bearing walls. The kitchen area is small, making it difficult to use. The advantage is that each space has natural lighting windows, which come from one window on the south side, three windows on the east side, and two windows on the north side, totaling six windows.
▼改造前后,floor plan before / after renovation© Luo Xiuda
改造后|After renovation
1: 将空间中的 6 个窗分配给每个空间,将每个窗的开启扇由原来的两个小扇改为一个大的整扇,可以改善观赏外部绿色树木的视野。
2: 由于新冠疫情之后,回到家洗手,成为每个人的生活必要习惯,所以将洗漱台从卫生间内分离出来,并与玄关整合在一起。
3: 将原餐厅空间改成多功能空间的阅读室,形成新的阅读与做瑜伽的空间,两扇大的移动门,可供居住者选择开放或是封闭模式。
4: 由玄关开始直至转角再延伸到南侧的窗位置,设置了大约 11 米长的书柜,功能上满足屋主书多的需求,形式上确定了空间的气质。加上书房内的 5 米长书柜,共 16 米长的书柜,可放大小不同尺寸的书,确定了阅读在这个家里的重要性。
5: 将原厨房墙体移除后,南侧形成最大的空间,这里有开放式厨房岛台/厨房的电器柜/就餐台面/书桌台面/看电视等多个功能整合在同一个空间内,厨房的窗与南侧的窗在同一空间内,使空间内的自然采光更多。
1: Assigning 6 windows in the space to each space and changing the opening fan of each window from the original two small fans to a large whole fan can improve the view of the green trees outside.
2: Since washing hands at home after the COVID-19 epidemic has become a necessary habit for everyone’s life, the washstand was separated from the bathroom and integrated with the hallway.
3: Transforming the original restaurant space into a multifunctional reading room, creating a new space for reading and yoga. Two large mobile doors allow residents to choose between an open or closed mode.
4: Starting from the entrance and extending to the south window at the corner, there is an approximately 11-meter-long bookshelf, which meets the homeowner’s demand for more books and formally determines the temperament of the space. Adding a 5-meter-long bookshelf in the study, a total of 16 meters long bookshelves can hold books of different sizes, confirming the importance of reading in this home.
5: After removing the original kitchen wall, the south side forms the largest space, where multiple functions such as an open kitchen island, kitchen electrical cabinets, dining countertops, desk countertops, and TV viewing are integrated into the same space. The kitchen windows are in the same space as the south side windows, providing more natural lighting in the space.
▼一瞥,a glimspe©金伟琦
入户门面对着是门厅小走廊,走廊的左侧是一个鞋帽柜,同时可以放包与外套衣服,柜子的对面是洗手台,方便洗手与消毒。
Facing the entrance is a small hallway in the lobby, and on the left side of the hallway is a shoe and hat cabinet, which can also hold bags and outerwear clothes. Across from the cabinet is a washbasin for easy hand washing and disinfection.
▼玄关,Entrance ©金伟琦
书柜采用胡桃木贴皮木制隔板与不锈钢金属立柱结构,与顶面的胡桃木实木龙骨,形成了序列感。行走在空间中,走廊书柜与阅读室书柜同时映入眼帘,随着光线的移动,形成曼妙的光影效果。
The bookshelf adopts a walnut veneer wooden partition and stainless steel metal column structure, with a walnut solid wood keel on the top surface, forming a sense of sequence. Walking in the space, the corridor bookshelf and the reading room bookshelf both come into view, forming a graceful light and shadow effect with the movement of light.
▼木制隔板与不锈钢金属立柱结构,wooden partition and stainless steel metal column ©金伟琦
以中岛台厨房功能为中心,东西两侧平行布置了电器柜、书桌与大面积的书柜,岛台的台面加宽至 900mm,可同时满足 3 人就餐,岛台的台面是用耐划的 6mm 厚不锈钢板定制制作。由于房屋的高度约 2500mm 高,受到限制,也由于屋主喜欢实木材质,所以在这里的顶面做了胡桃木实木结构的木龙骨架构,取代了封闭式吊顶,这样很好地解决了高度受限制又需要做吊顶的问题,同时也将实木龙骨架构,延伸至阅读室与两个卧室顶部,同时在底层木龙骨的顶部,设置了蛇皮灯带,满足照明需求。关于中央空调的管道与油烟机的管道,我们用铝板弯曲将管道包裹,在施工现场与工人对接完成操作,所有的暖气,用穿孔不锈钢板遮挡,立面的燃气管道与暖气管道,也用不锈钢板包裹,并留有检修口。
Centered around the function of the central island kitchen, electrical cabinets, desks, and large bookcases are arranged parallel on both sides. The island countertop is widened to 900mm, which can accommodate three people at the same time. The countertop of the island countertop is custom-made with scratch resistant 6mm thick stainless steel plate. Due to the height of the house being about 2500mm, it is limited. Also, due to the homeowner’s preference for solid wood materials, a walnut solid wood structure wooden keel structure has been added to the top of this place, replacing the enclosed ceiling. This effectively solves the problem of height limitation and the need for a suspended ceiling. At the same time, the solid wood keel structure has been extended to the top of the reading room and two bedrooms. At the same time, the bottom floor wooden keel structure has been replaced by a walnut solid wood structure. At the top of the bone, a snake skin light strip is installed to meet the lighting needs. Regarding the pipes of the central air conditioning and range hood, we use aluminum plates to bend and wrap the pipes, At the construction site, coordinate with workers to complete the operation. All heating pipes are covered with perforated stainless steel plates, and the gas and heating pipes on the facade are also wrapped with stainless steel plates, with maintenance openings left.
▼餐厅概览,kitchen overview©金伟琦
▼柜台,island countertop ©金伟琦
▼岛台,kitchen overview©金伟琦
▼书桌,desk©金伟琦
▼阳台,balcony©金伟琦
是一个多功能空间,这里窗外有很多绿色大树,面对着窗外景色,可以做瑜伽、冥想,也可以在这个空间里看书,父母来短住的时候也是临时的卧室。
It is a multifunctional space with many green trees outside the window. Facing the scenery outside, one can do yoga, meditation, or read books in this space. When parents come to stay for a short period of time, it is also a temporary bedroom.
▼阅读室,reading room©金伟琦
卧室 1 紧邻浴室,这里做了一个木制的地台,代替了床,铺上床垫后,节约了地面的空间,得到了一个贯穿空间南北的多功能大台面。窗的尺寸调整后,位置与宽度都与门对应,打开房门的第一视角是一个观景窗,遮光的窗帘也提供了隐私保护。
Adjacent to the bathroom, a wooden platform has been built here to replace the bed. After laying the mattress, the floor space is saved, resulting in a multifunctional countertop that runs through the north and south of the space. The window size has been adjusted, and the position and width correspond to the door. The first perspective when opening the door is an observation window, and the shading curtains also provide privacy protection.
▼卧室 1 的多功能大台面,a multifunctional countertop in bedroom 1©金伟琦
卧室空间不大,定制的低矮床箱,显得视觉更宽敞,床头两侧的衣柜,也做了壁挂款式,减少了床头的闭塞感觉。
The bedroom space is not large, and the customized low bed box appears more spacious visually. The wardrobes on both sides of the headboard have also been designed with wall hanging styles, reducing the feeling of blockage at the headboard.
▼卧室 2,Bedroom 2©金伟琦
洗漱区脱离卫生间单独设置在玄关走廊内,根据屋主的需求将马桶与淋浴在同空间使用的模式。
The washroom area is separated from the bathroom and set up separately in the foyer corridor. The toilet and shower are used in the same space according to the needs of the homeowner.
▼洗手间,washroom©金伟琦
▼顶面图,ceiling plan©Luo Xiuda
▼立面,elevations©Luo Xiuda
设计师:罗秀达
施工图深化:何沙
摄影:金伟琦
主要材料:实木胡桃木方、胡桃木饰面板、水泥漆、水泥自流平瓷砖、不锈钢金属。
材料品牌
全屋定制:班尔奇
实木龙骨:同泰营造
家具:artek hay
灯具:flos
窗帘:幔宅布艺
客服
消息
收藏
下载
最近
































