查看完整案例

收藏

下载
厂房变迁史
1995 年,北京光彩四通印刷厂在北京亦庄经济技术开发区同济北路 9 号破土动工。厂区用地方正,东临同济北路,西邻永昌东一路,占地面积 1.5 公顷,由一座混凝土结构单层厂房及 5 座小型附属用房构成。厂区总建筑面积 3900 平方米。
2007 年,韩国乐天包装厂接手厂区进行改扩建,在原混凝土单层厂房西北侧加建一座二层钢结构厂房及 4 座小型附属用房。厂区总建筑面积增至 12000 平方米。
2021 年,心诺普心脏电生理器械厂接手厂区并在遵守韩国乐天包装厂规划指标的前提下,进行建筑、室内、景观的整体改造。改造后,主厂房的一层作为心脏电生理器械洁净生产车间,二层作为心诺普医疗总部研发办公场所。
▽建筑概念生成©way design 大道设计
生命律动
遇到挑战:如何将“心脏电生理器械”的产品特征,和历经两代生命的旧厂房历史,在立面改造设计的隐喻中体现出来?
▽入口街景©way design 大道设计
▽入口标识墙©way design 大道设计
▽入口主立面©way design 大道设计
▽三维曲面混凝土拱券©way design 大道设计
▽混凝土拱券外廊©way design 大道设计
设计回应:心脏跳动简单规律,摒除任何随心所欲的变化。设计以此为原则,整个园区仅对两个基础单元进行了如心脏跳动般的重复——
1. 混凝土拱券单元:附着于 1995 年印刷厂时期的单层混凝土厂房,作为新园区的视觉焦点;
2. 金属工字钢及竖线条单元:附着于 2007 年包装厂时期的二层钢结构厂房和周边小型附属用房,作为新园区的视觉背景;
以此向“生命律动”和旧厂房历史上蕴含的两个过往时代致敬。
▽廊顶镂空©way design 大道设计
▽仰望廊顶 Logo©way design 大道设计
主入口露天拱券外廊的正中一跨,采用带有心诺普镂空 logo 的顶板。阳光洒下的 logo 影,随时间缓缓流动。质朴的混凝土材质、古老的拱券造型、诗意的光影变幻,使项目拥有“朴素纯粹、永恒传世”的内在品质,实现设计师在美学上对于“Timeless / Effortless 不时髦/不费力”的追求。▽主入口立面夜景©way design 大道设计
▽拱券外廊夜景©way design 大道设计
▽外廊内部夜景©way design 大道设计
▽从外廊看大堂©way design 大道设计
▽室内概念生成图©way design 大道设计
创新聚落
遇到挑战:如何将原厂房 60m X 40m 的超大进深空间,打造成光线充足、尺度宜人、激发创新的研发办公空间?
▽茶水间玻璃盒子 & 开敞办公区©way design 大道设计
▽茶水间玻璃盒子©way design 大道设计
▽茶水间内部©way design 大道设计
▽茶水间玻璃盒子©way design 大道设计
▽中央休息讨论区©way design 大道设计
▽独立办公玻璃盒子 & 休息区©way design 大道设计
▽会议室群 & 开敞办公区©way design 大道设计
▽会议室群©way design 大道设计
▽会议室群 & 休息区©way design 大道设计
▽小组讨论室 ©way design 大道设计
▽可分合多功能室©way design 大道设计
▽首层入口大堂©way design 大道设计
▽大堂 logo 墙©way design 大道设计
二层办公区室外直通原一层厂房屋顶,景观设计设有环形跑道、3 个羽毛球场等运动场地;沿项目中轴线的一跨设置屋顶花园,花草绿植、采光天窗、休憩座椅间或布置,供员工工作之余运动休憩使用。▽屋顶花园©way design 大道设计
▽屋顶运动场©way design 大道设计
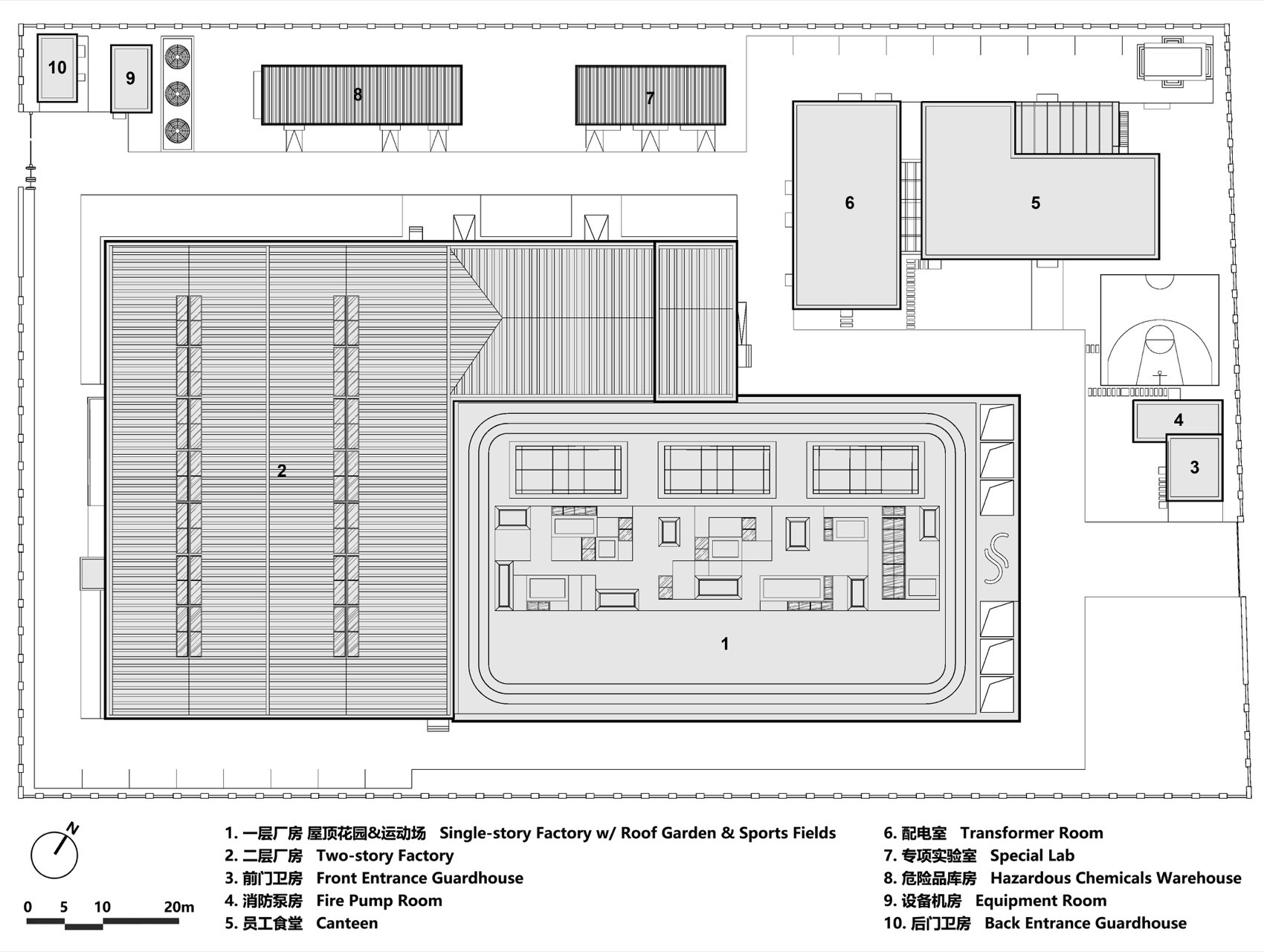
▽总平面图©way design 大道设计
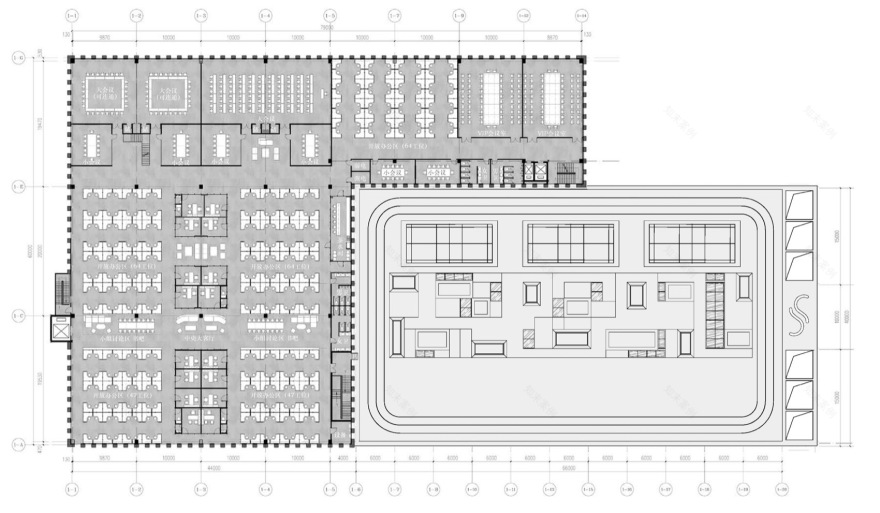
▽一层平面图©way design 大道设计
▽二层平面图©way design 大道设计
▽立面图©way design 大道设计
▽剖面图©way design 大道设计
▽曲面混凝土拱券节点©way design 大道设计
▽曲面混凝土拱券节点©way design 大道设计
项目名称: 心诺普心脏电生理器械厂
项目业主: 心诺普医疗技术(北京)有限公司
项目地址: 中国北京市亦庄经济技术开发区同济北路 9 号
设计面积: 用地面积 15,074 平方米;建筑面积 12,220 平方米;
设计机构: way design 大道设计
主持设计:威薇
设计团队: 威薇 Jenny Tao 王玲艺 欧阳雪薇 宋瀚 郭爽
施工图院: 中科(北京)建筑规划设计研究院有限公司
总承包商: 青建集团股份公司
设计时间: 2021-2022
竣工时间: 2023
客服
消息
收藏
下载
最近





































